繁體
登录
005299347/2022-68365
新郑市自然资源和规划局
城市规划
2022-04-14
2022-04-14
新郑市太极房地产开发有限公司规划方案变更公示
由新郑市太极房地产开发有限公司开发建设的
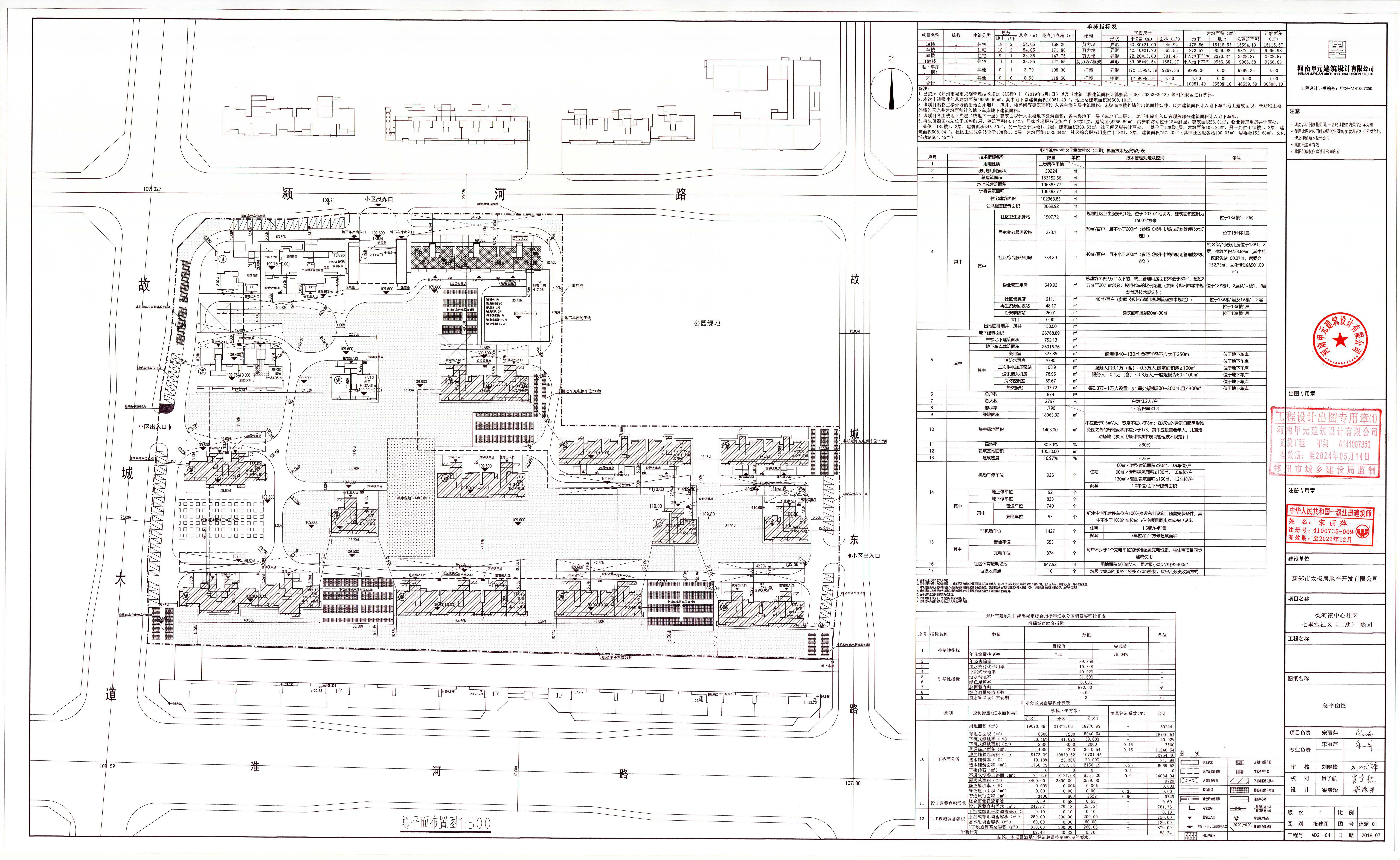
梨河镇中心社区七里堂社区(二期)
·熙园
项目,现正在我局办理规划方案变更,根据有关法律、法规和《河南省城市规划公示制度》的要求,现予以公示。
依据《中华人民共和国城乡规划法》和《中华人民共和国行政许可法》相关规定,行政许可申请人、利害关系人享有陈述权、申辩权和要求听证的权利。如有意见和建议,请你们在本公示期间内,到我局进行陈述、申辩,或提出听证申请,逾期未进行陈述、申辩或未提出听证申请的,视为放弃上述权利。
附图:变更申请、变更前总平面图、变更后总平面图、变更前日照分析图、变更后日照分析图、
变更前
鸟瞰图
、变更后鸟瞰图
。
该项目公示期为2022年
4
月
14
日
—2022年
4
月
27
日
信访意见电话:0371---62551969 咨询电话:0371---69950010
主办单位:新郑市人民政府办公室
地址:新郑市人民路186号
邮编:451100
网站标识:4101840001
豫ICP备05015077号-1
豫公网安备 41018402000166号