• 005299347/2022-68402
  • 新郑市自然资源和规划局
  • 城市,规划
  • 2022-05-11
  • 2022-05-11
郑州联东金函实业有限公司建筑方案征求意见

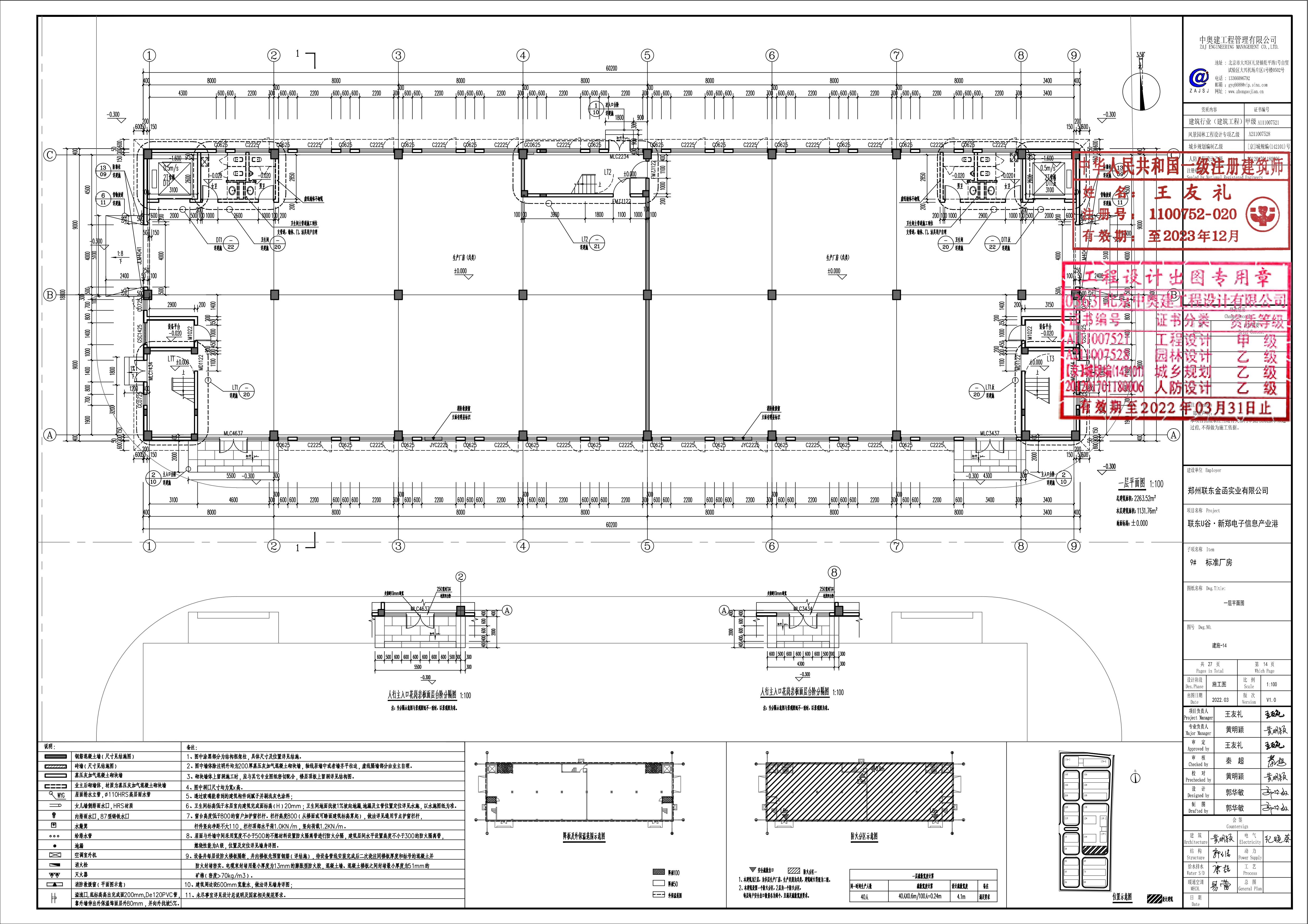
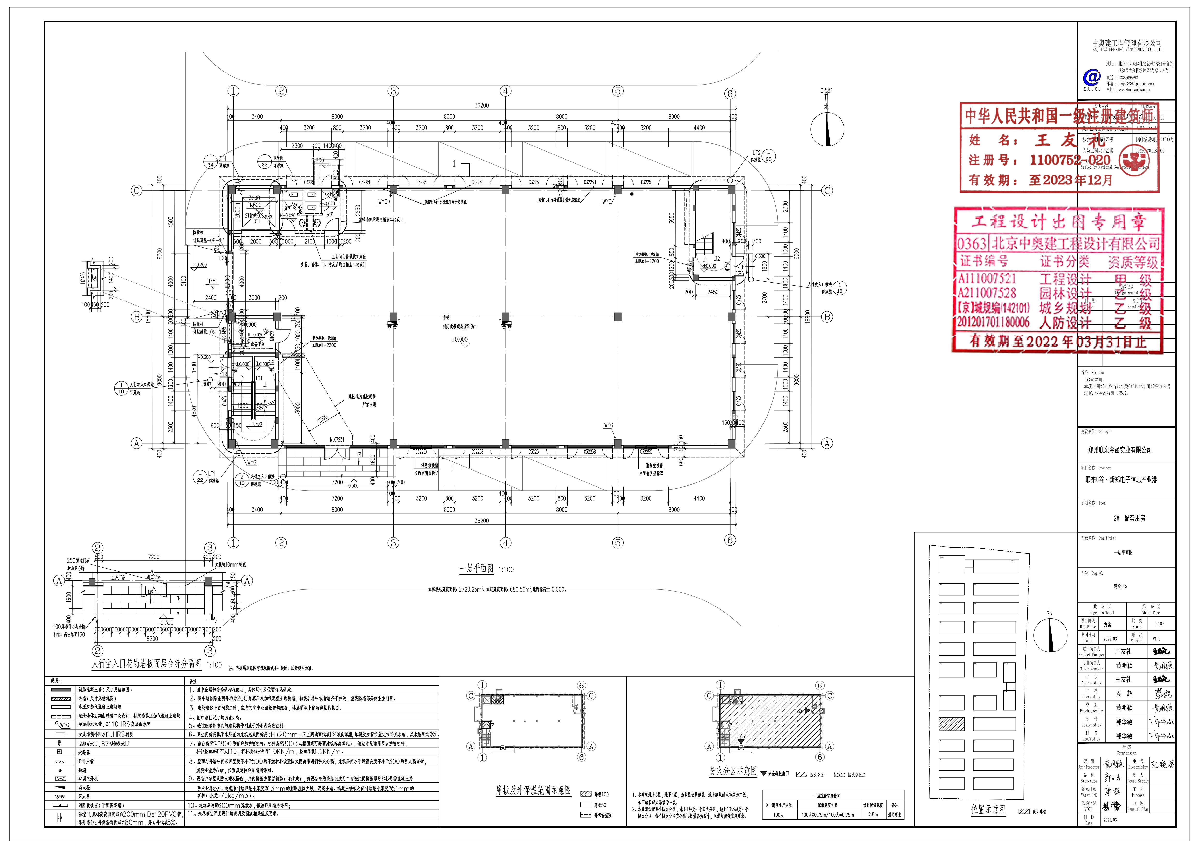
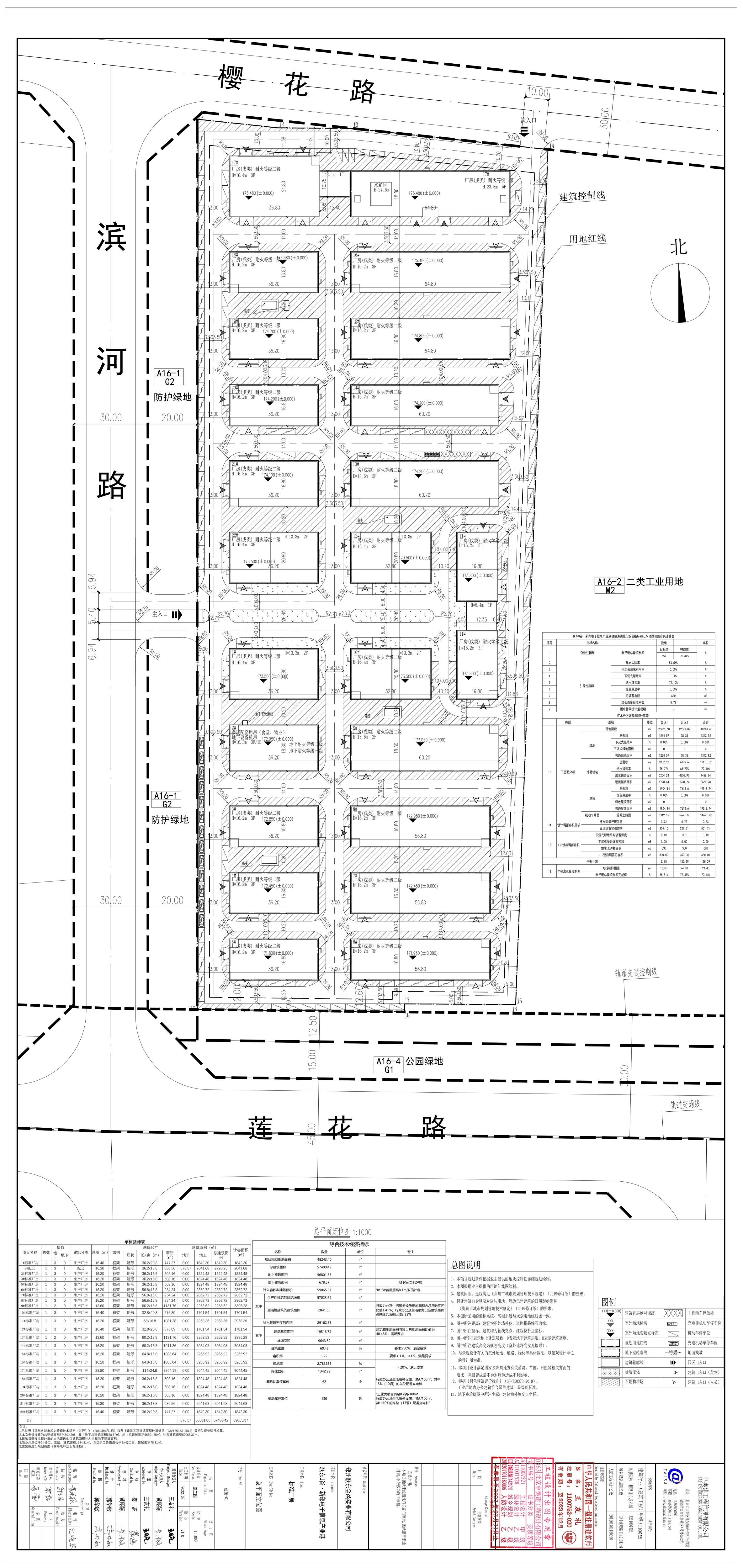
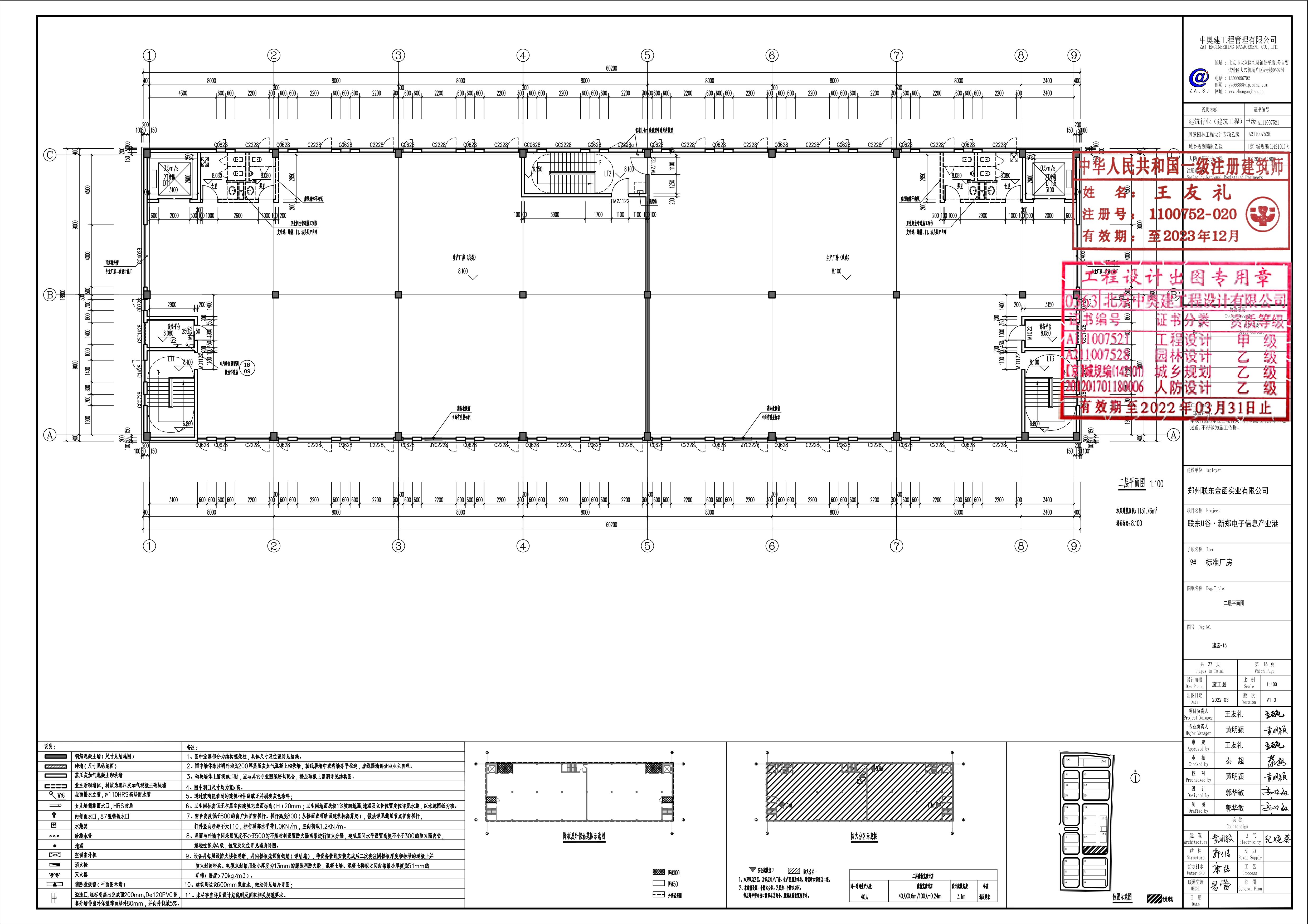
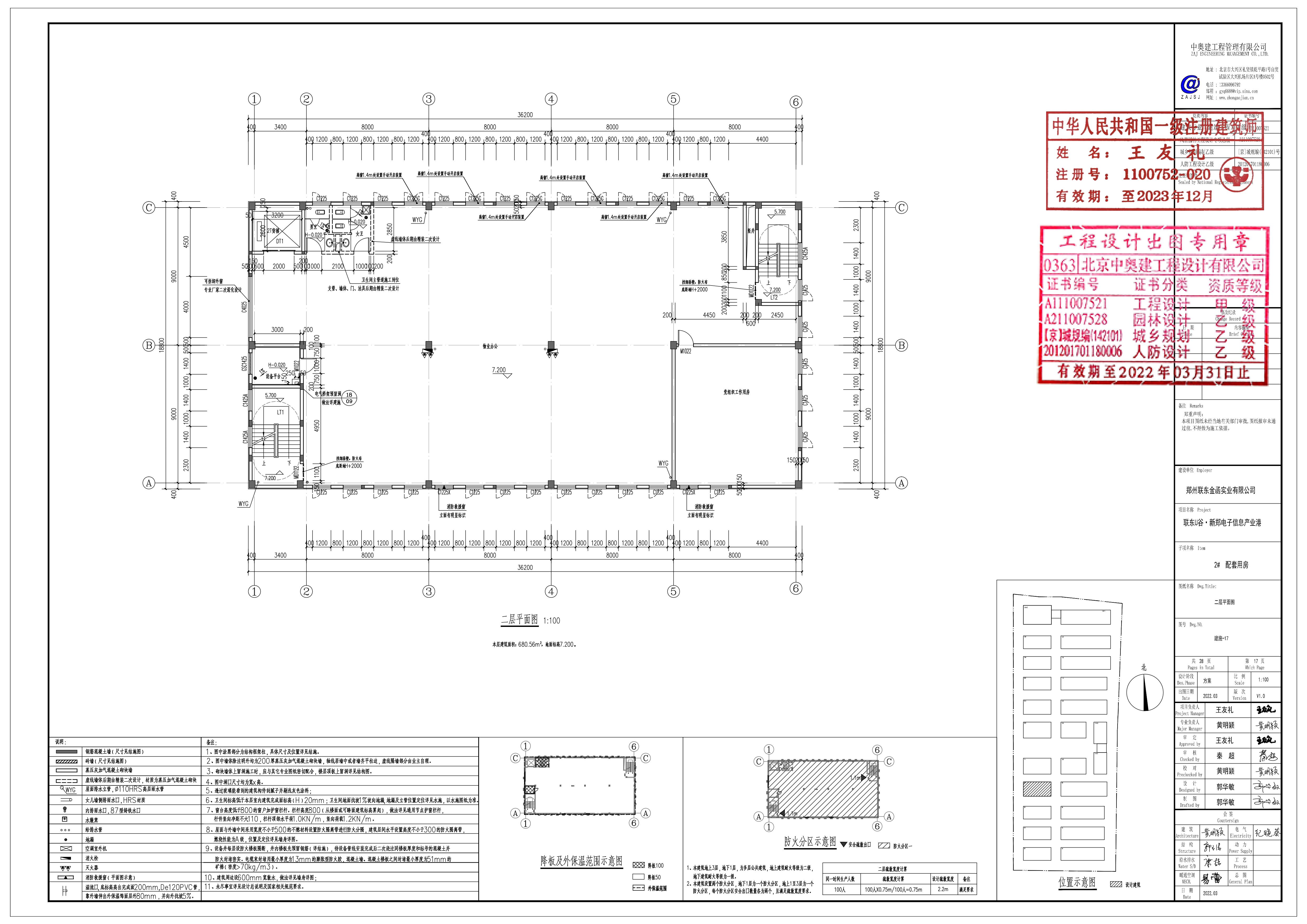
由郑州联东金函实业有限公司建设的联东U谷·新郑电子信息产业港项目,现正在我局进行建筑方案技术审查,依据《中华人民共和国城乡规划法》、《中华人民共和国行政许可法》等有关法律法规,现予以公示,查询详细内容,请出示身份证明,到我局办理相关手续后查询。 附图:总平面图、鸟瞰图、平、立面图。该项目公示期为2022年5月11日—2022年5月24日,如有意见或建议,请于公示期内向我局反馈。   信访意见电话:0371---62551969    咨询电话:0371---69950010。


   


主办单位:新郑市人民政府办公室 地址:新郑市人民路186号 邮编:451100