繁體
登录
005299347/2022-68406
新郑市自然资源和规划局
城市,规划
2022-05-11
2022-05-11
郑州和和置业有限公司规划方案变更公示
由郑州和和置业有限公司建设的
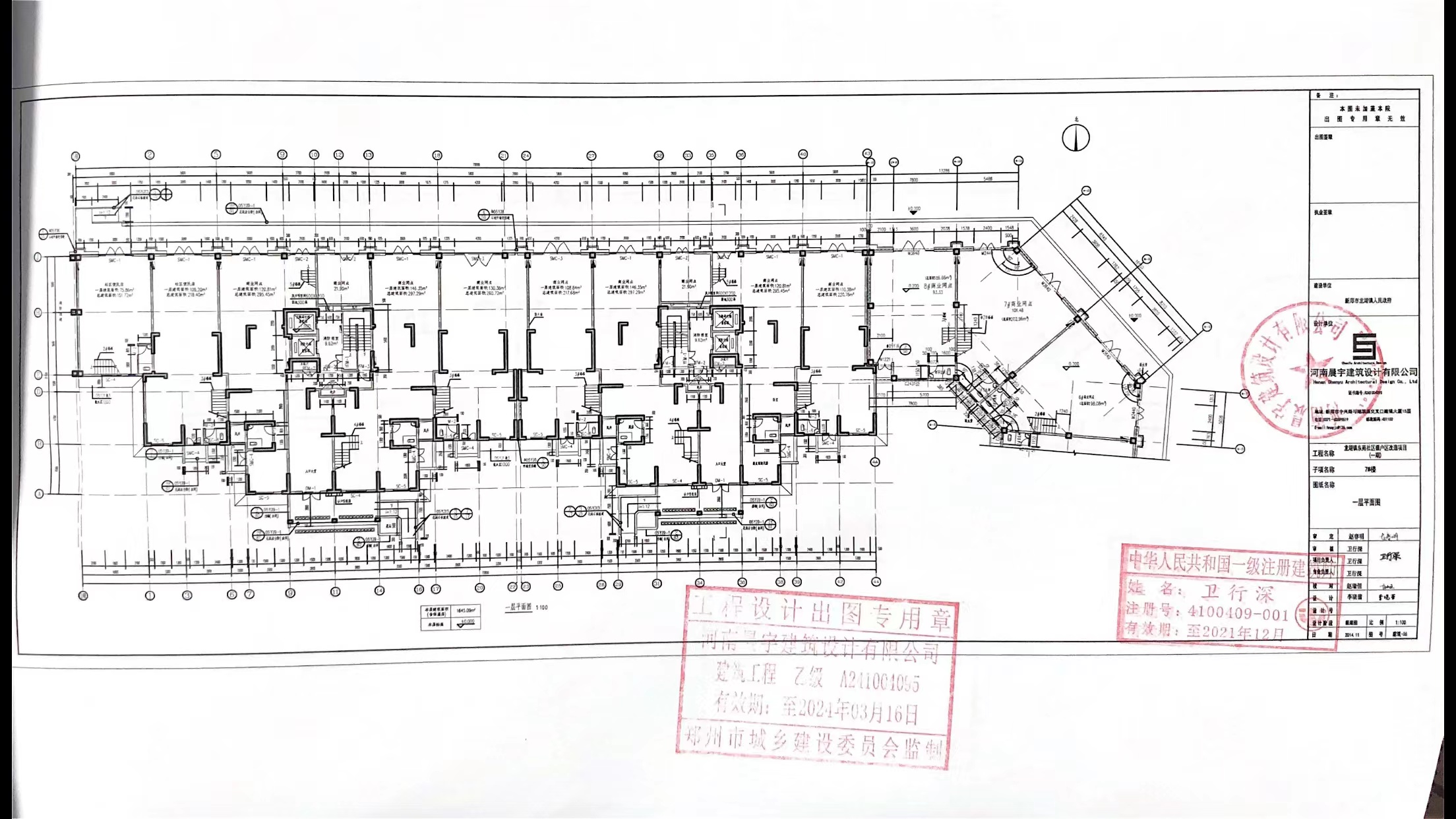
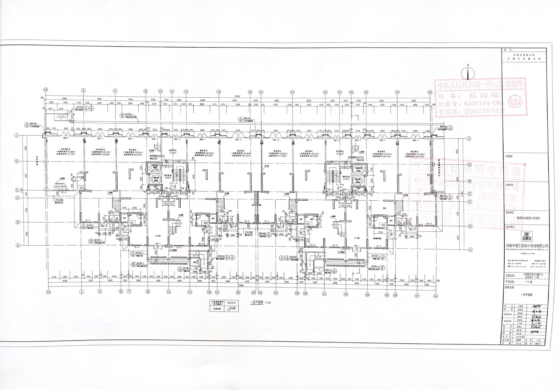
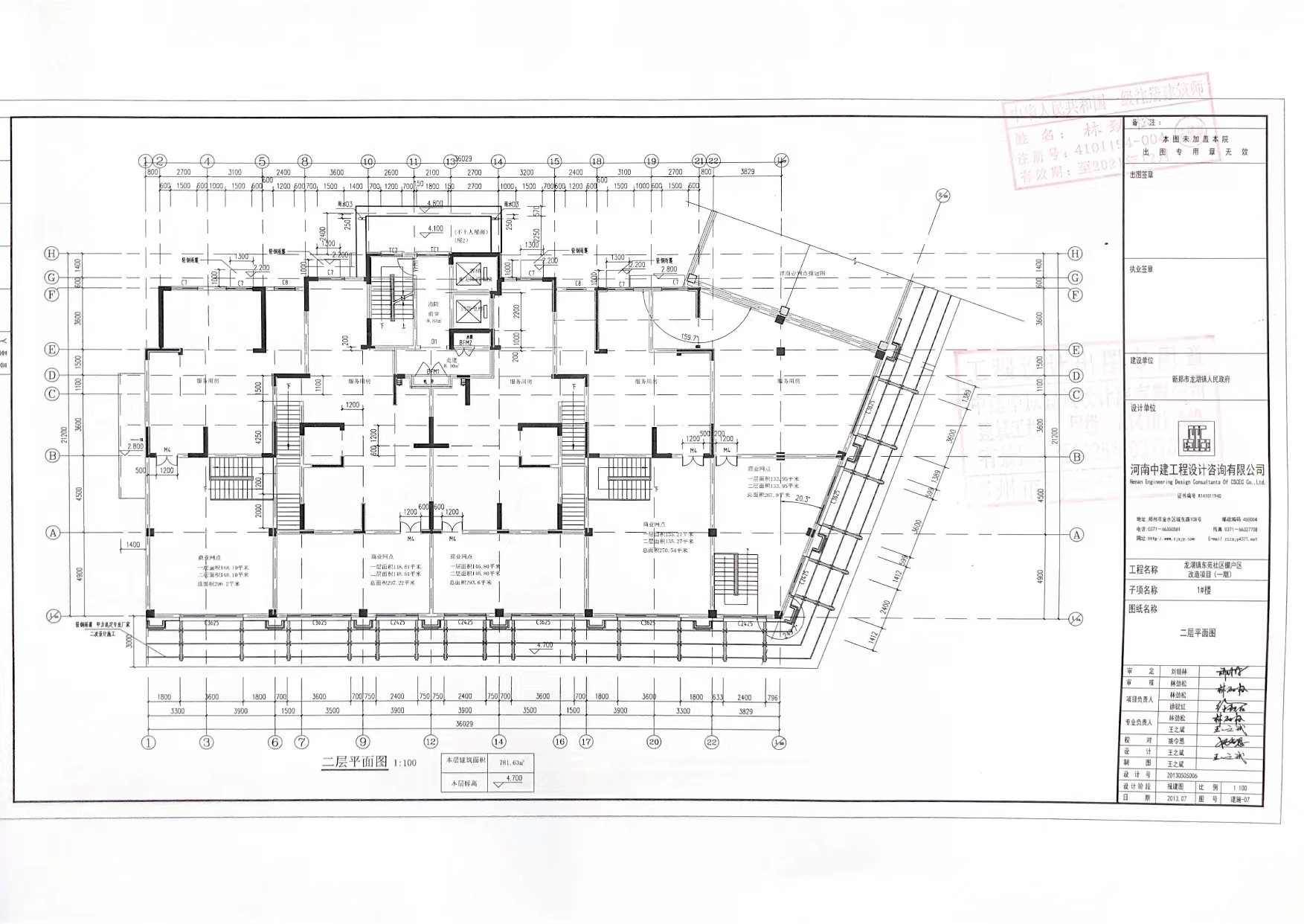
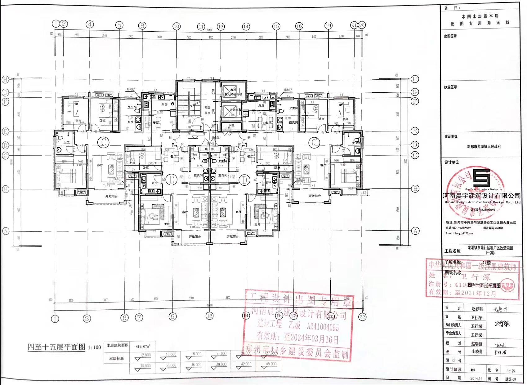
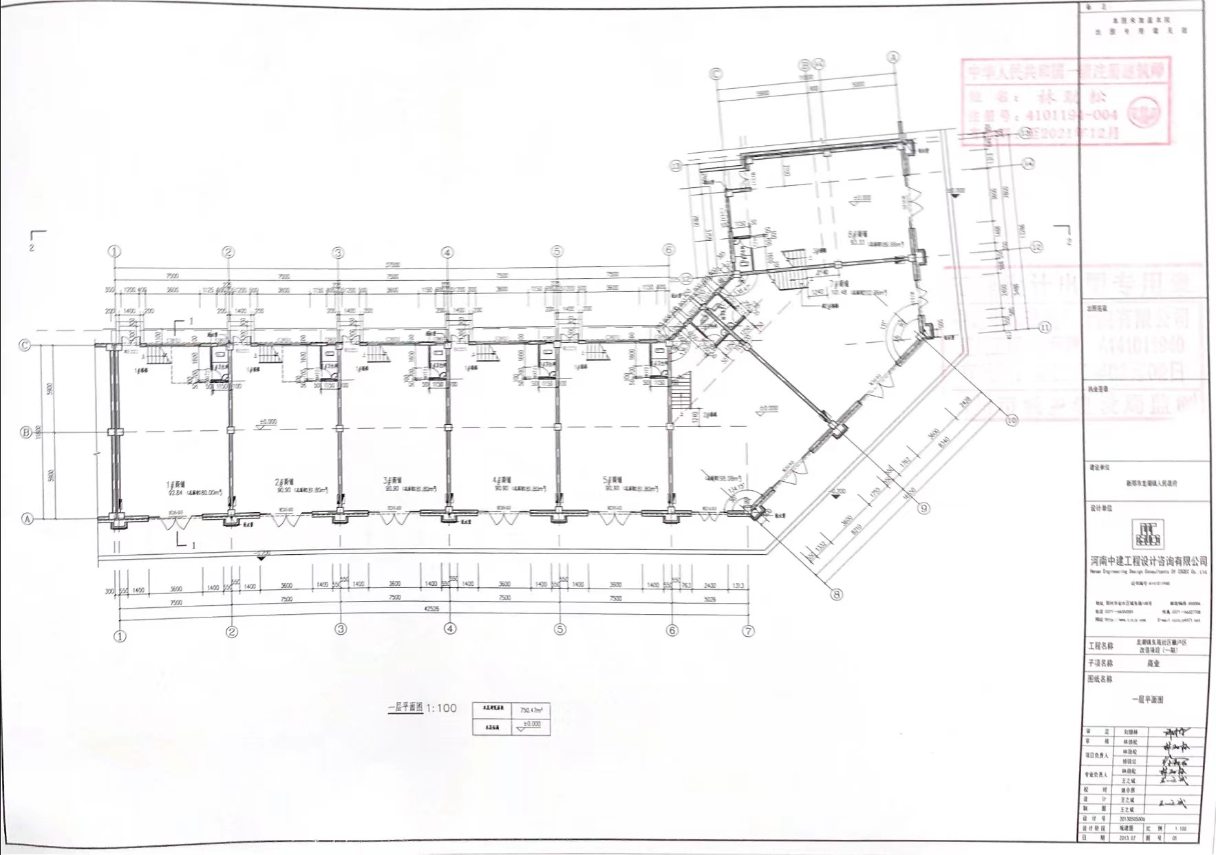
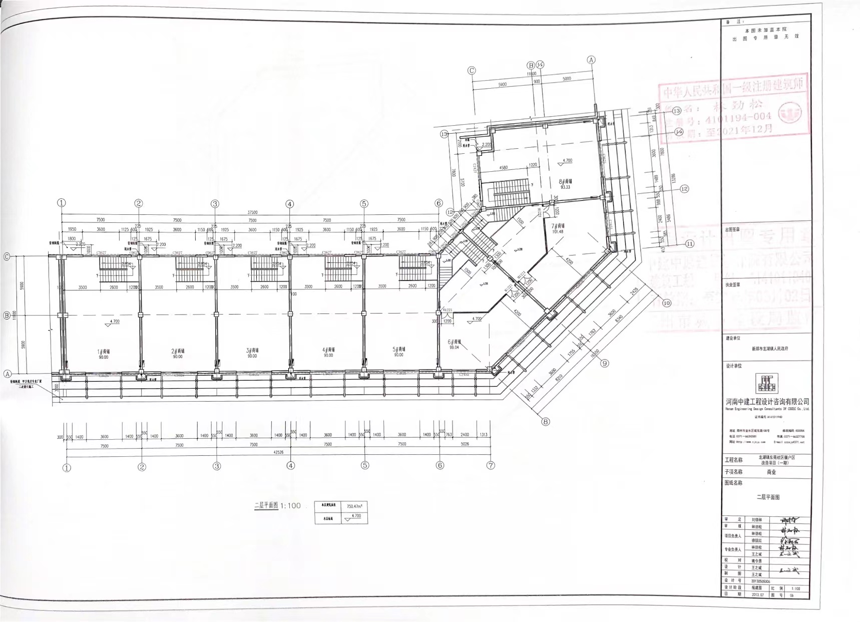
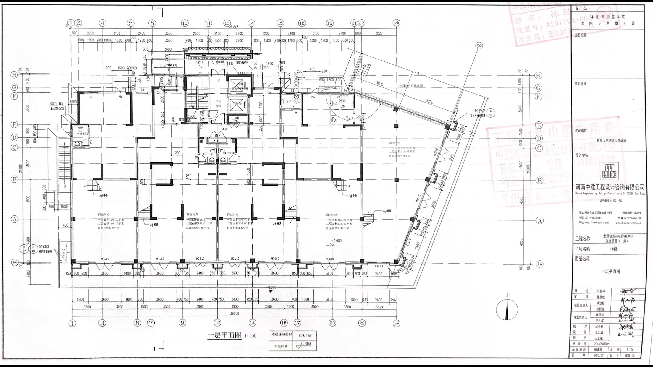
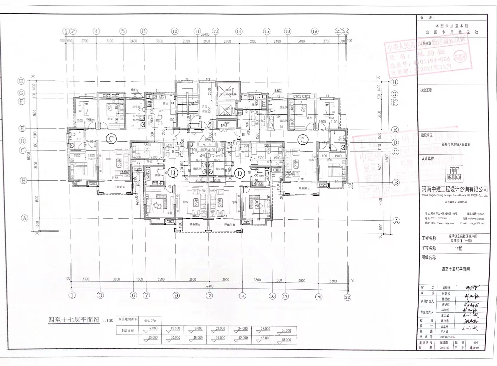
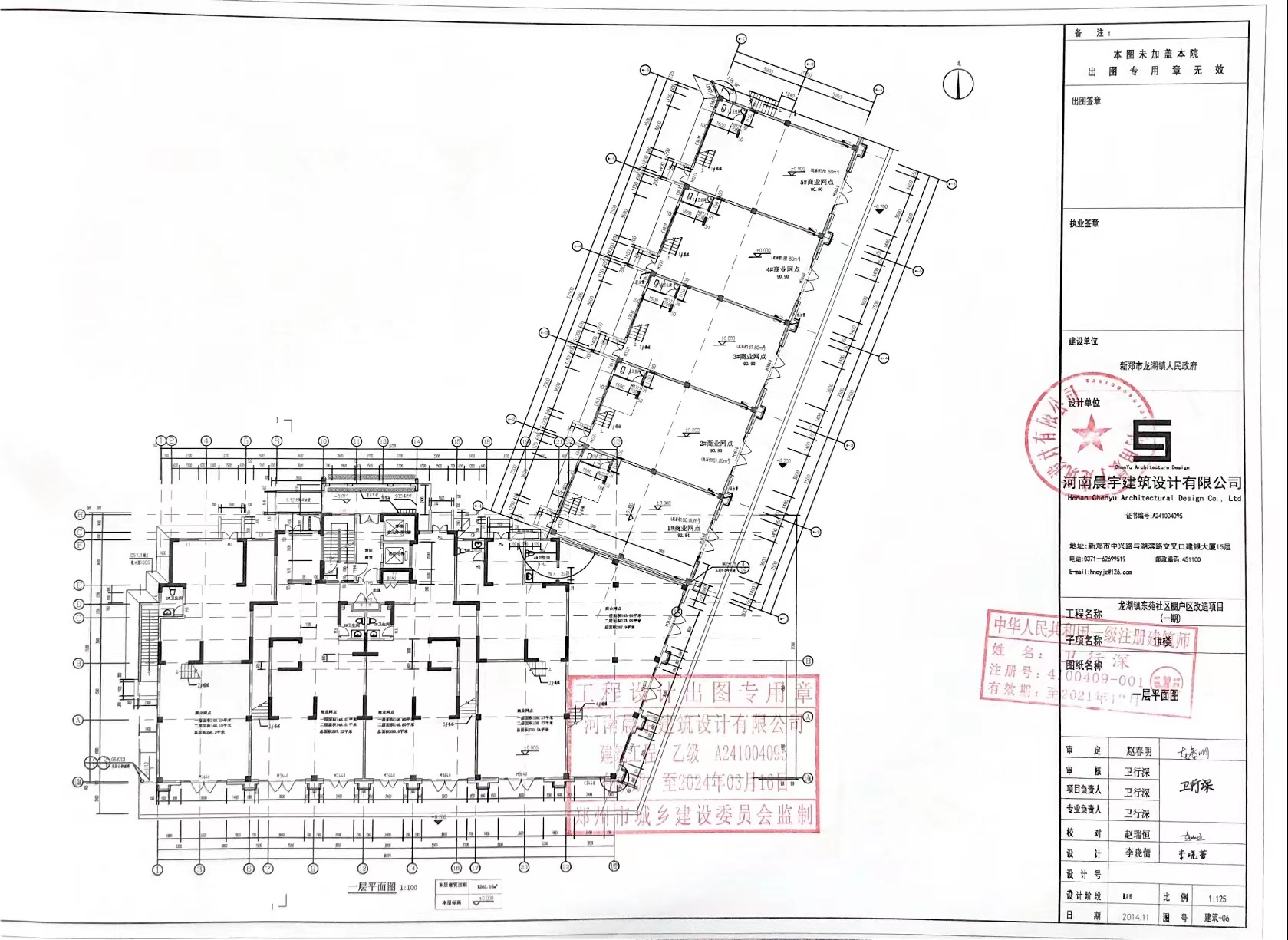
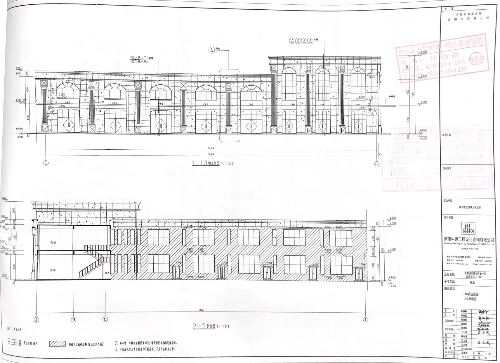
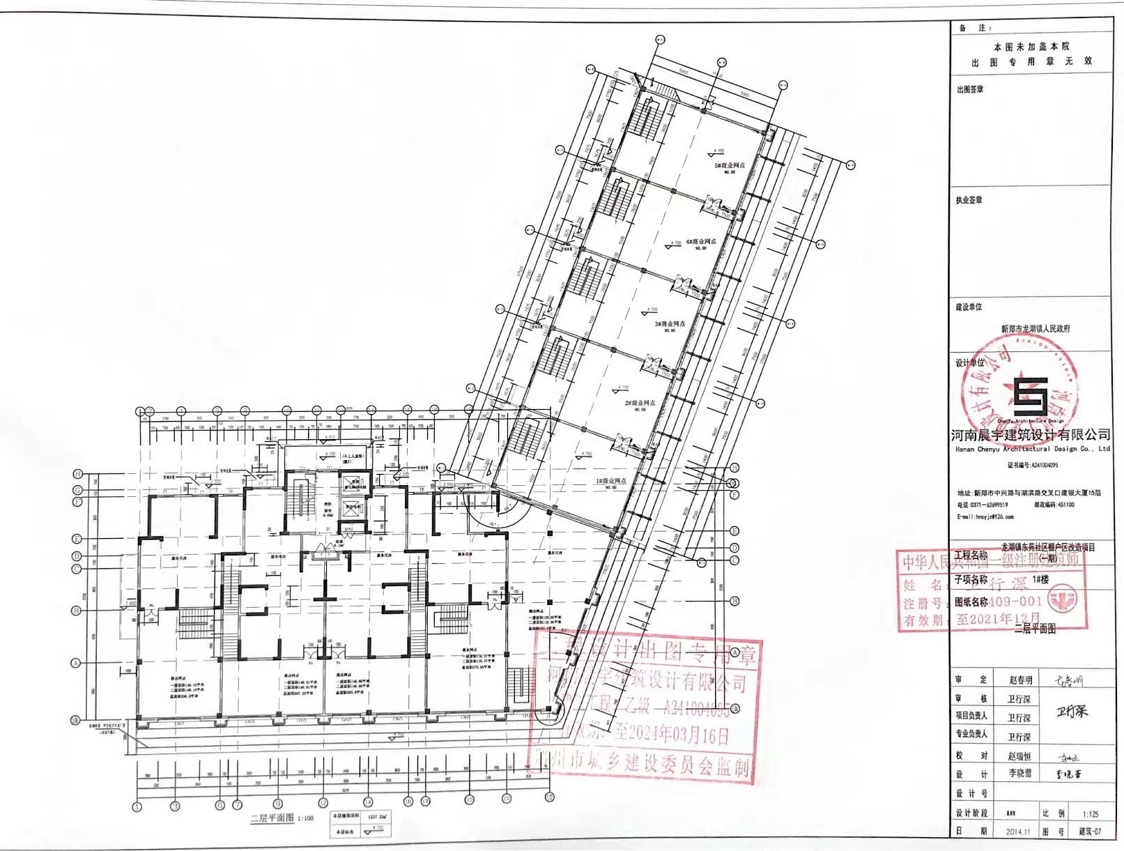
龙湖镇东苑社区棚户区改造项目
,现正在我局办理规划方案变更,根据有关法律、法规和《河南省城市规划公示制度》的要求,现予以公示。
依据《中华人民共和国城乡规划法》和《中华人民共和国行政许可法》相关规定,行政许可申请人、利害关系人享有陈述权、申辩权和要求听证的权利。如有意见和建议,请你们在本公示期间内,到我局进行陈述、申辩,或提出听证申请,逾期未进行陈述、申辩或未提出听证申请的,视为放弃上述权利。
附图:变更申请、变更前总平面图、变更后总平面图、
变更前单体图、变更后单体图
。
该项目公示期为2022年
5
月
11
日
—2022年
5
月
24
日
信访意见电话:0371---62551969 咨询电话:0371---69950010
主办单位:新郑市人民政府办公室
地址:新郑市人民路186号
邮编:451100
网站标识:4101840001
豫ICP备05015077号-1
豫公网安备 41018402000166号