繁體
登录
005299347/2022-68453
新郑市自然资源和规划局
城市,规划
2022-05-31
2022-05-31
新郑市泽清水务有限公司建筑方案征求意见
由
新郑市泽清水务有限公司
建设的
新郑新区污水处理厂工程
项目,现正在我局进行建筑方案技术审查,依据《中华人民共和国城乡规划法》、《中华人民共和国行政许可法》等有关法律法规,现予以公示,查询详细内容,请出示身份证明,到我局办理相关手续后查询。
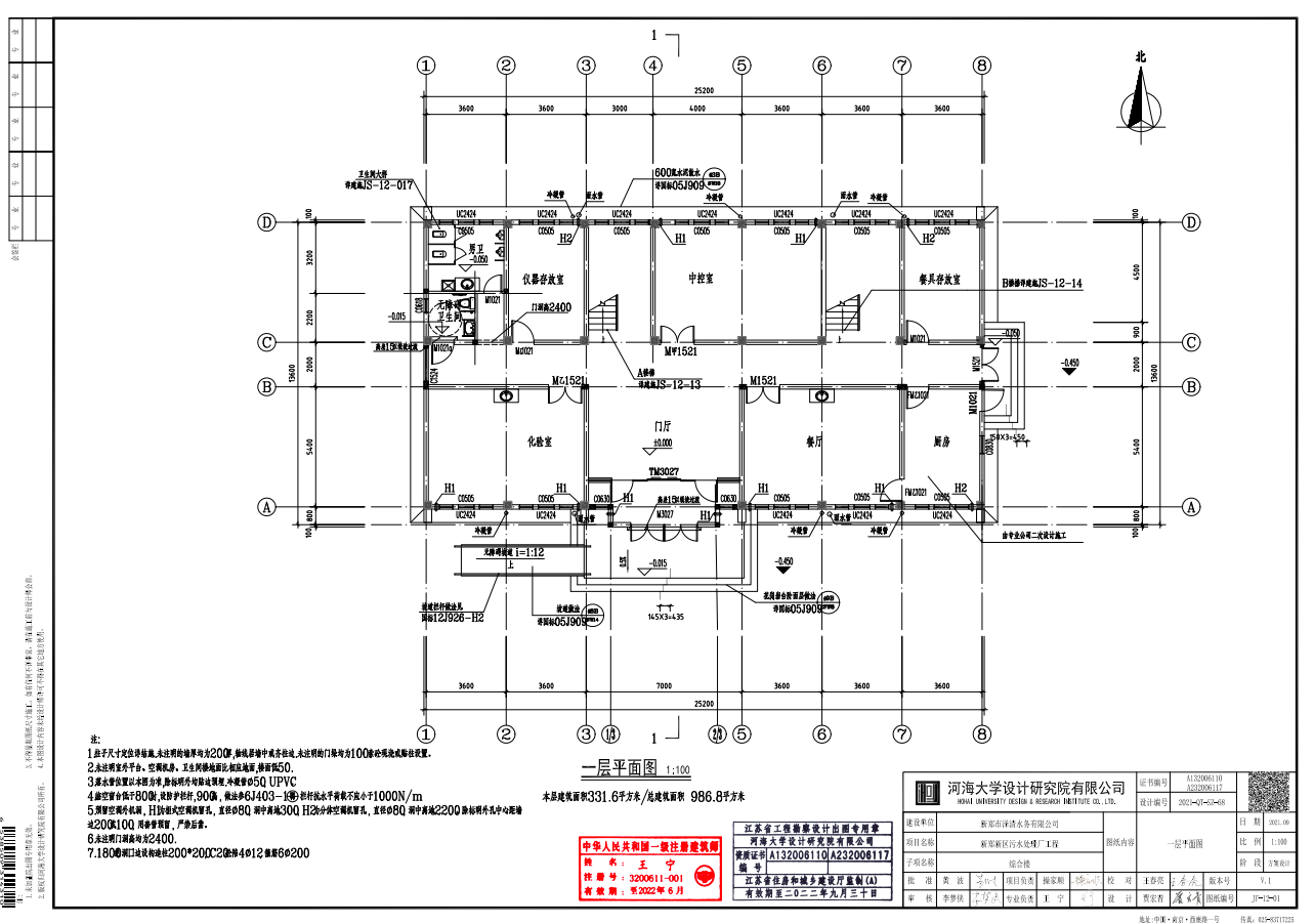
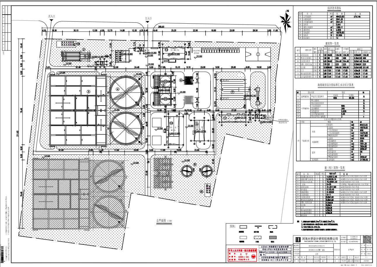
附图:总平面图、鸟瞰图、平、立面图
该项目公示期为
2022
年
5
月
31
日
—2022
年
6
月
14
日,如有意见或建议,请于公示期内向我局反馈。信访意见电话:
0371---62551969
咨询电话:
0371---69950010
。
主办单位:新郑市人民政府办公室
地址:新郑市人民路186号
邮编:451100
网站标识:4101840001
豫ICP备05015077号-1
豫公网安备 41018402000166号