• 005299347/2025-00084
  • 新郑市自然资源和规划局
  • 规划
  • 2025-02-11
  • 2025-02-11
新郑市教育局建筑方案征求意见

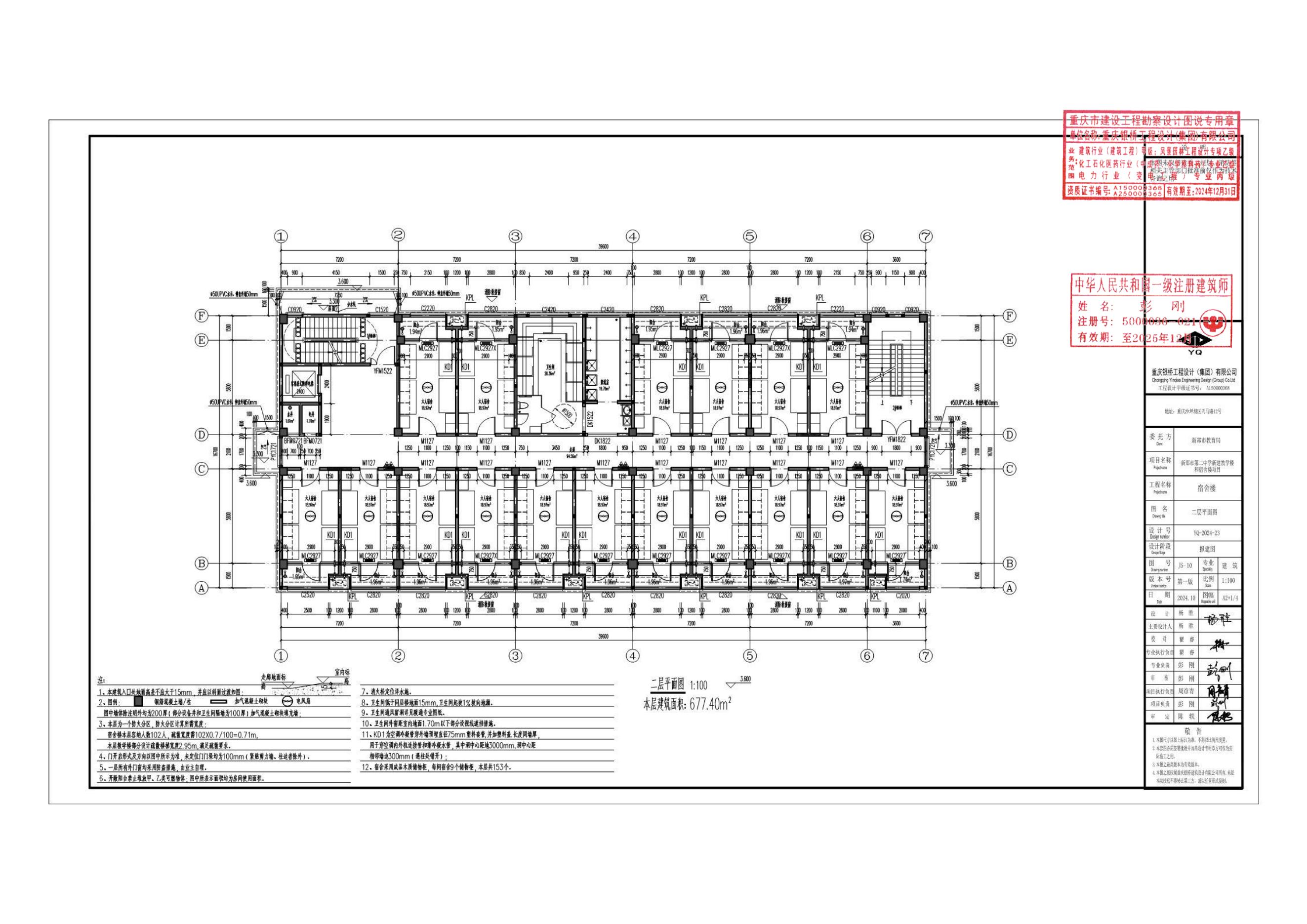
由新郑市教育局建设的新郑市第二中学新建教学楼和宿舍楼项目,现正在我局进行建筑方案技术审查,依据《中华人民共和国城乡规划法》、《中华人民共和国行政许可法》等有关法律法规,现予以公示,查询详细内容,请出示身份证明,到我局办理相关手续后查询。 附图:总平面图、日照分析图、鸟瞰图、平、立面图 该项目公示期为20252112025224日,如有意见或建议,请于公示期内向我局反馈。信访意见电话:0371---62551969 咨询电话:0371---69950010



主办单位:新郑市人民政府办公室 地址:新郑市人民路186号 邮编:451100