• 005299347/2025-00480
  • 新郑市自然资源和规划局
  • 规划
  • 2025-06-25
  • 2025-06-25
新郑市中佳汇科技发展有限公司建筑方案征求意见

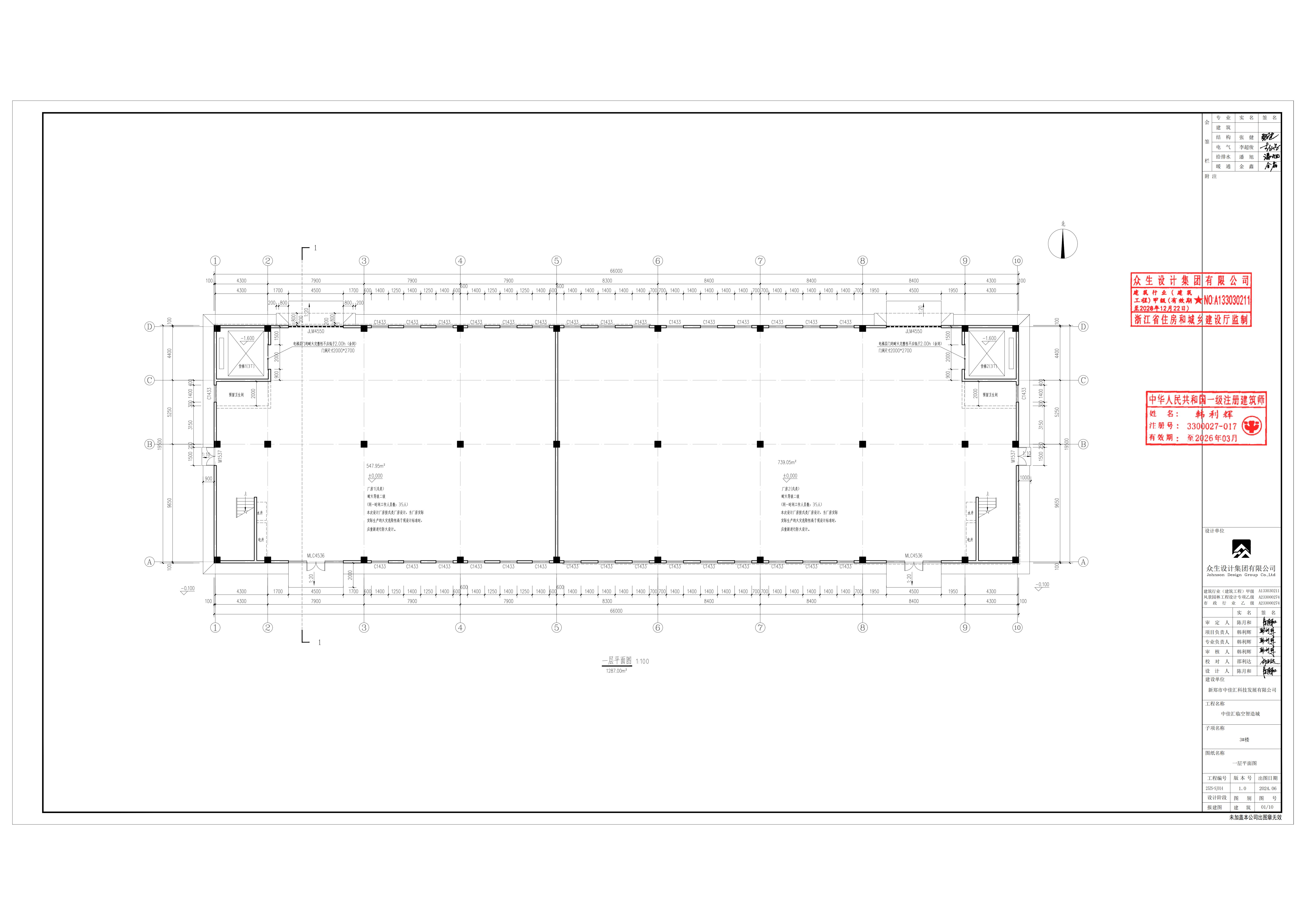
新郑市中佳汇科技发展有限公司建设的中佳汇临空智能装备产业园项目,现正在我局进行建筑方案技术审查,依据《中华人民共和国城乡规划法》、《中华人民共和国行政许可法》等有关法律法规,现予以公示,查询详细内容,请出示身份证明,到我局办理相关手续后查询。

附图:总平面图、鸟瞰图、平、立面图 该项目公示期为2025625202578日,如有意见或建议,请于公示期内向我局反馈。

信访意见电话:0371---62551969 咨询电话:0371---69950010






主办单位:新郑市人民政府办公室 地址:新郑市人民路186号 邮编:451100