由新郑市社裕城乡发展有限公司建设的新郑市南水北调中线观音寺调蓄工程安置区建设项目(二期),现正在我局办理规划方案变更,根据有关法律、法规和《河南省城市规划公示制度》的要求,现予以公示。查询详细内容,请出示身份证明,到我局办理相关手续后查询。
依据《中华人民共和国城乡规划法》和《中华人民共和国行政许可法》相关规定,行政许可申请人、利害关系人享有陈述权、申辩权和要求听证的权利。如有意见和建议,请你们在本公示期间内,到我局进行陈述、申辩,或提出听证申请,逾期未进行陈述、申辩或未提出听证申请的,视为放弃上述权利。
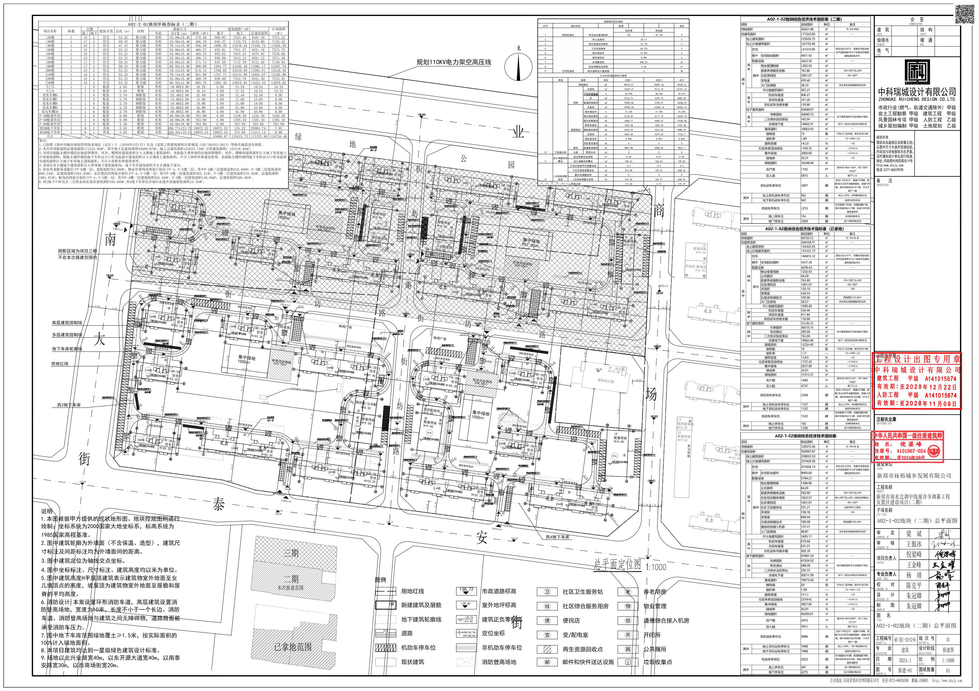
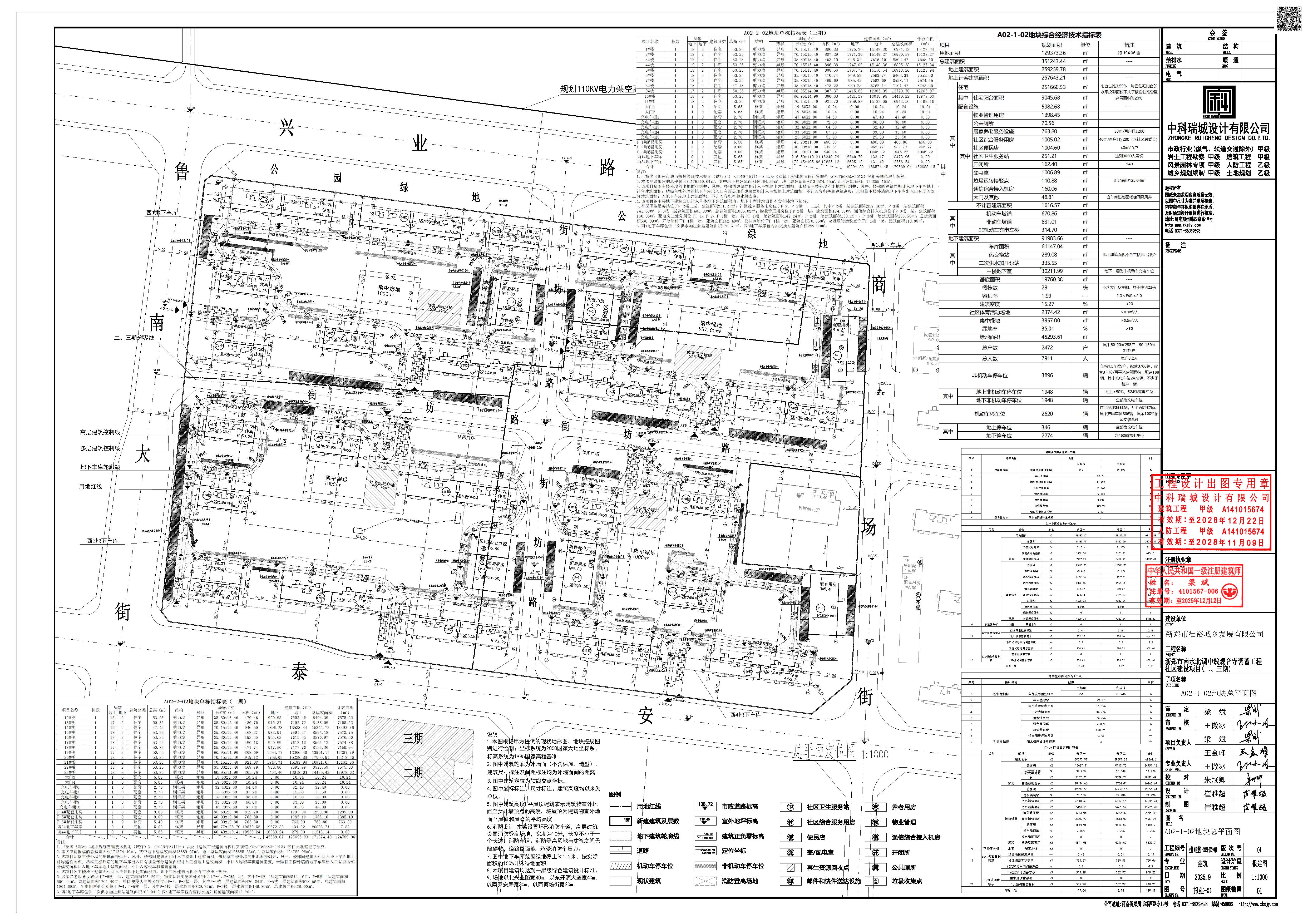
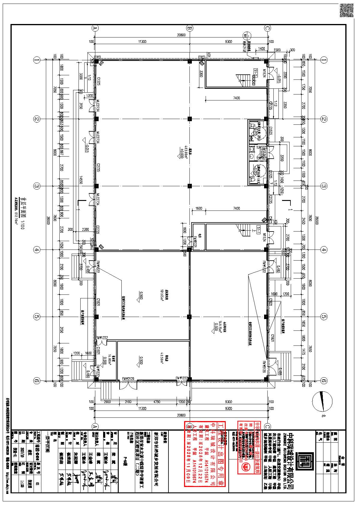
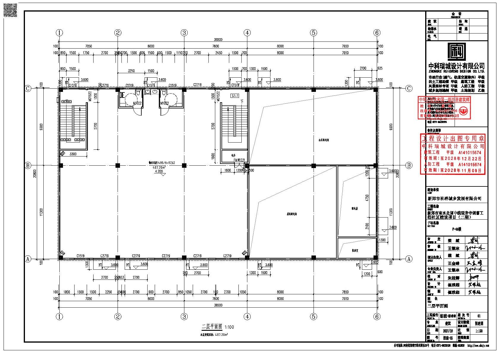
附图:变更申请、变更前总平面图、变更后总平面图、变更前日照分析图、变更后日照分析图、变更前单体建筑一层平面图、变更后单体建筑一层平面图、变更前单体建筑二层平面图、变更后单体建筑二层平面图、变更前单体建筑立面图、变更后单体建筑立面图。
该项目公示期为2025年10月22日—2025年11月4日。
信访意见电话:0371---62551969 咨询电话:0371---69950010。










