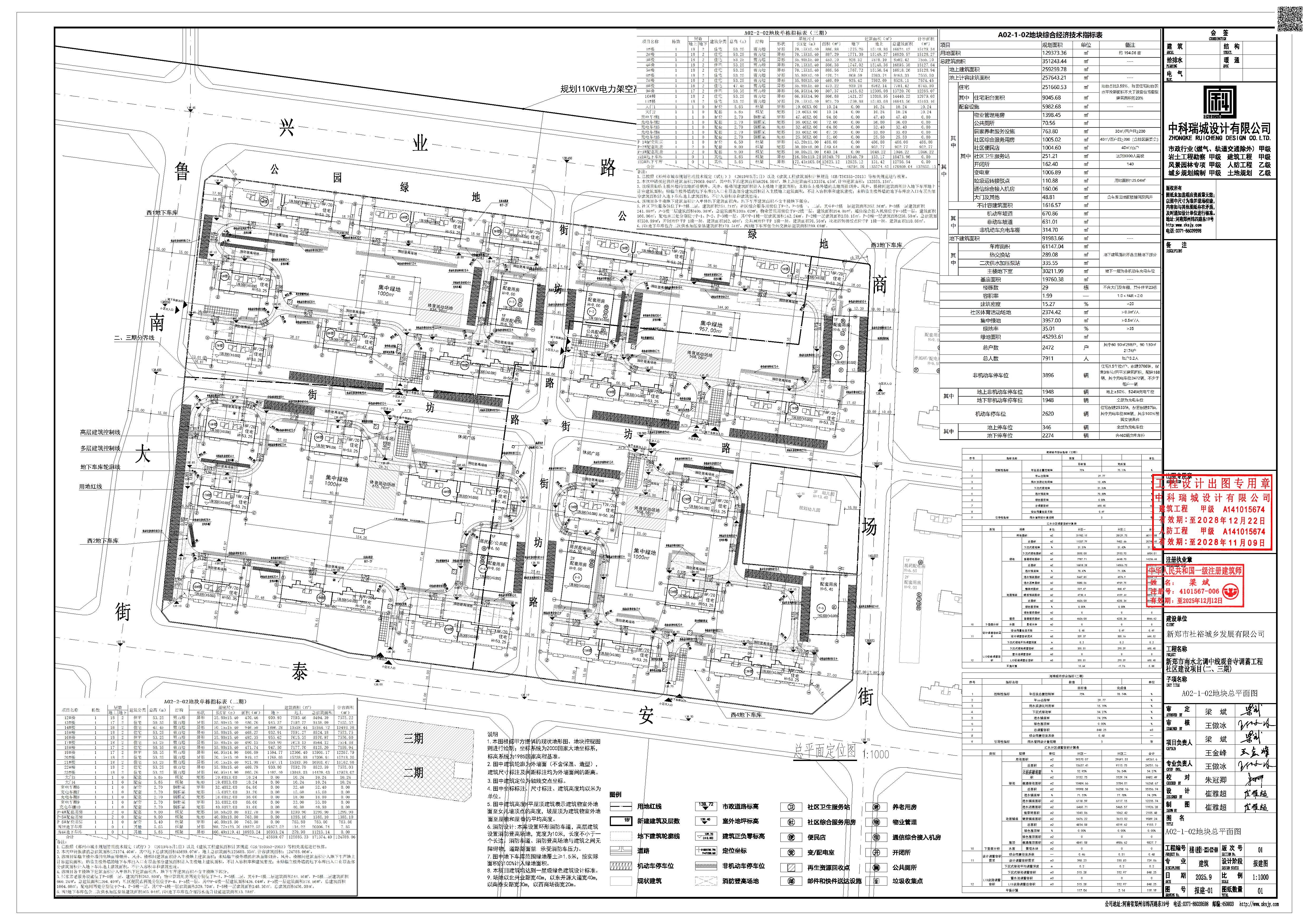
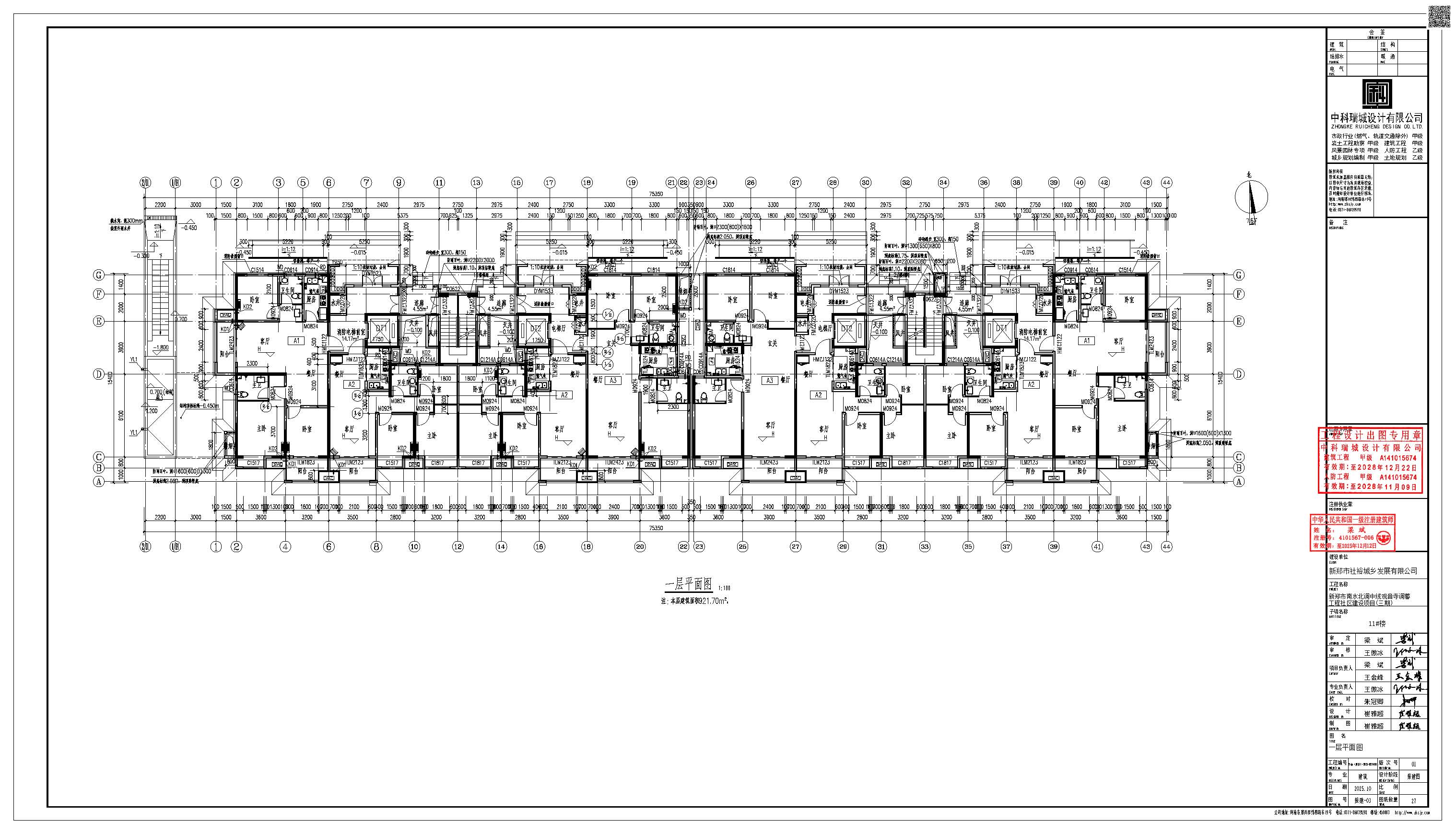
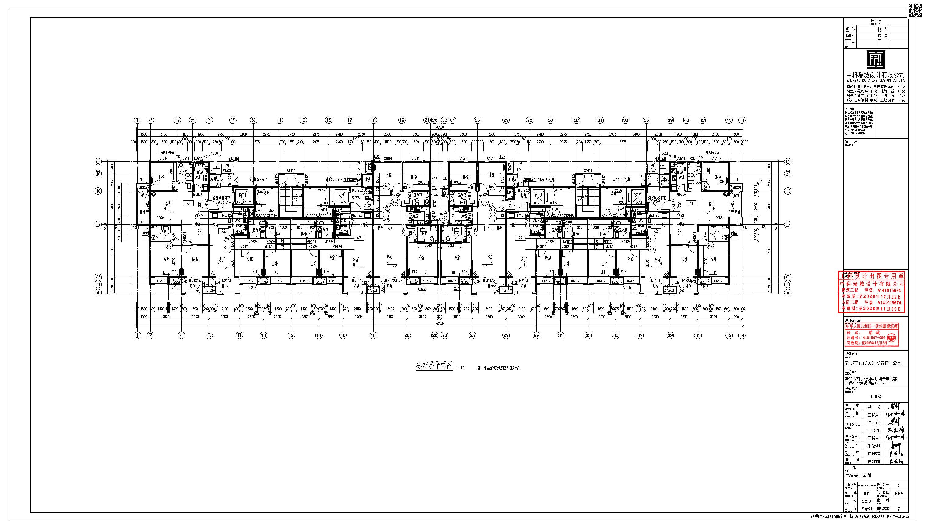
新郑市社裕城乡发展有限公司建设的新郑市南水北调中线观音寺调蓄工程安置区建设项目(三期),现正在我局进行建筑方案技术审查,依据《中华人民共和国城乡规划法》、《中华人民共和国行政许可法》等有关法律法规,现予以公示,查询详细内容,请出示身份证明,到我局办理相关手续后查询。 附图:总平面图、鸟瞰图、日照分析图、平、立面图。该项目公示期为2025年10月22日—2025年11月4日,如有意见或建议,请于公示期内向我局反馈。信访意见电话:0371---62551969 咨询电话:0371---69950010。





