• 005299347/2026-00042
  • 新郑市自然资源和规划局
  • 规划
  • 2026-01-21
  • 2026-01-21
郑州豫力新材料科技有限公司建筑方案征求意见

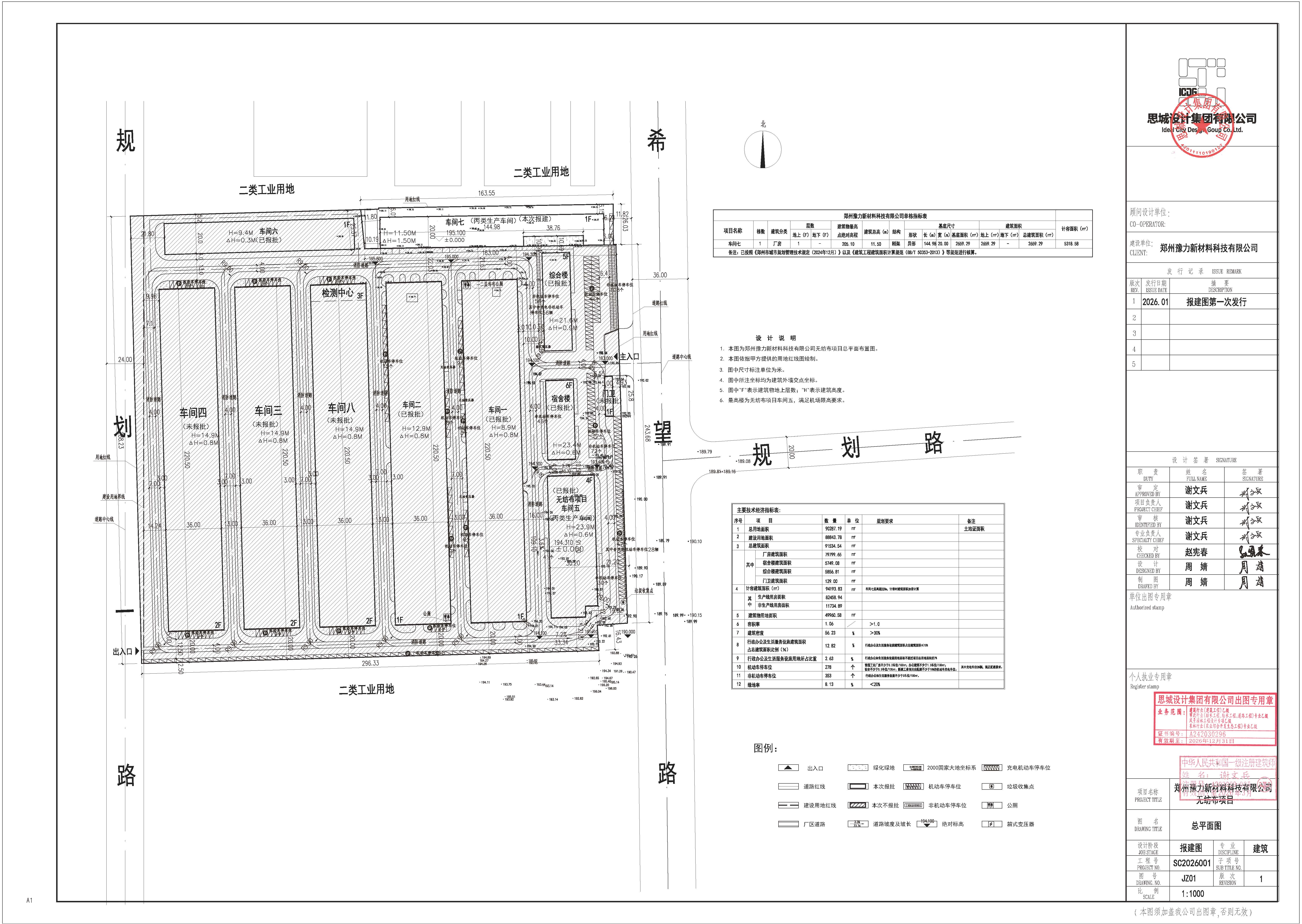
郑州豫力新材料科技有限公司建设的无纺布项目,现正在我局进行建筑方案技术审查,依据《中华人民共和国城乡规划法》、《中华人民共和国行政许可法》等有关法律法规,现予以公示,查询详细内容,请出示身份证明,到我局办理相关手续后查询。 附图:总平面图、鸟瞰图、平、立面图 该项目公示期为2026121202623日,如有意见或建议,请于公示期内向我局反馈。信访意见电话:0371---62551969 咨询电话:0371---69950010






主办单位:新郑市人民政府办公室 地址:新郑市人民路186号 邮编:451100