繁體
登录
667246535/2019-00335
新郑市自然资源和规划局
城市规划
2019-12-27
2019-12-27
河南省优拓置业有限公司建筑方案征求意见
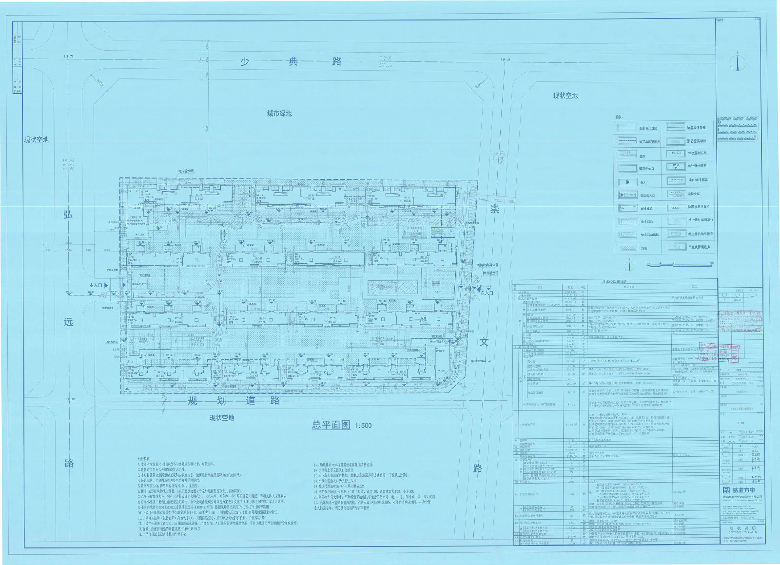
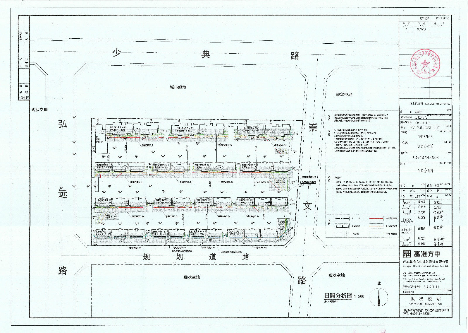
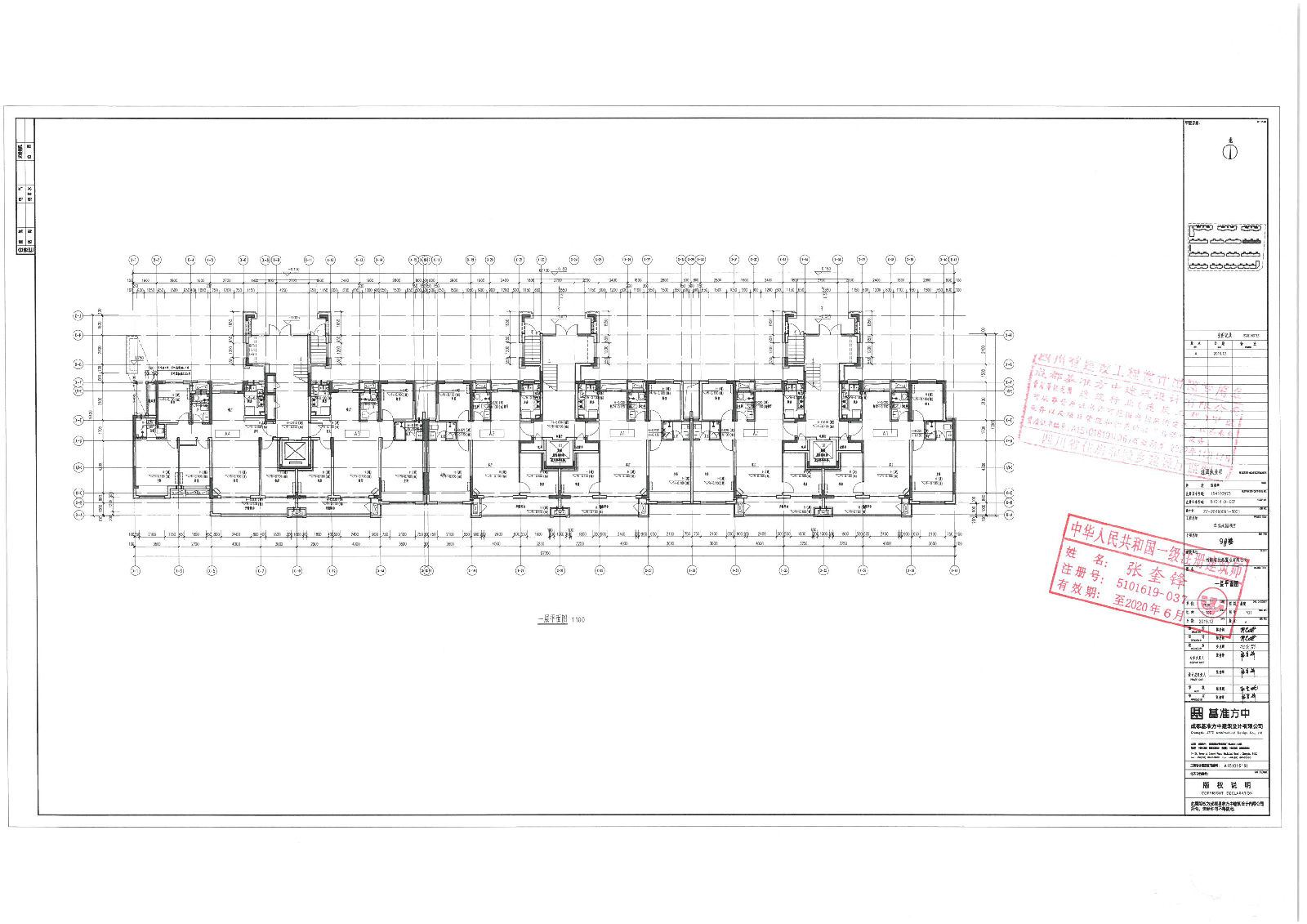
由河南省优拓置业有限公司开发的华信尚园项目,现正在我局办理建筑审批手续,根据有关法律、法规和《河南省城市规划公示制度》的要求,现予以公示: 附图:总平面图、鸟瞰图、日照、平、立面图 该项目公示期为2019年12月27日—2020年01月09日,如有意见或建议,请于公示期内向建管科反馈。 信访意见电话:0371---62680880
主办单位:新郑市人民政府办公室
地址:新郑市人民路186号
邮编:451100
网站标识:4101840001
豫ICP备05015077号-1
豫公网安备 41018402000166号