繁體
登录
005299347/2020-00012
新郑市自然资源和规划局
城市规划
2020-01-20
2020-01-20
郑州海成房地产开发有限公司建筑方案征求意见
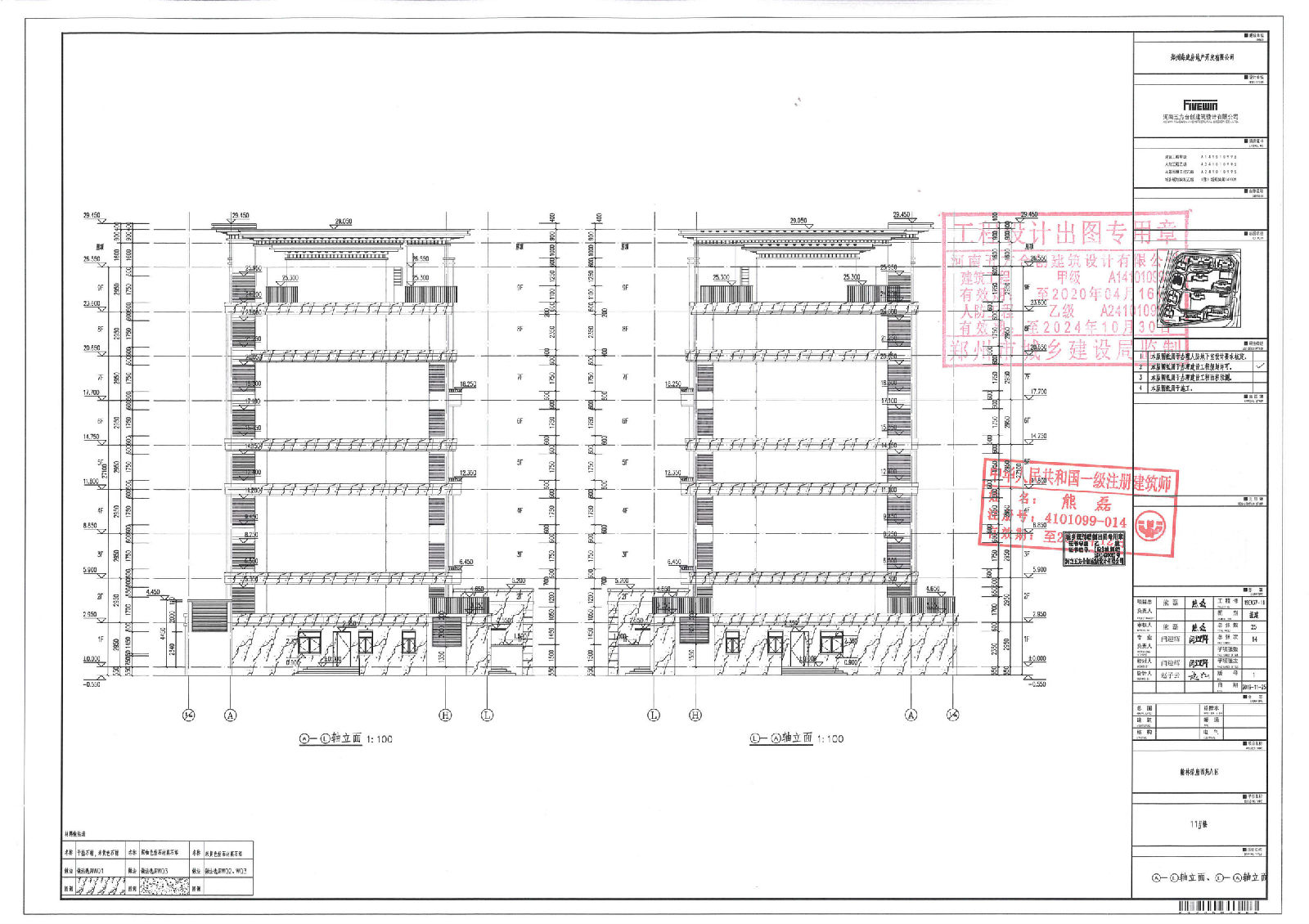
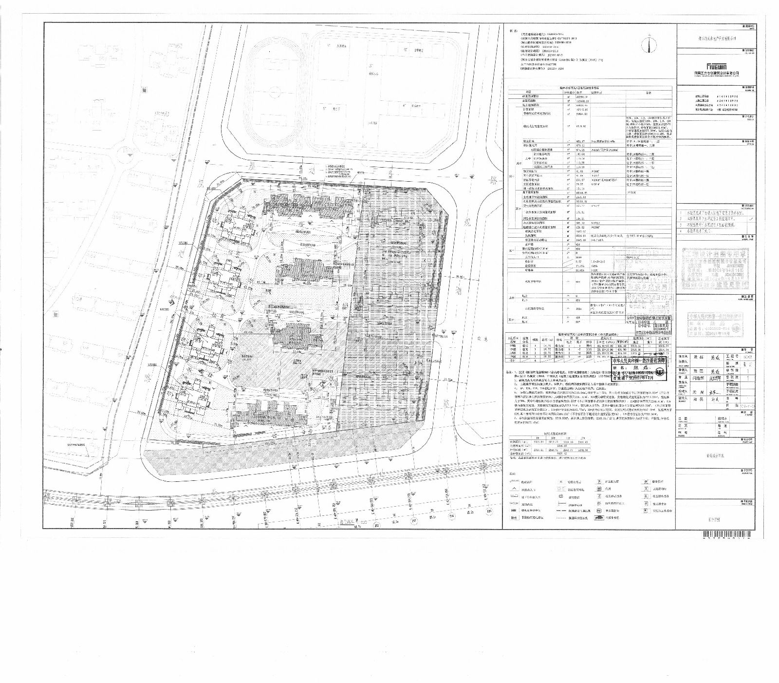
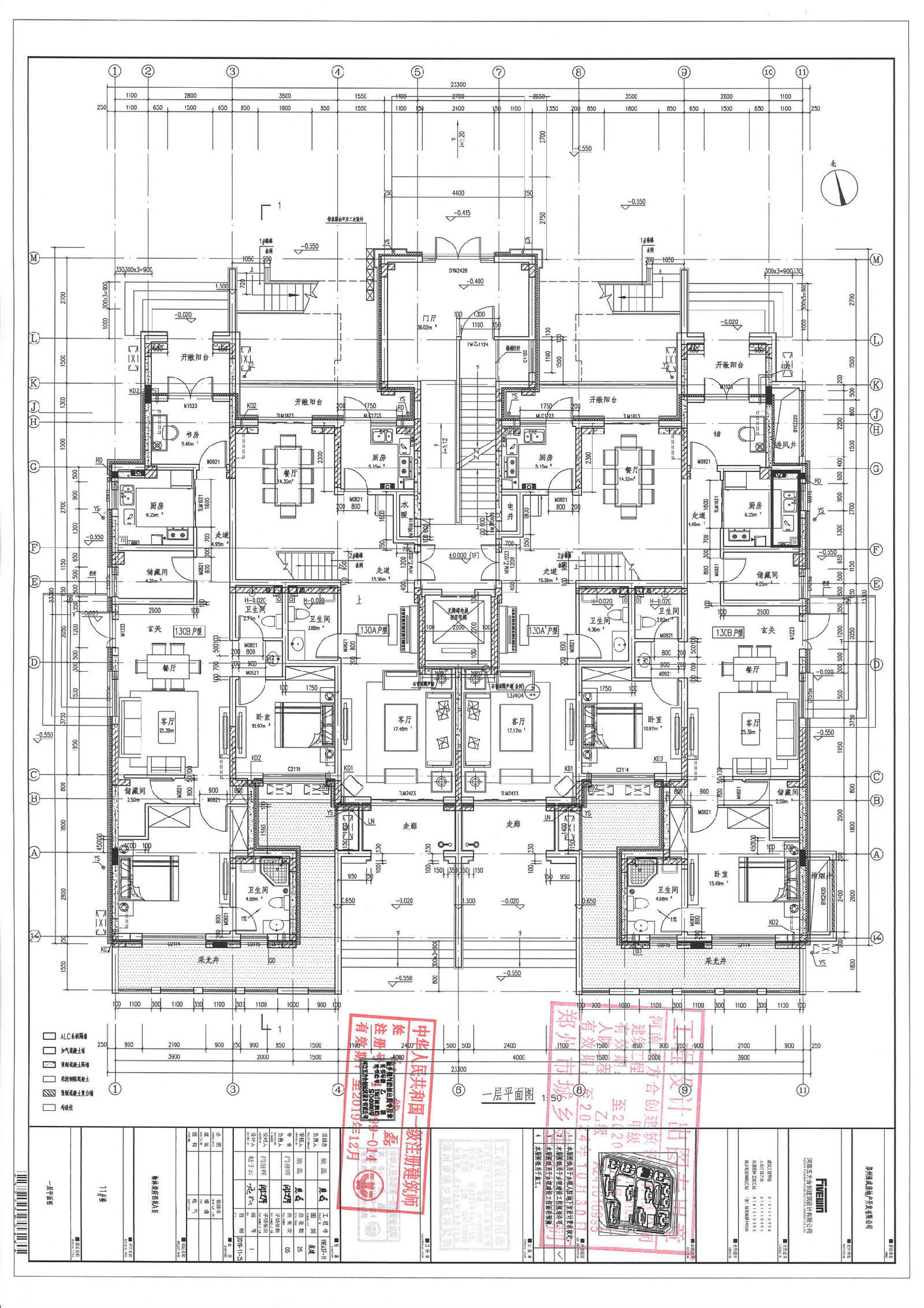
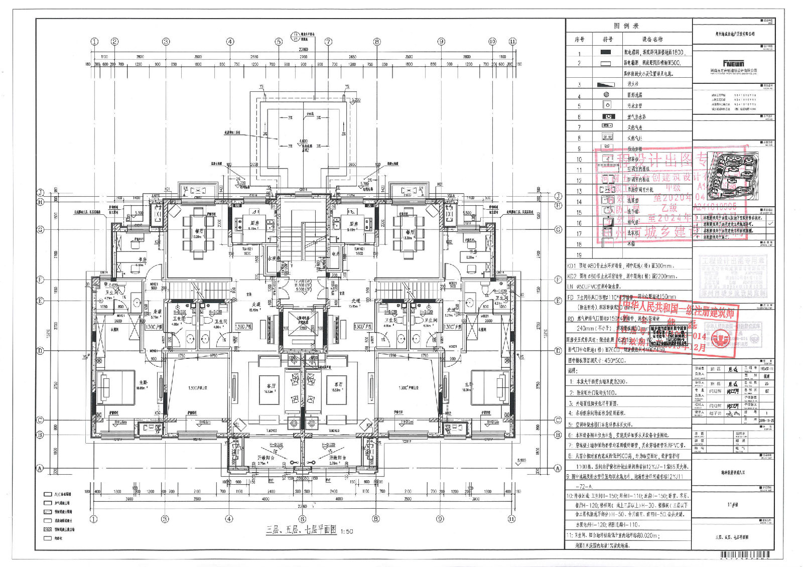
郑州海成房地产开发有限公司开发的翰林荣府西苑9#号楼-12#号楼项目,现正在我局办理建筑审批手续,根据有关法律、法规和《河南省城市规划公示制度》的要求,现予以公示:附图:总平面图、日照分析、鸟瞰图、平、立图 该项目公示期为2020年1月20日—2020年2月10日,如有意见或建议,请于公示期内向建管科反馈。 咨询电话:0371---62680880
主办单位:新郑市人民政府办公室
地址:新郑市人民路186号
邮编:451100
网站标识:4101840001
豫ICP备05015077号-1
豫公网安备 41018402000166号