繁體
登录
005299347/2020-00013
新郑市自然资源和规划局
城市规划
2020-01-23
2020-01-23
2020-01-23
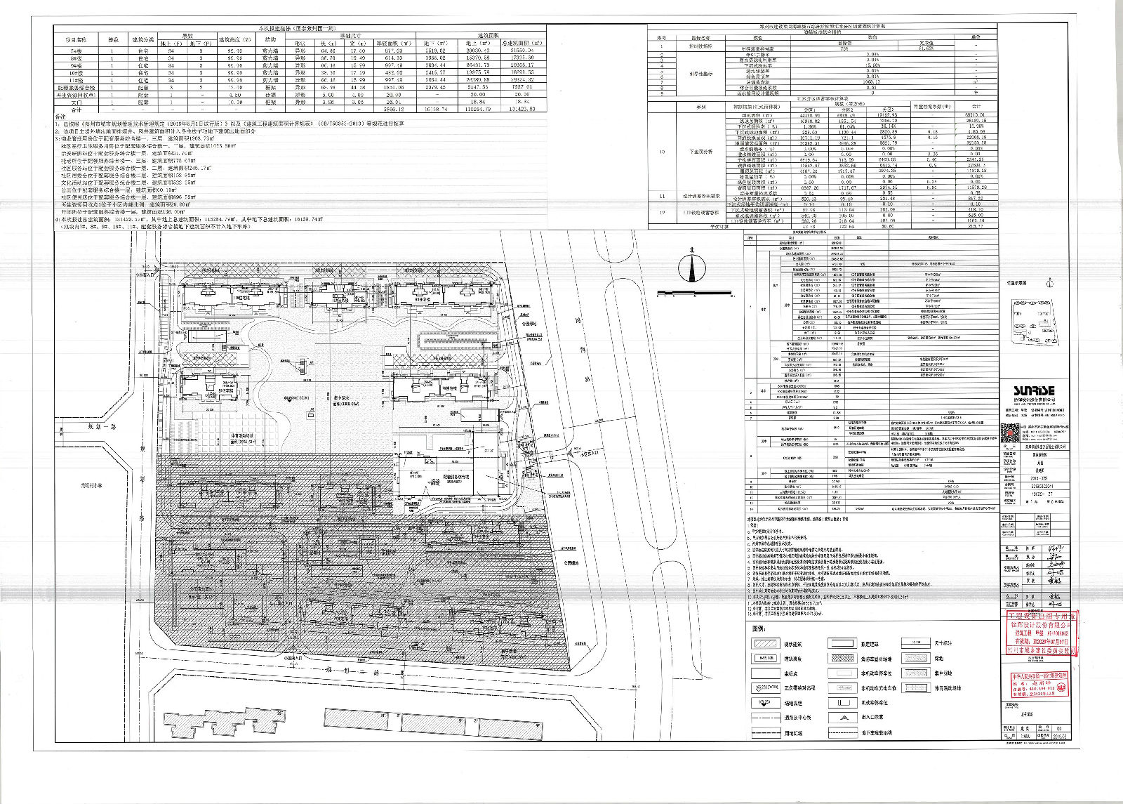
新郑市国泰紫荆园置业有限公司建设工程规划许可证批后公告
由新郑市国泰紫荆园置业有限公司开发的国泰紫荆园项目,已在我局办理建筑审批手续,根据有关法律、法规和《河南省城市规划公示制度》的要求,现予以公告: 附图:建设工程规划许可证正本 附件 总平面图 该项目公告期为2020年1月23日至规划核实合格。
主办单位:新郑市人民政府办公室
地址:新郑市人民路186号
邮编:451100
网站标识:4101840001
豫ICP备05015077号-1
豫公网安备 41018402000166号