繁體
登录
005299347/2020-00070
新郑市自然资源和规划局
城市规划
2020-04-22
2020-04-22
2020-04-22
2020-05-07
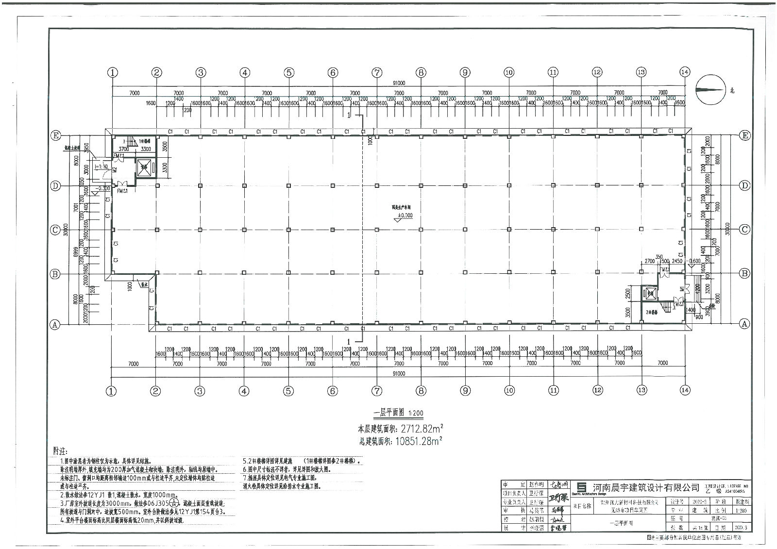
郑州豫力新材料科技有限公司建筑方案征求意见
由郑州豫力新材料科技有限公司开发的项目,现正在我局办理建筑审批手续,依据《城乡规划法》、《行政许可法》等有关法律法规,特此公示。 附图:总平面图、鸟瞰图、平、立面图 该项目公示期为2020年4月22日—2020年5月7日,如有意见或建议,请于公示期内向我局反馈。 信访意见电话:0371---62680880
主办单位:新郑市人民政府办公室
地址:新郑市人民路186号
邮编:451100
网站标识:4101840001
豫ICP备05015077号-1
豫公网安备 41018402000166号