• 005299347/2020-00124
  • 新郑市自然资源和规划局
  • 规划,城市规划
  • 2020-05-13
  • 2020-05-13
  • 2020-05-13
郑州乾龙物流有限公司建筑方案征求意见

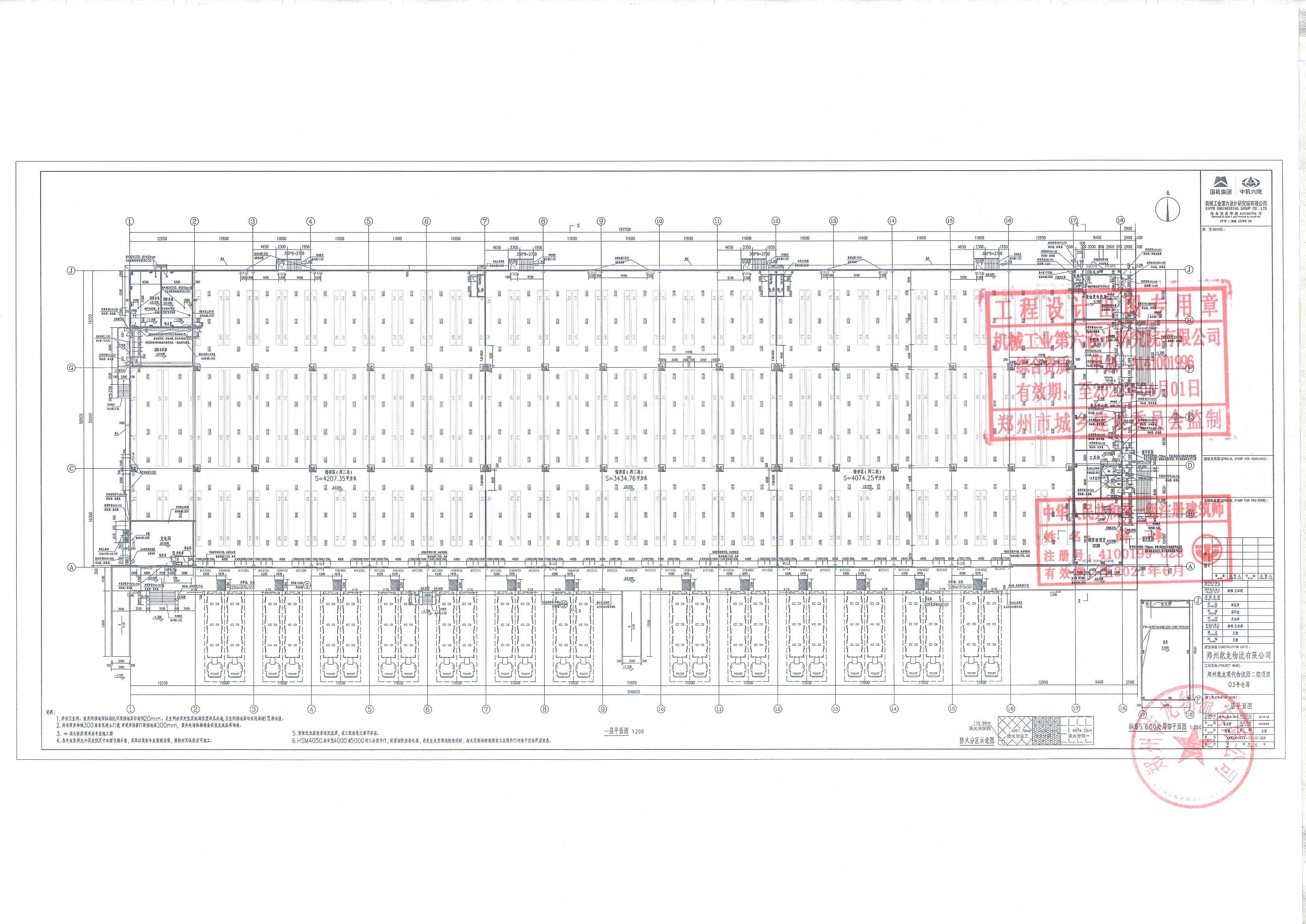
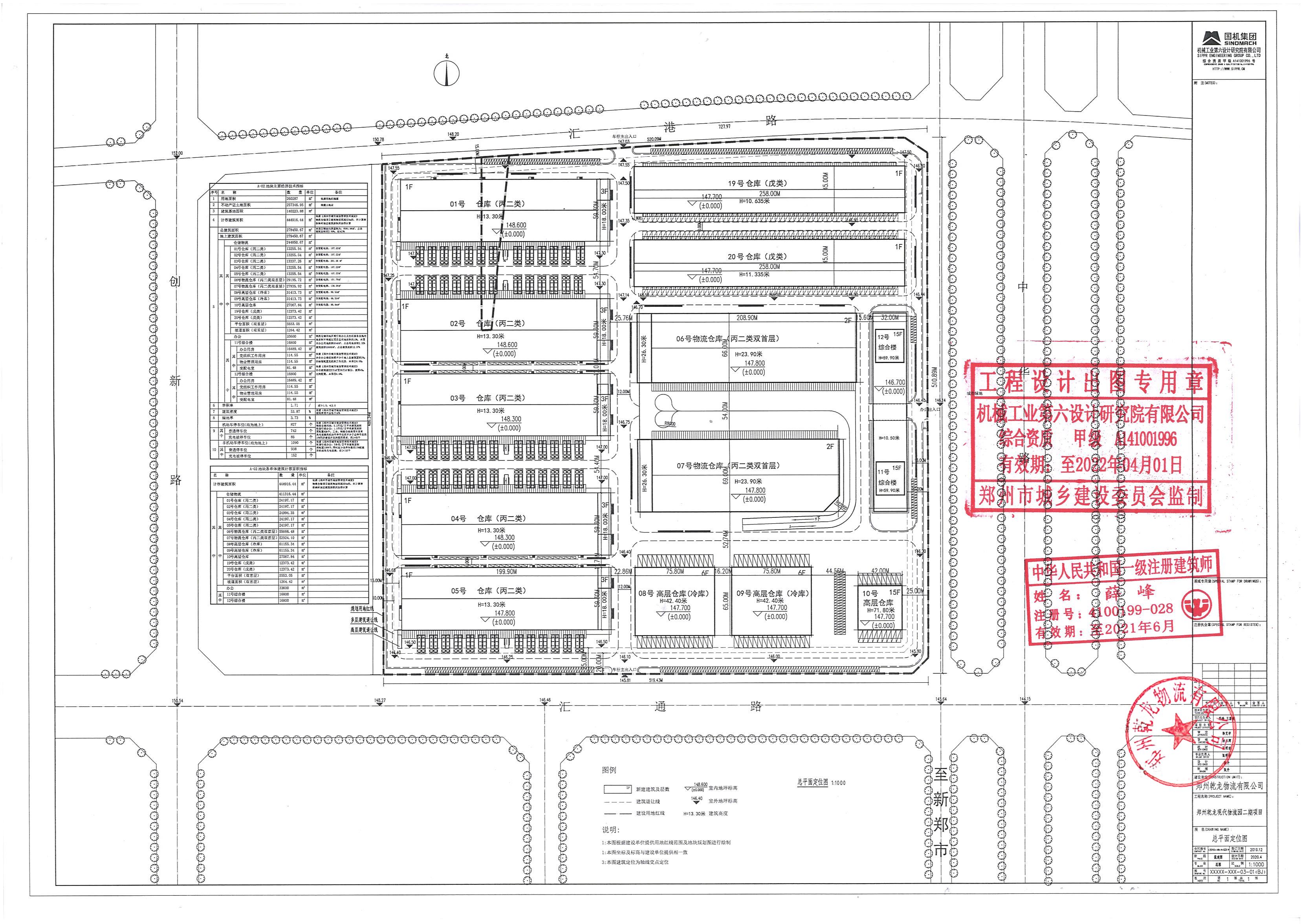
由郑州乾龙物流有限公司开发建设的 郑州乾龙现代物流园二期项目,现正在我局办理建筑审批手续,根据有关法律、法规和《河南省城市规划公示制度》的要求,现予以公示: 附图:总平面图、鸟瞰图、平、立面图 该项目公示期为2020年5月13日—2020年5月26日,如有意见或建议,请于公示期内向建管科反馈。 信访意见电话:0371---62680880



主办单位:新郑市人民政府办公室 地址:新郑市人民路186号 邮编:451100