• 005299347/2020-00278
  • 新郑市自然资源和规划局
  • 城市规划
  • 2020-07-15
  • 2020-07-15
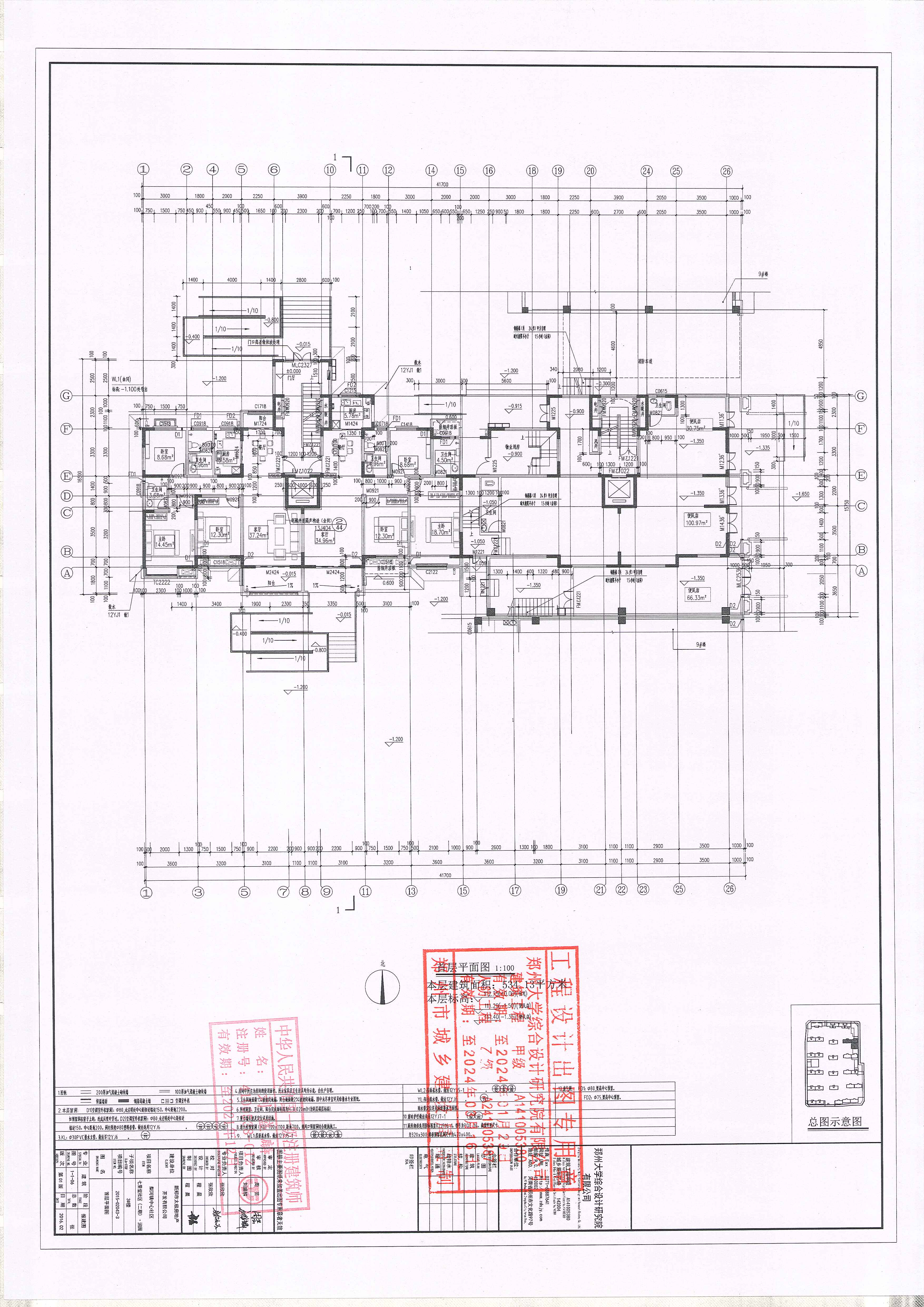
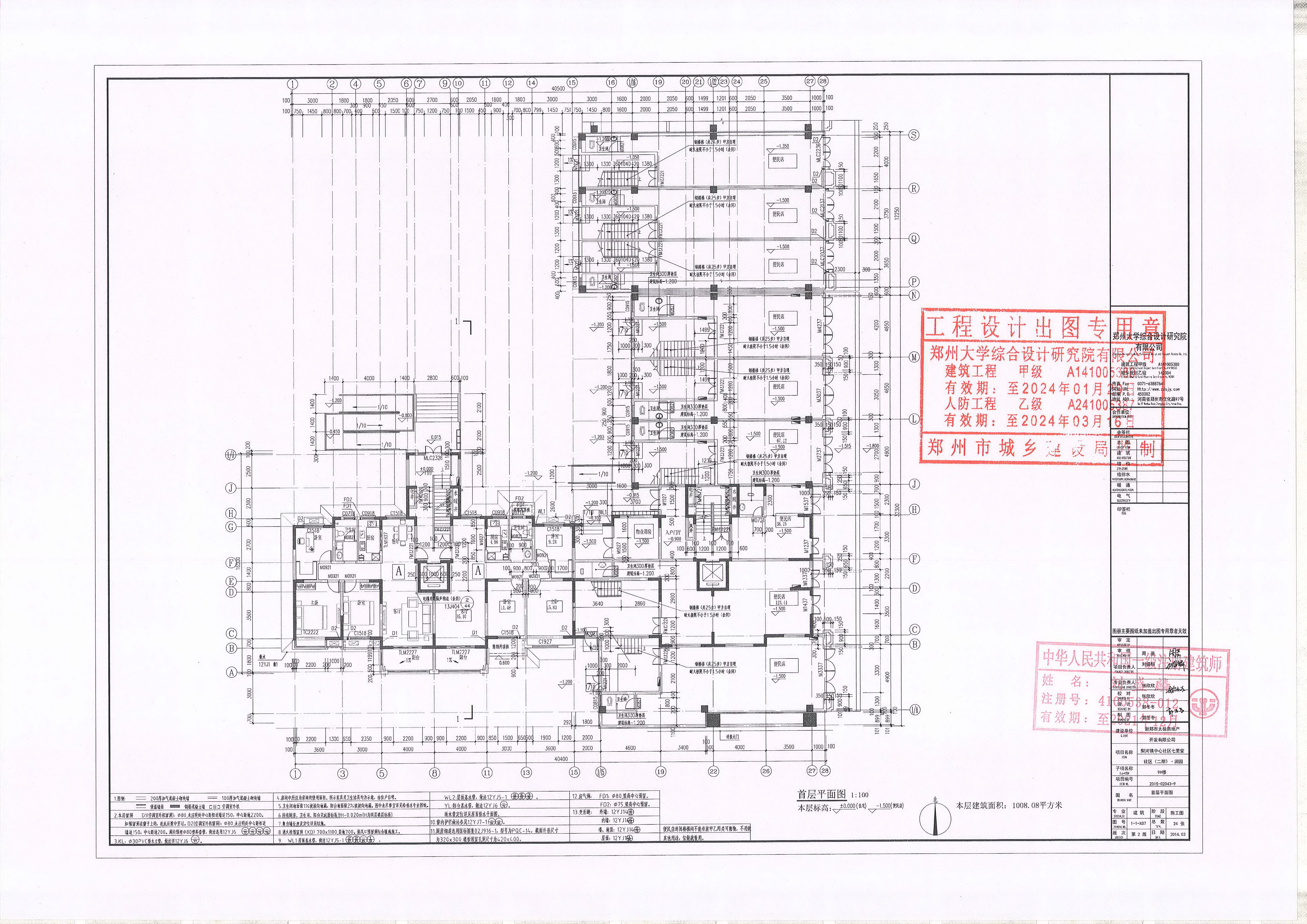
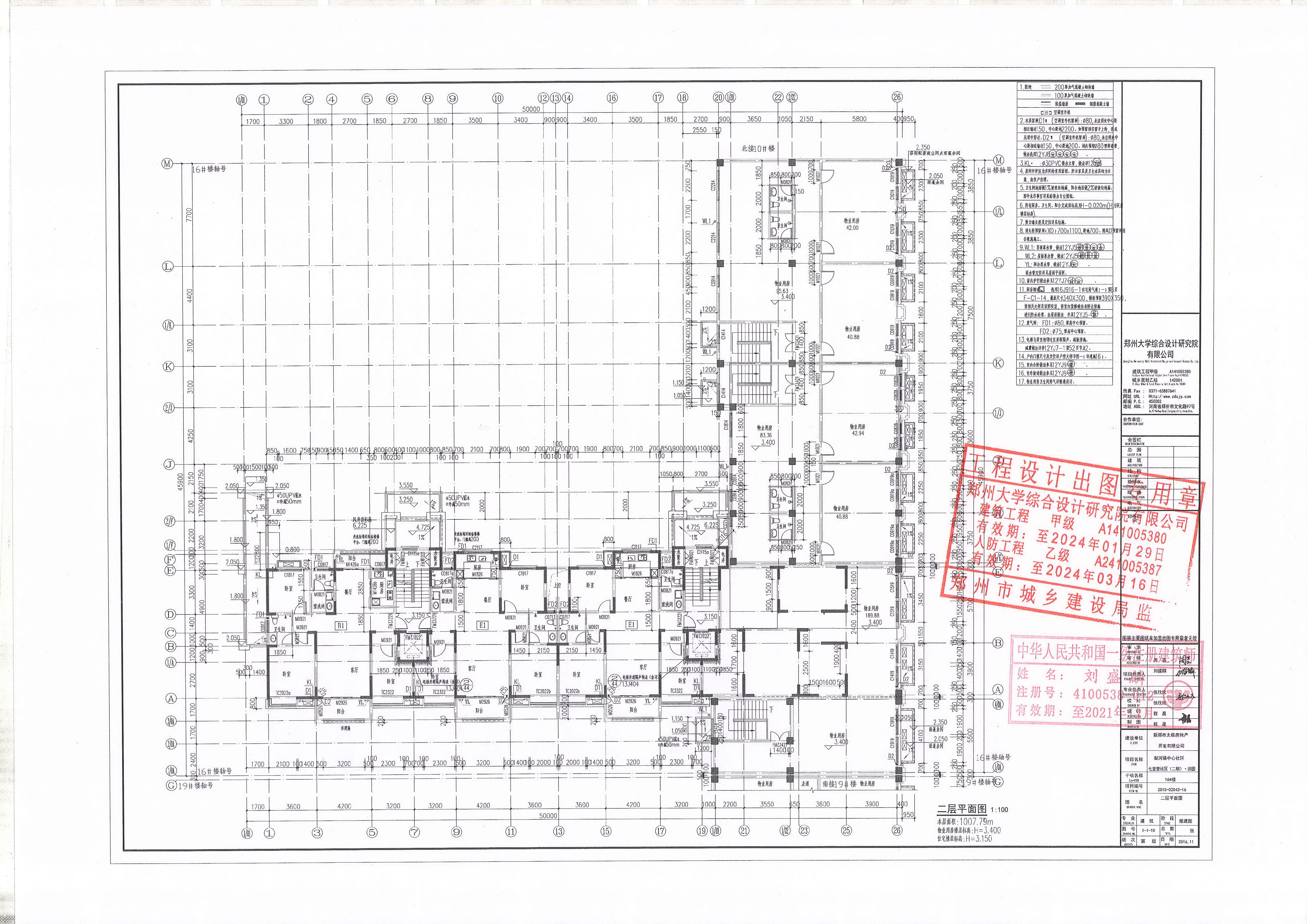
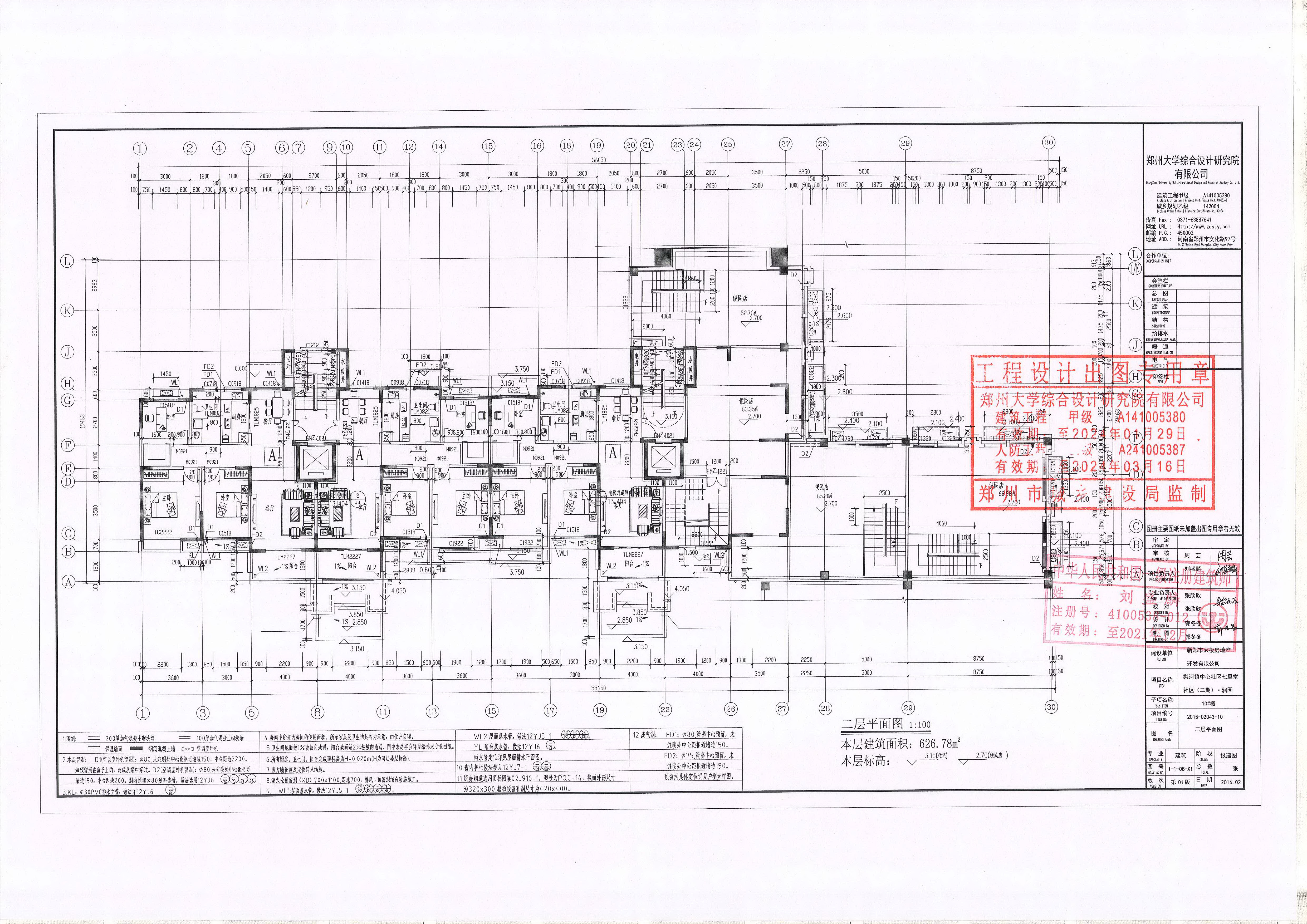
新郑市太极房地产开发有限公司项目规划方案变更公示

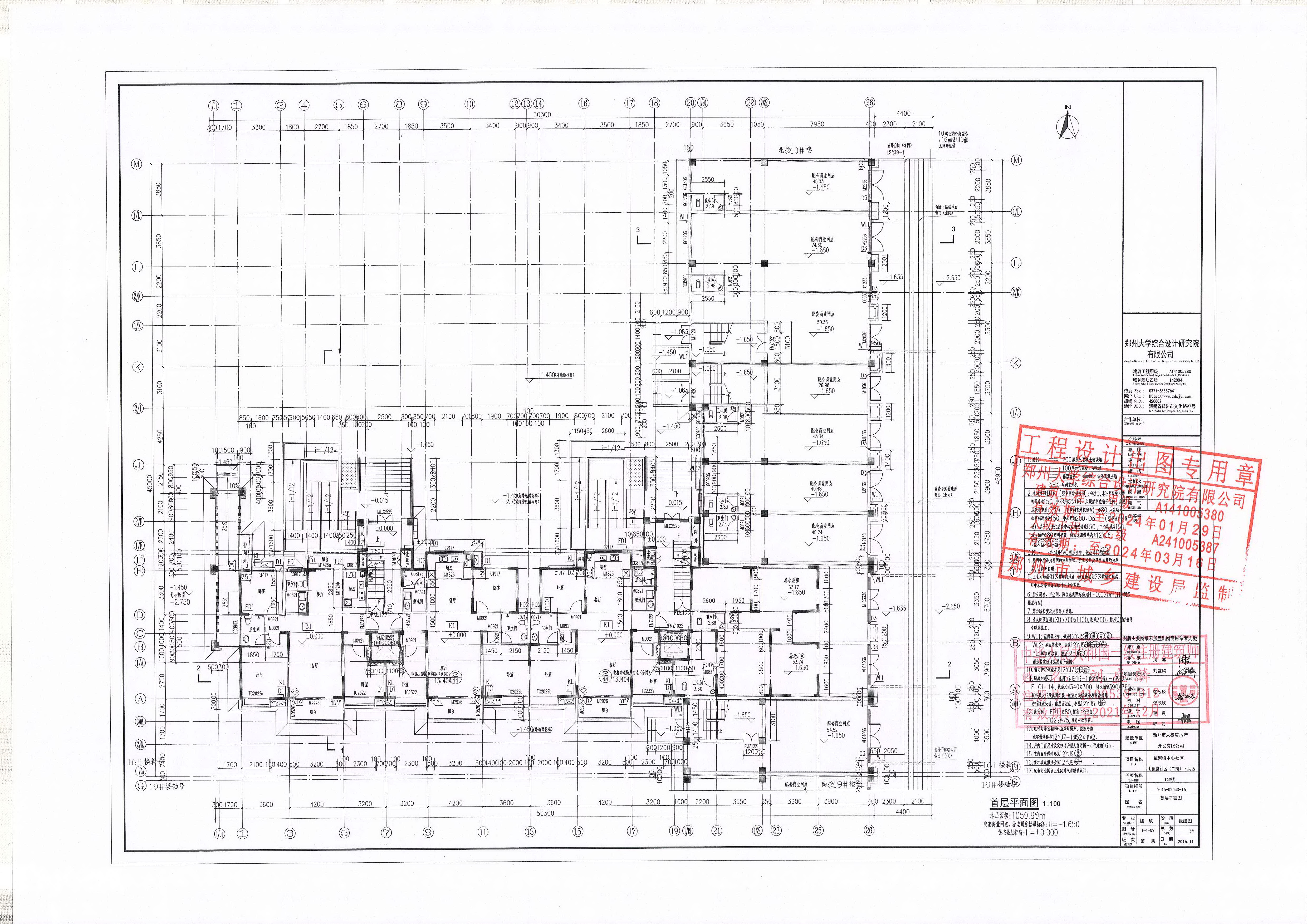
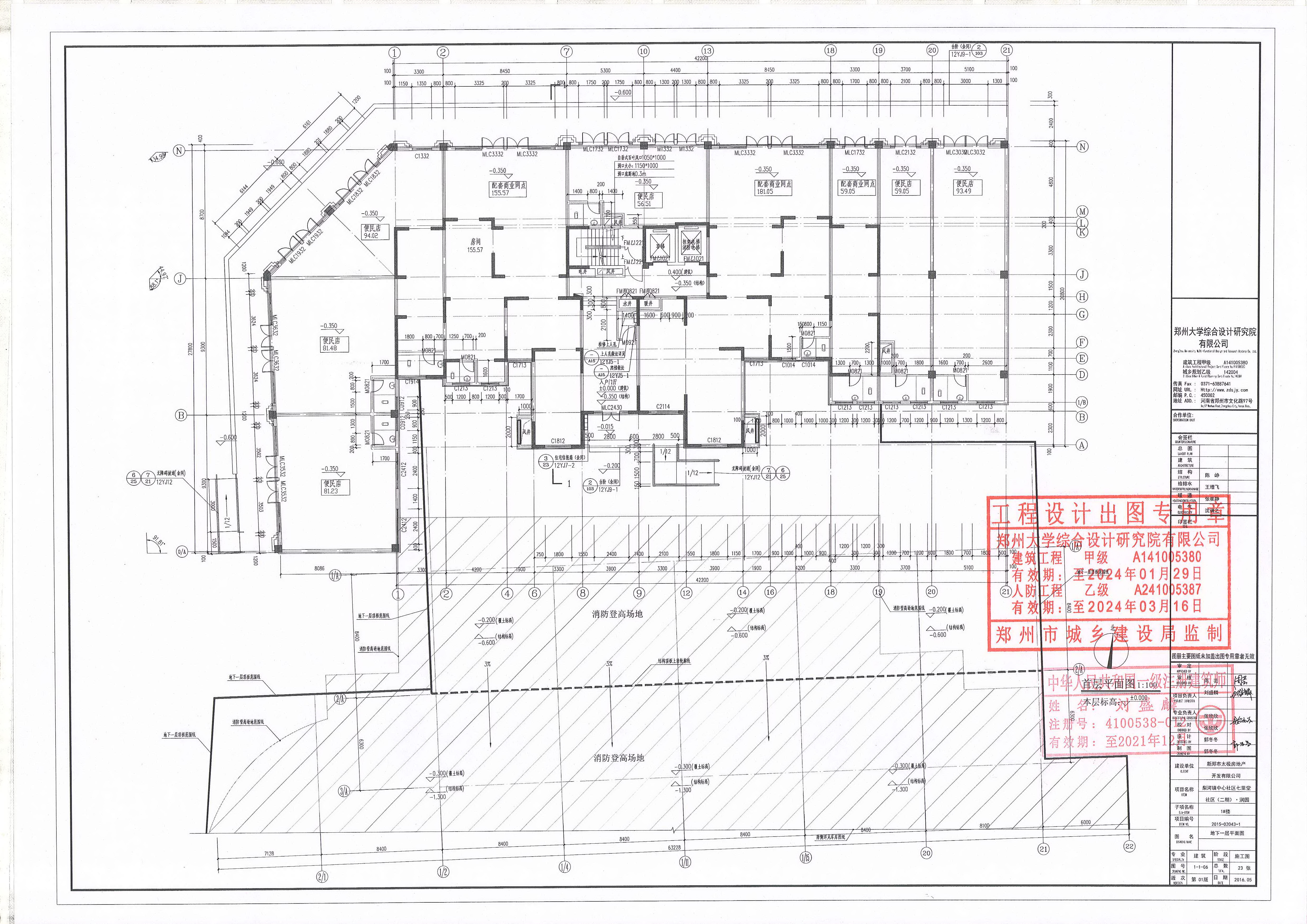
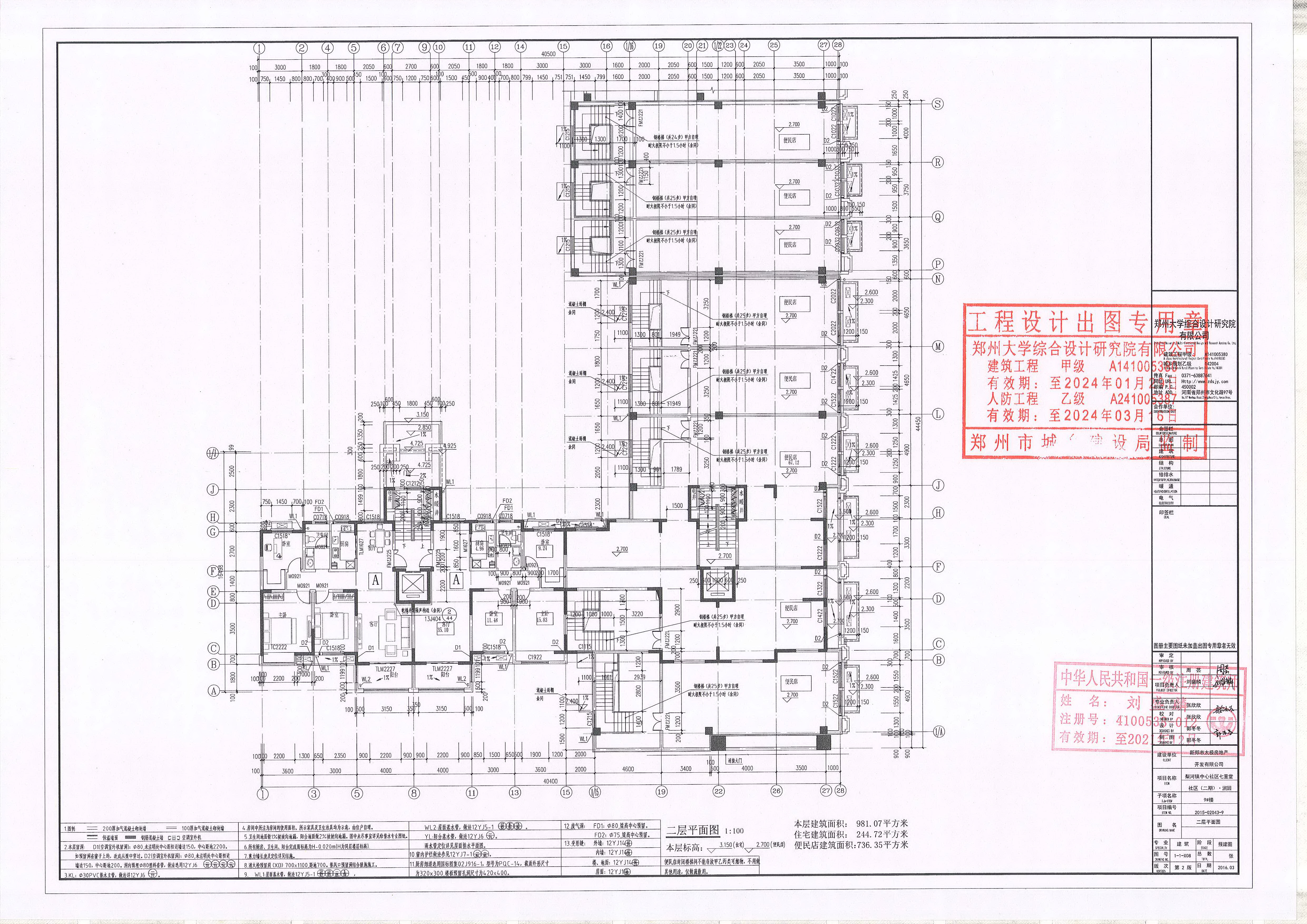
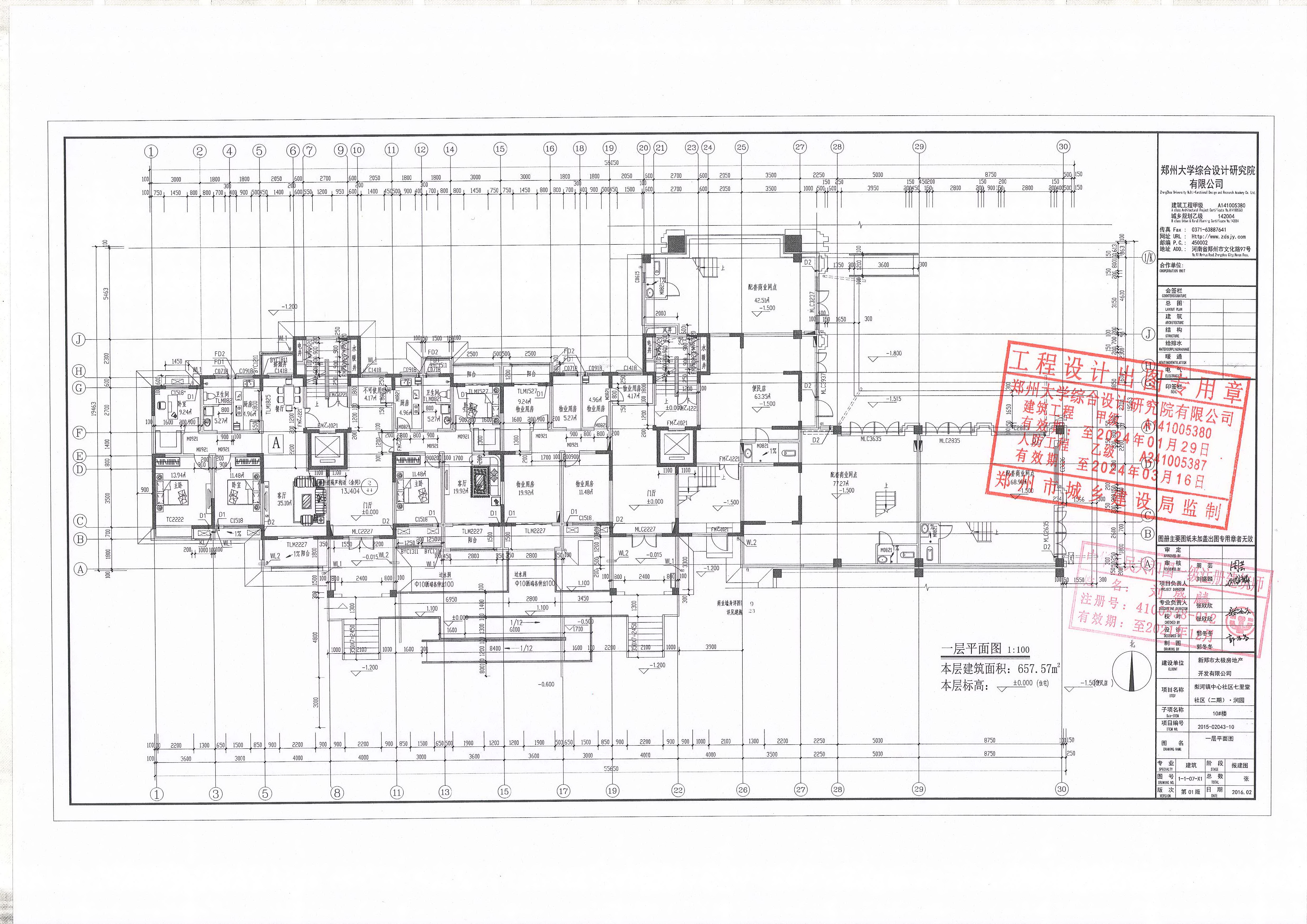
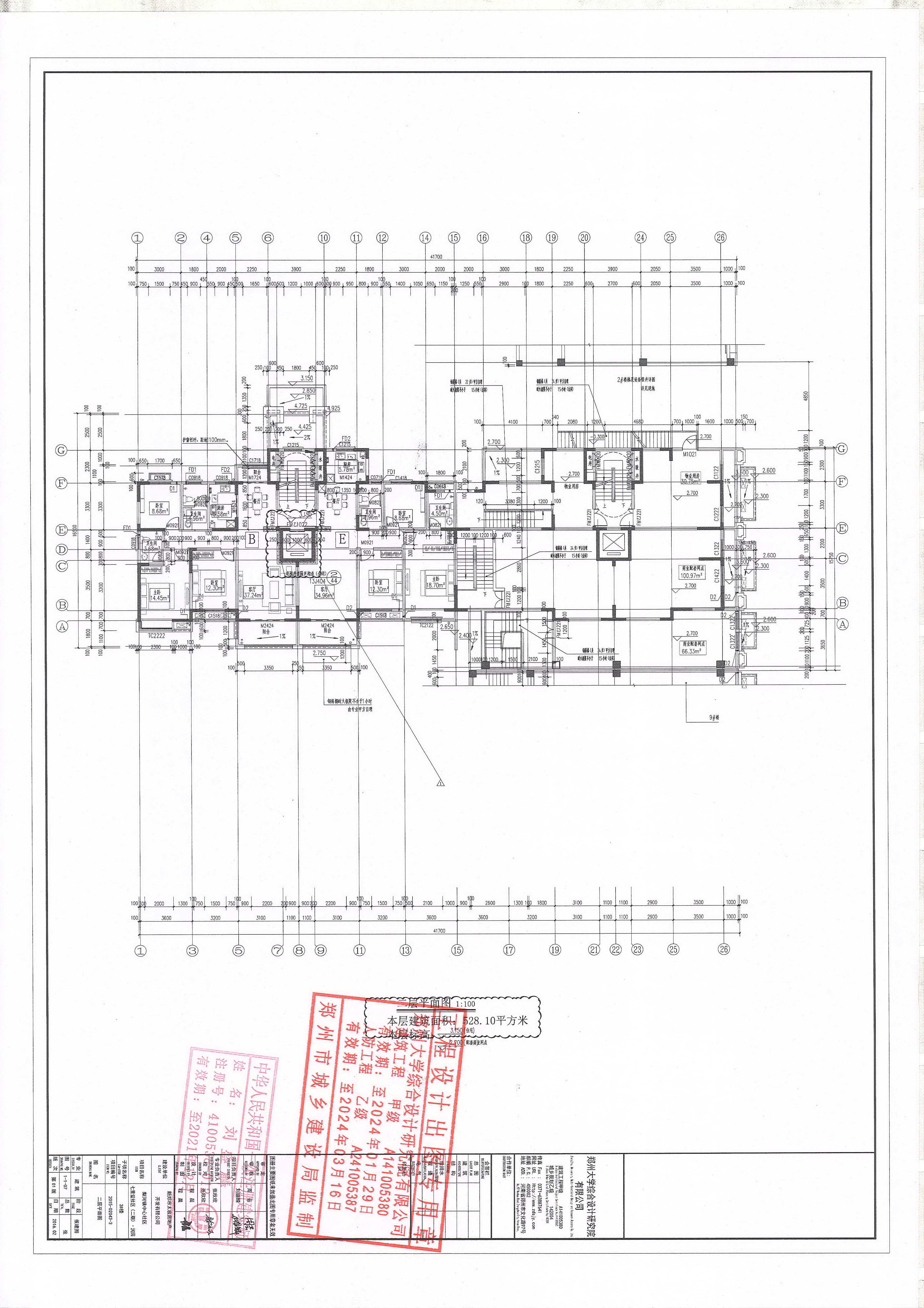
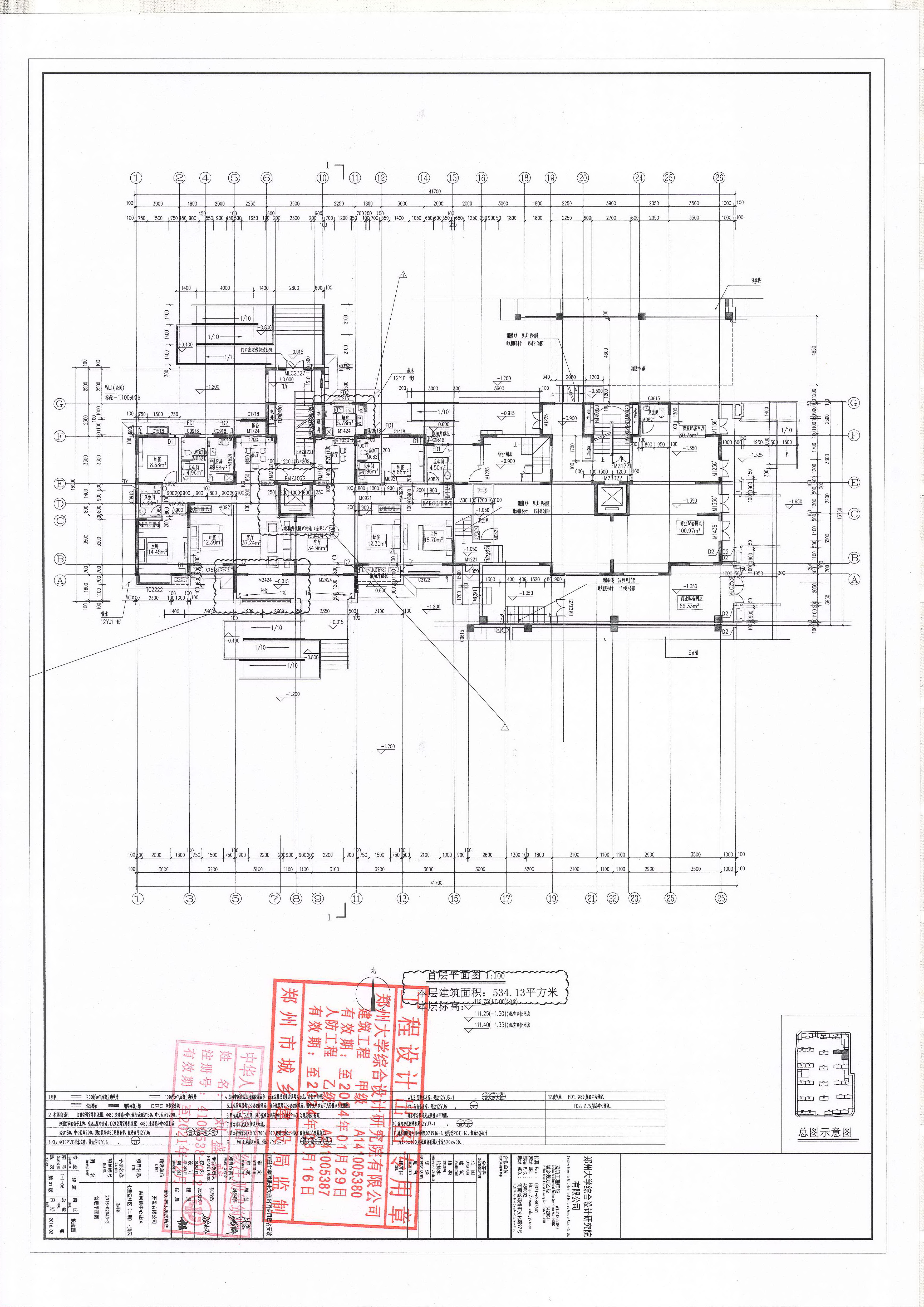
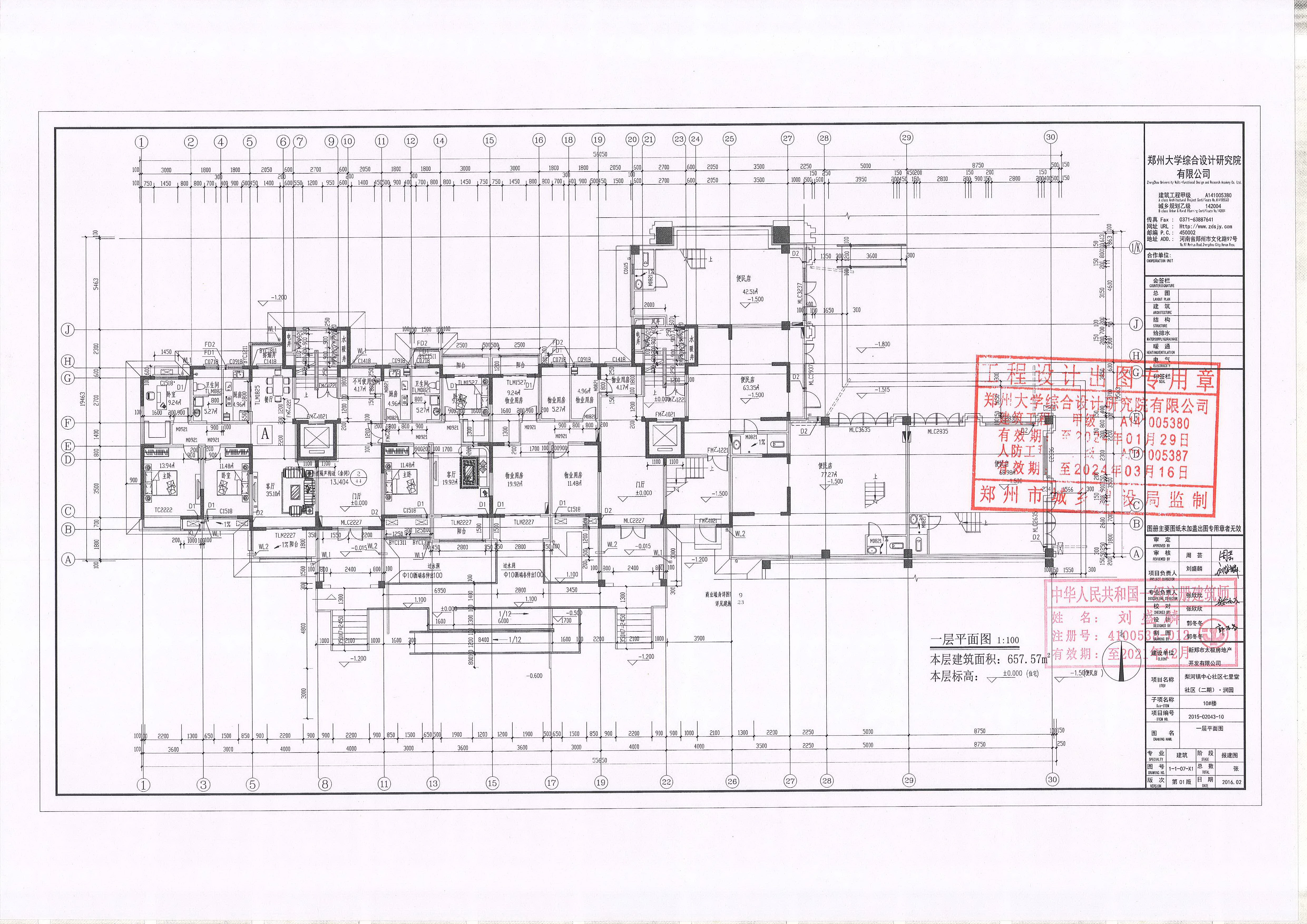
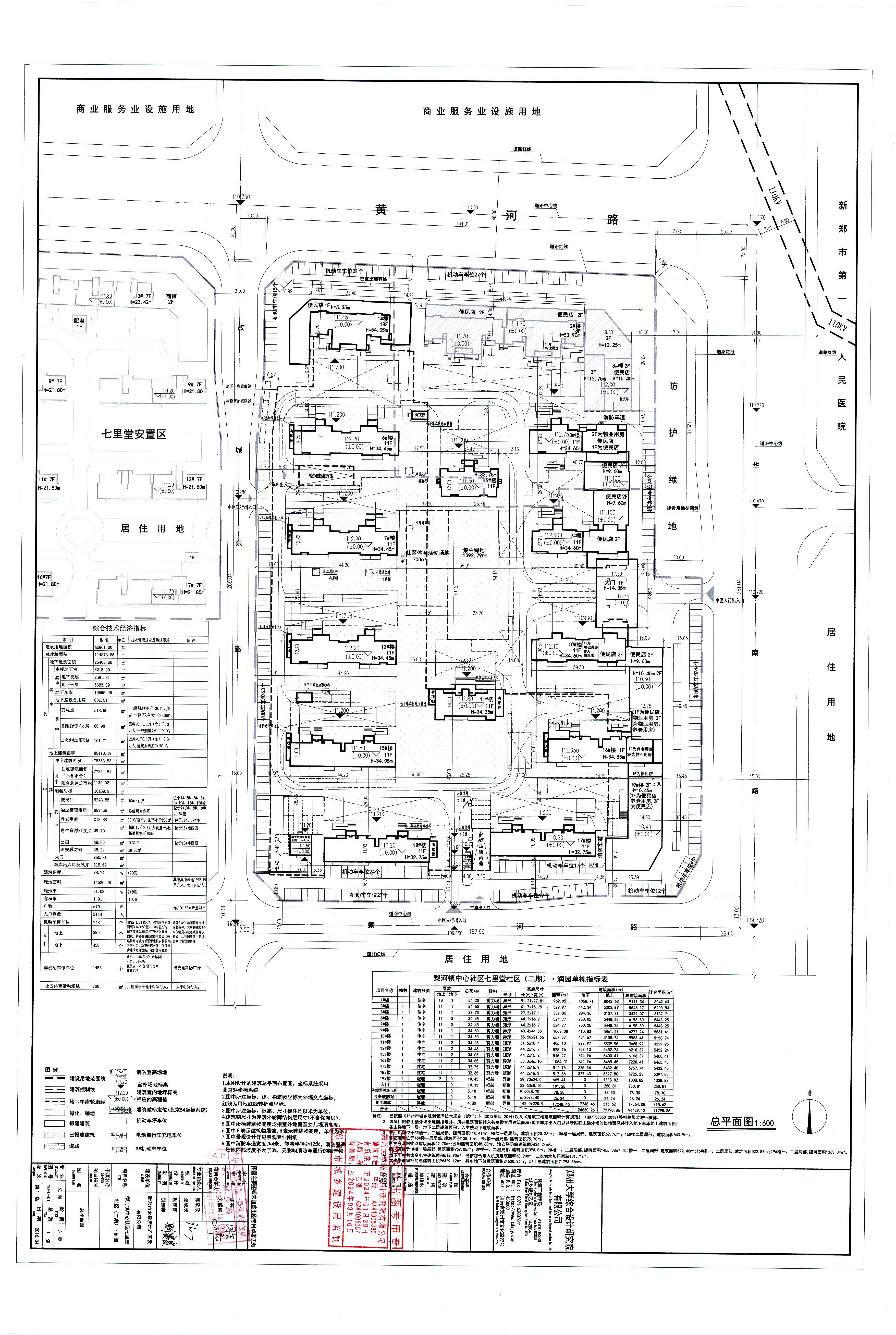
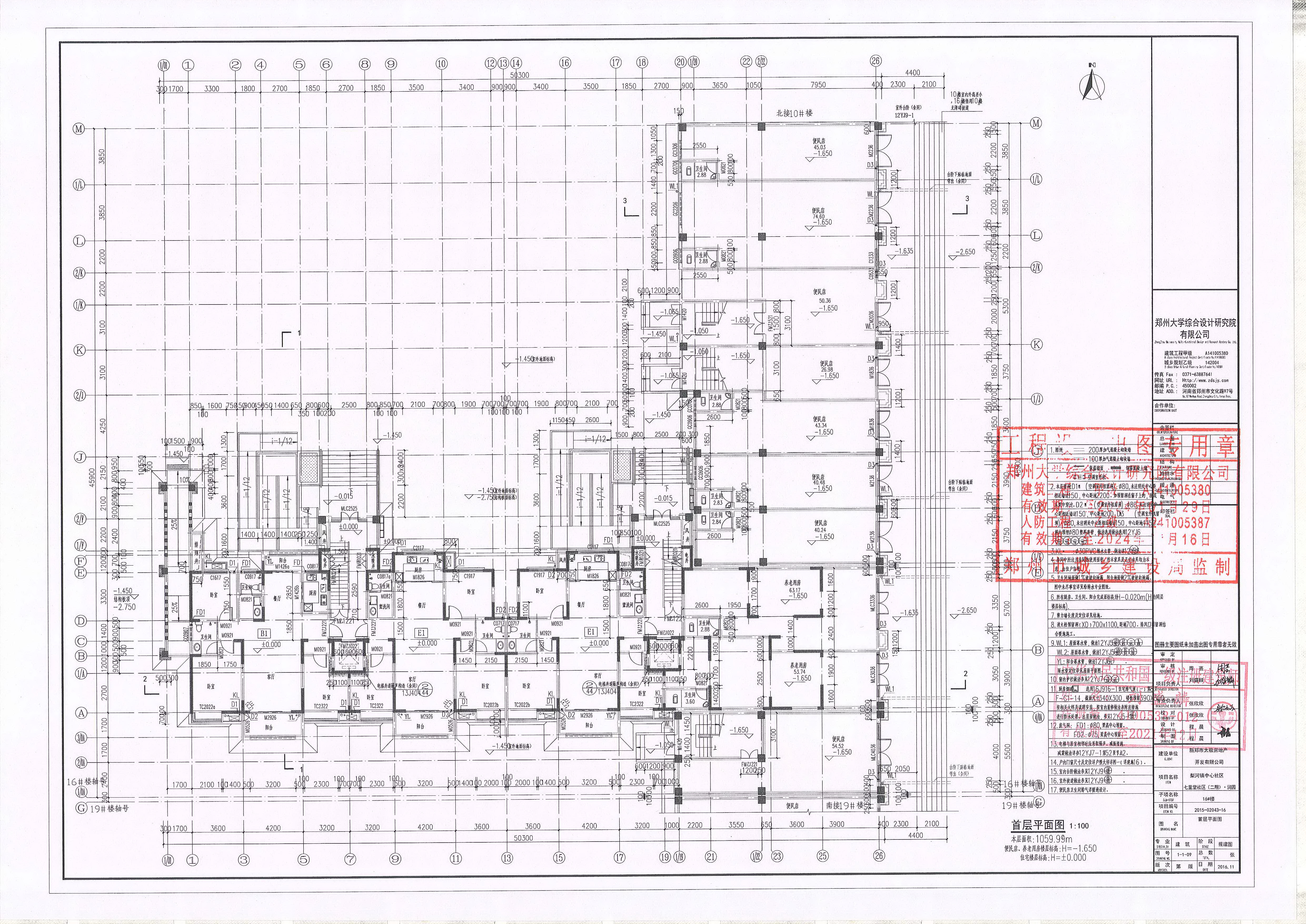
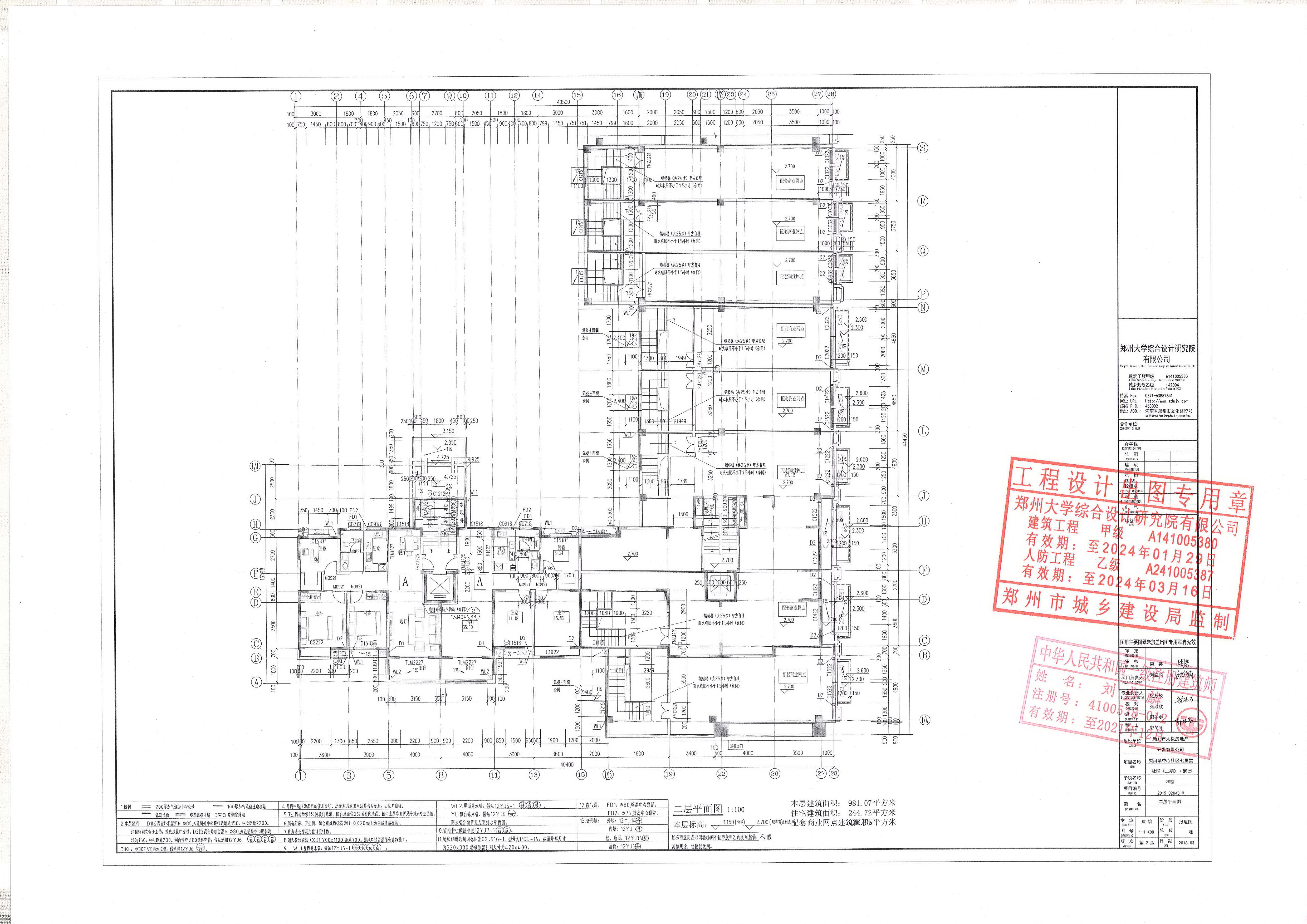
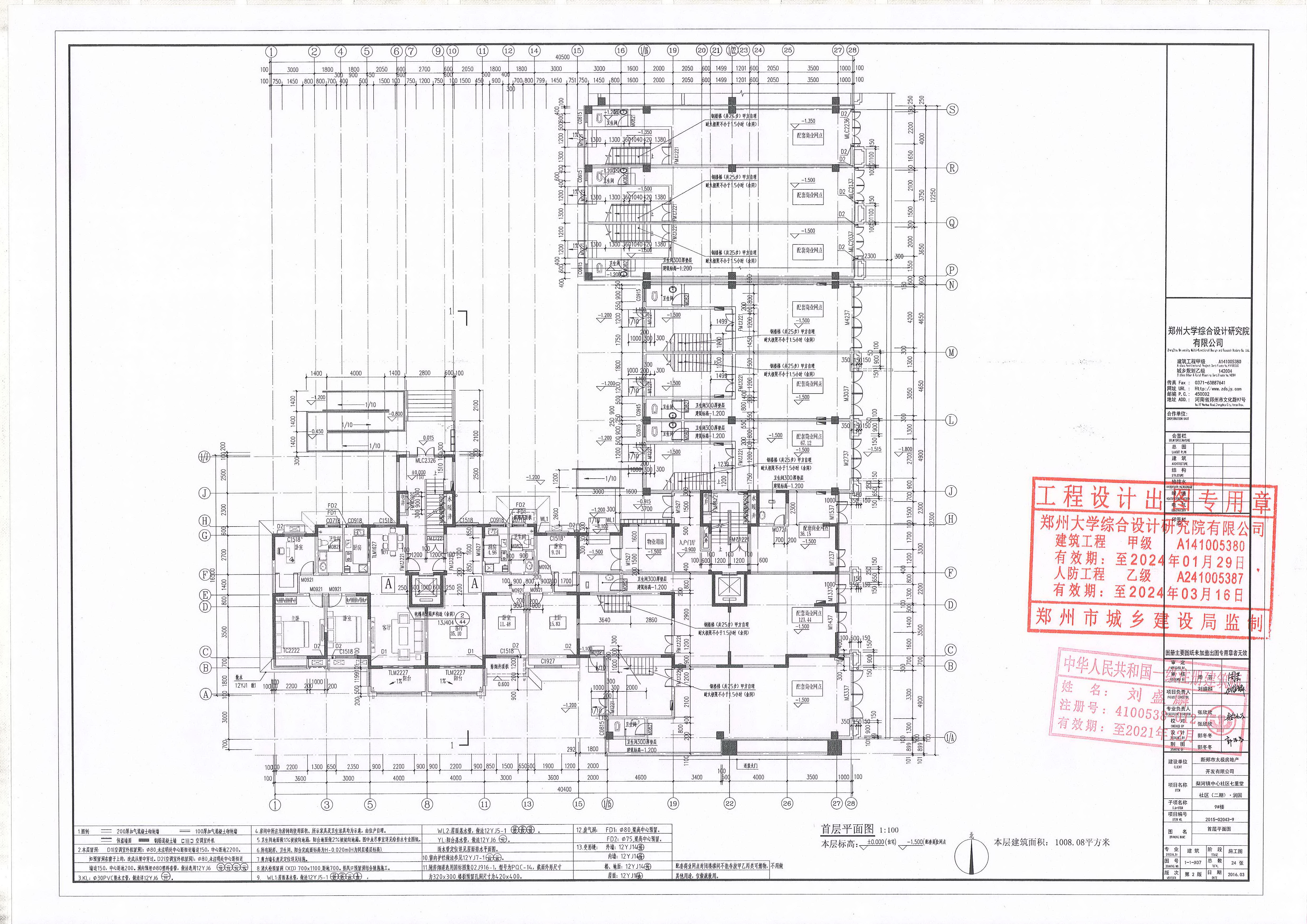
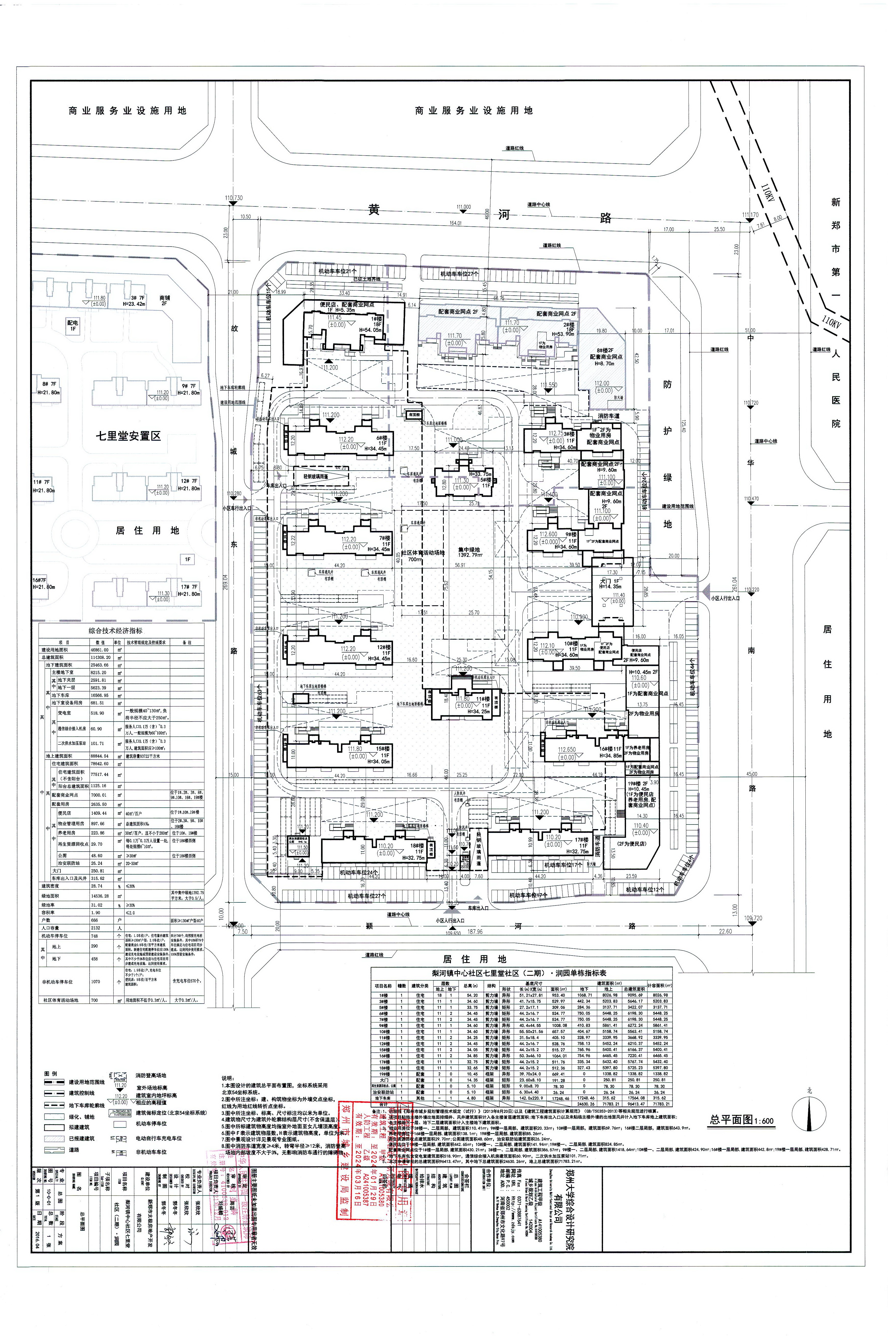
项目名称:梨河镇中心社区七里堂社区(二期)·润园

公示类别:规划方案变更公示

建设单位:新郑市太极房地产开发有限公司

用地位置:梨河镇中华南路西侧、黄河路南侧

公示期限:10个工作日

公示日期:2020年07月15日至2020年07月28日

附图:变更申请、变更前总平面图、变更后总平图、变更前单体图、变更后单体图

新郑市自然资源和规划局信访意见电话:0371---62680880

主办单位:新郑市人民政府办公室 地址:新郑市人民路186号 邮编:451100