繁體
登录
005299347/2020-00295
新郑市自然资源和规划局
城市规划
2020-07-23
2020-07-23
新郑市成美房地产开发有限公司规划方案变更公示
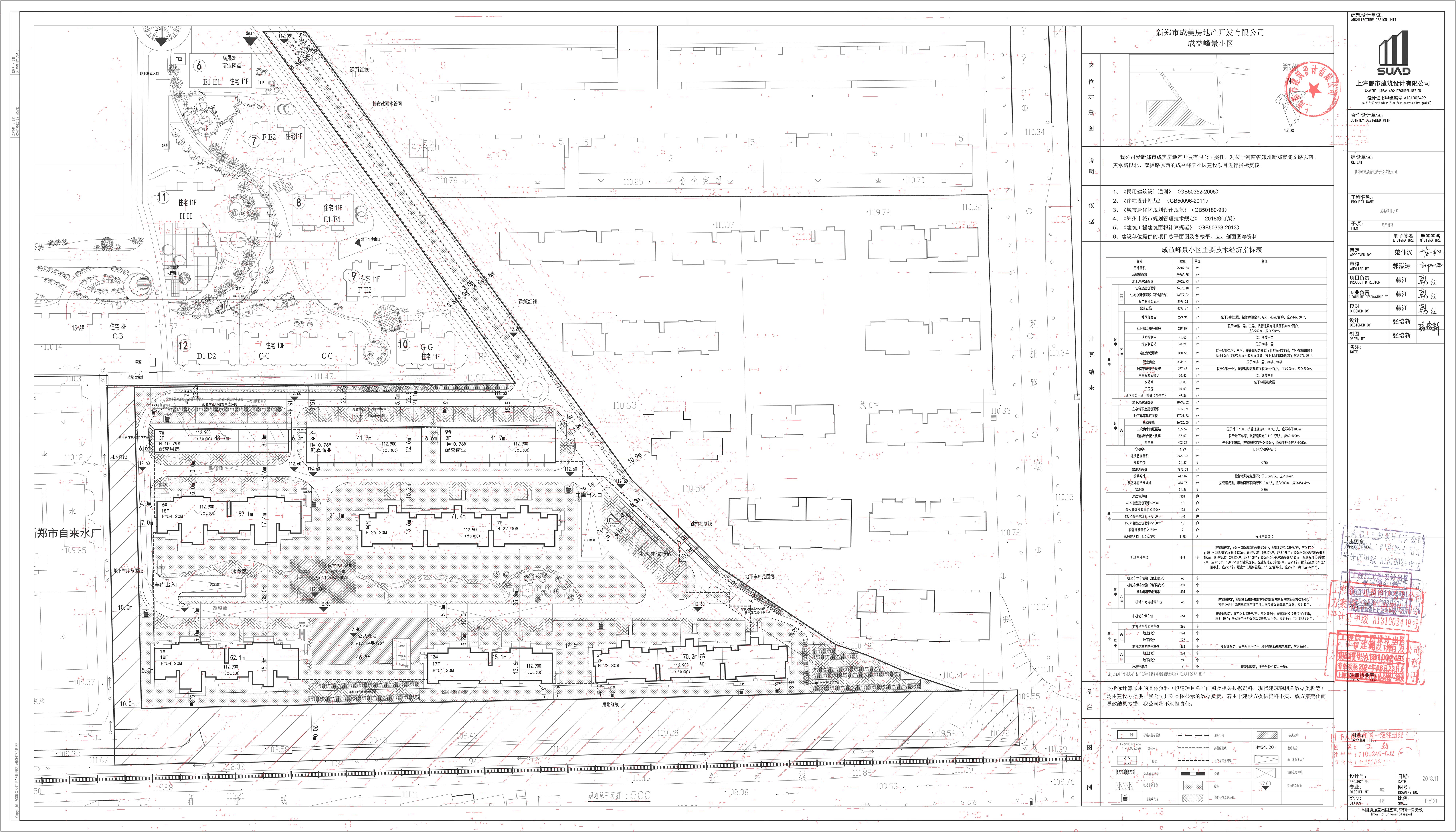
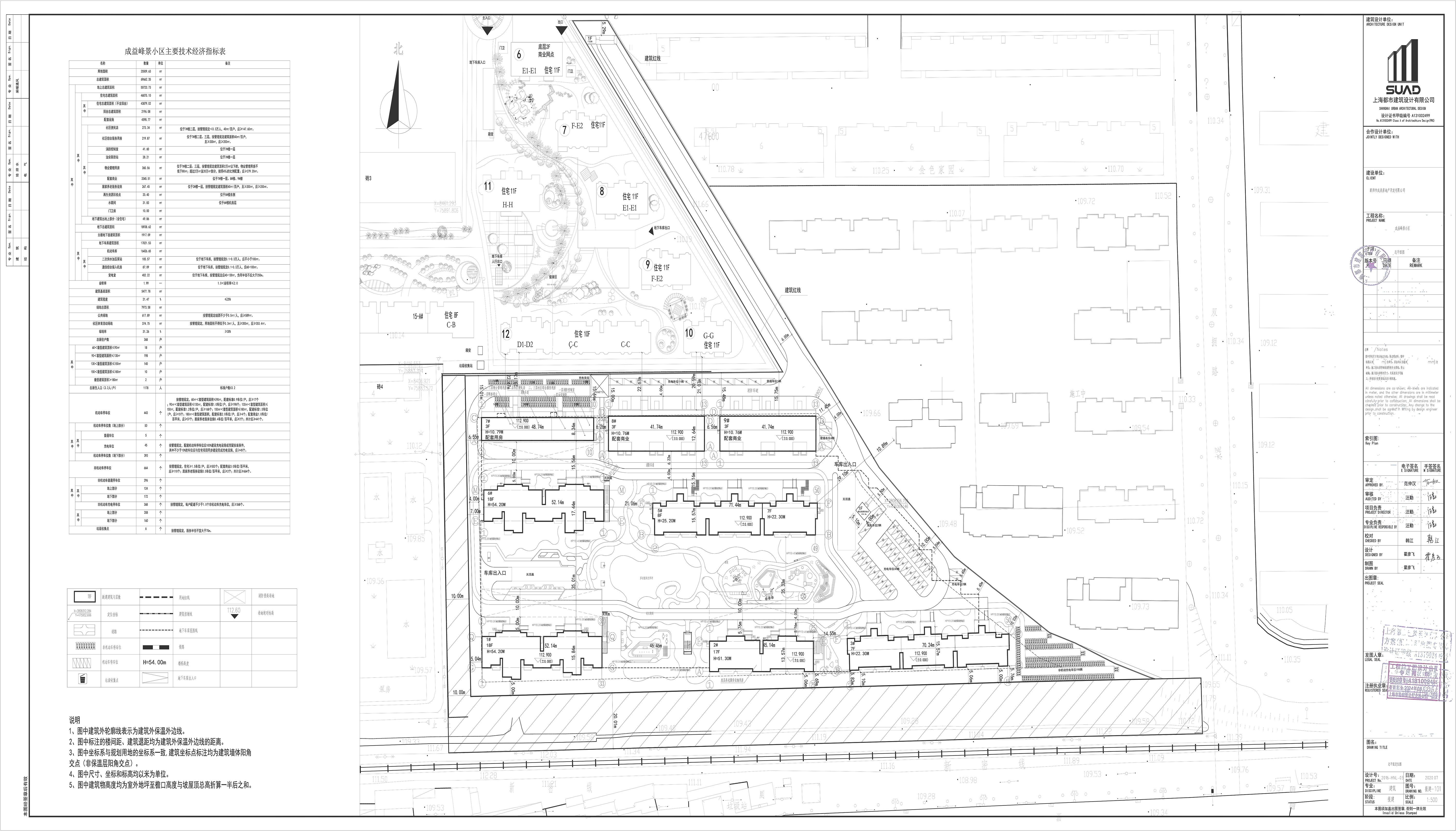
项目名称:成益峰景小区 公示类别:规划方案变更公示 建设单位:新郑市成美房地产开发有限公司 用地位置:新华路街道陶文路南侧、新郑市晟邦置业有限公司西侧 公示期限:10个工作日 公示日期:2020年7月23日至2020年8月5日 附图:变更申请、变更前总平面图、变更后总平面图、变更前单体图、变更后单体图 新郑市自然资源和规划局信访意见电话:0371---62680880
变更申请
变更前总平面图
变更后总平面图
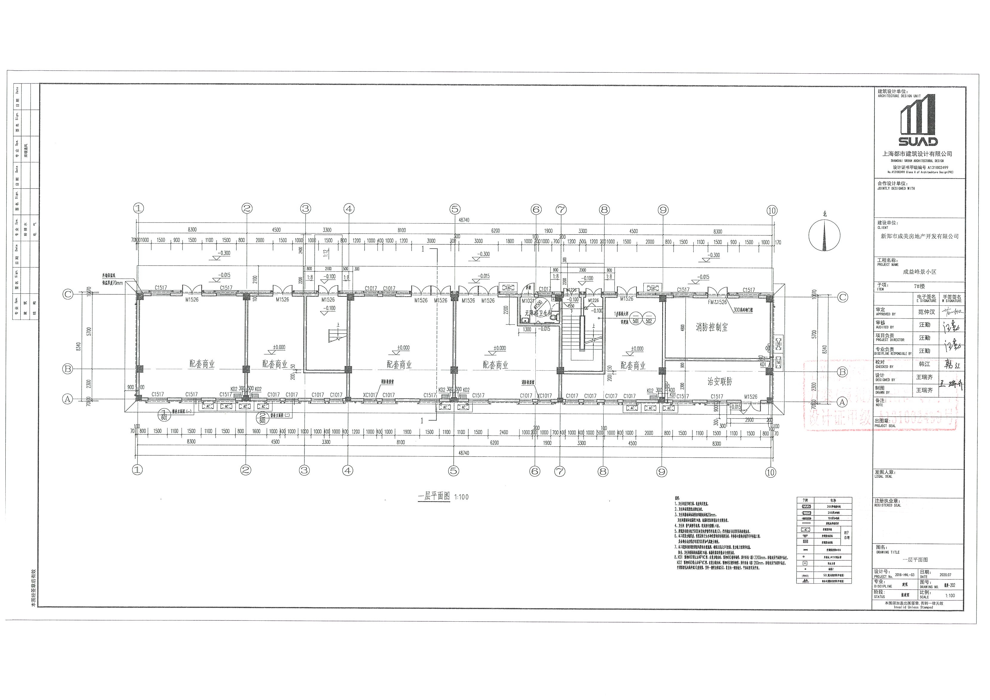
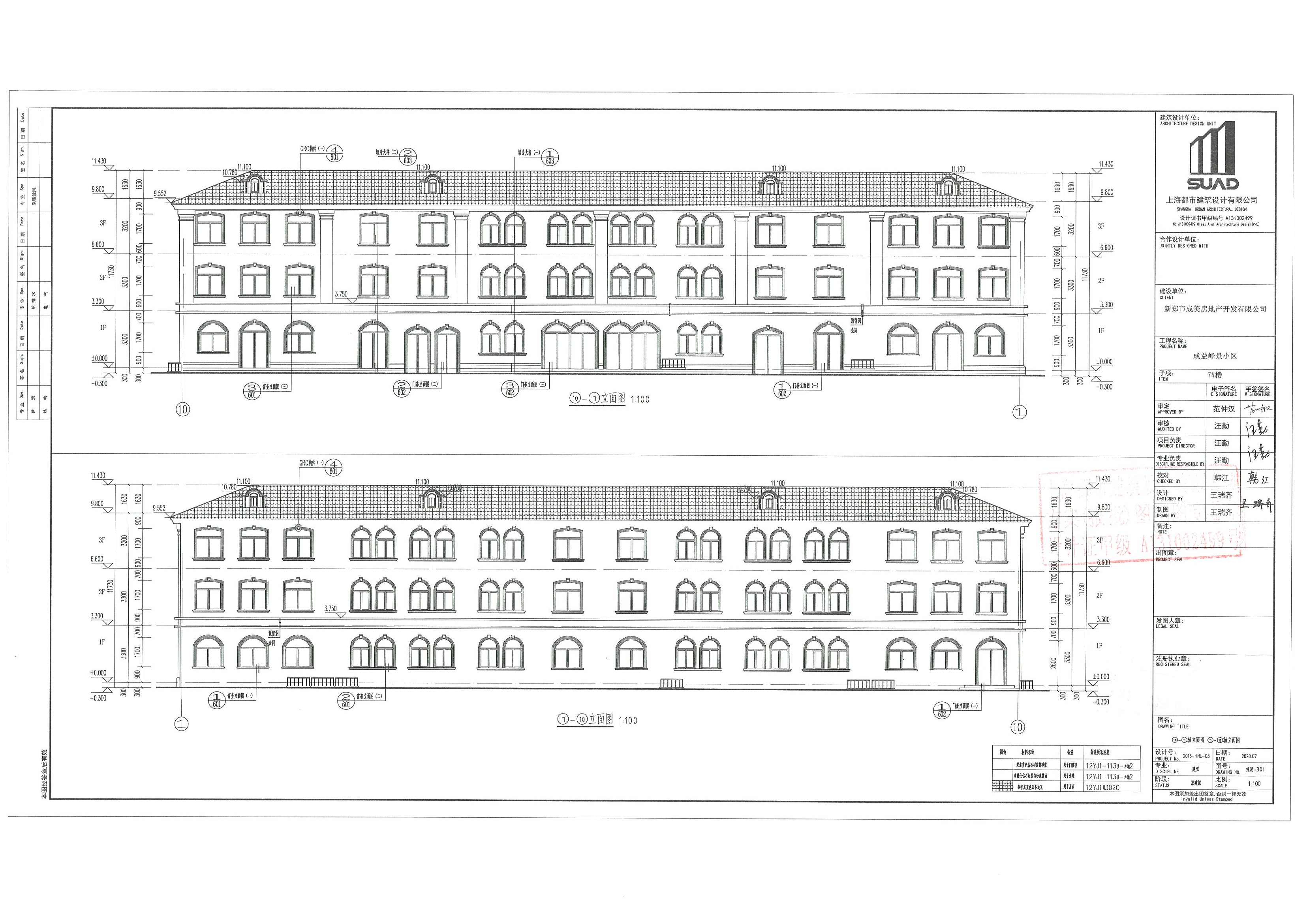
变更前单体图(7#楼)
变更前单体图(8#)
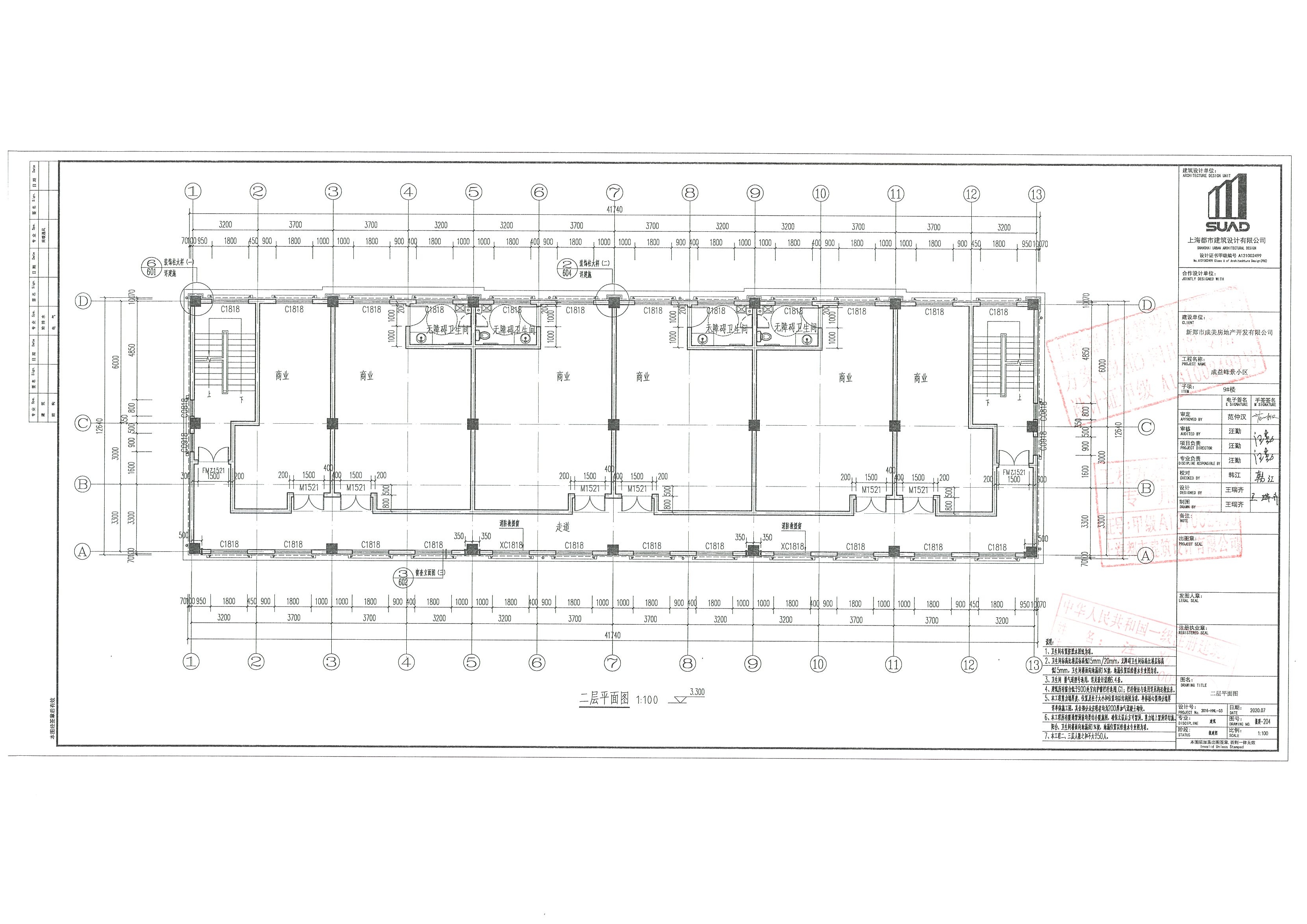
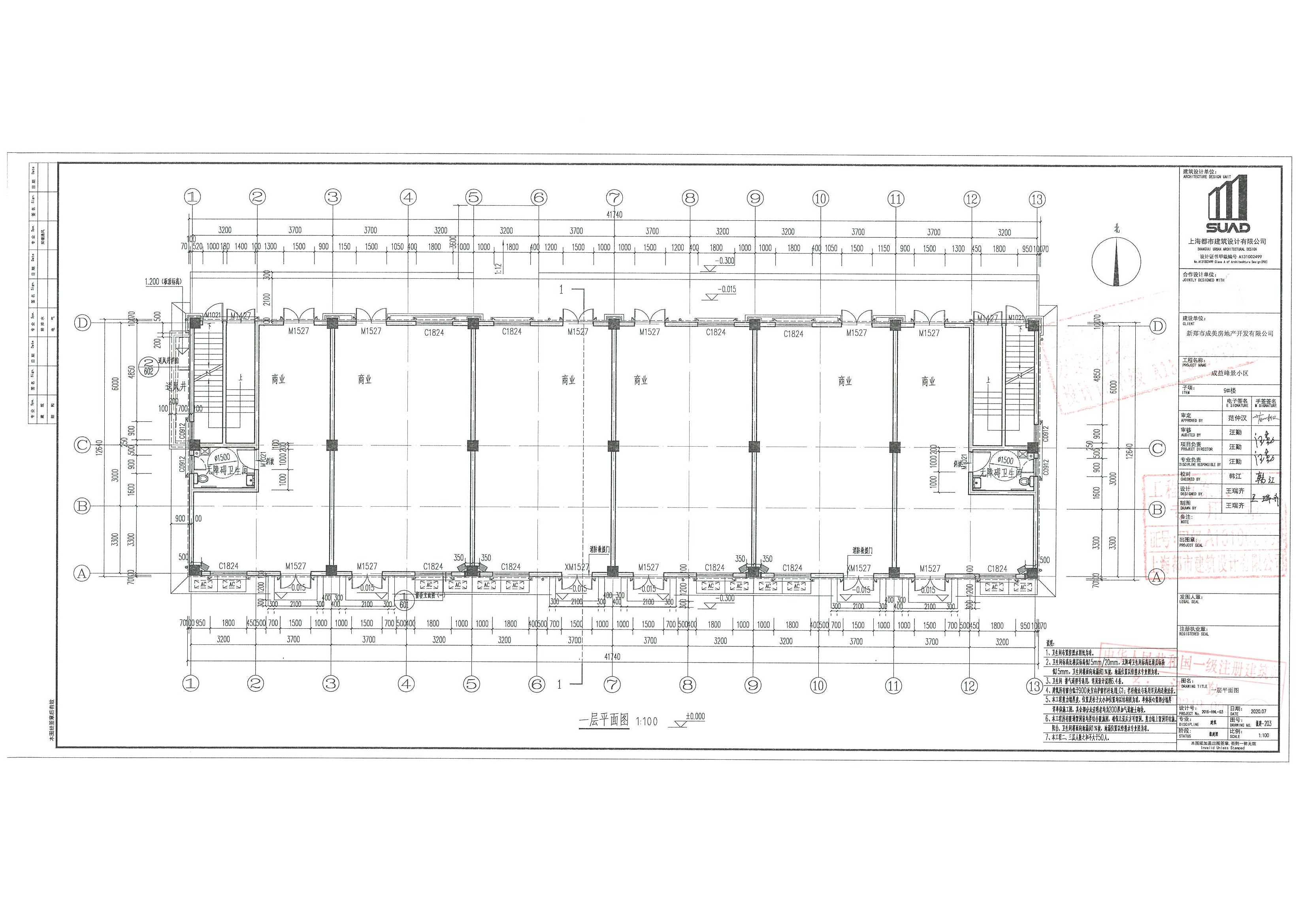
变更前单体图(9#)
变更后单体图(7#)
变更后单体图(8#)
变更后单体图(9#)
主办单位:新郑市人民政府办公室
地址:新郑市人民路186号
邮编:451100
网站标识:4101840001
豫ICP备05015077号-1
豫公网安备 41018402000166号