繁體
登录
005299347/2020-00471
新郑市自然资源和规划局
规划
2020-10-13
2020-10-13
2020-10-13
2020-10-26
河南润基置业有限公司建筑方案征求意见
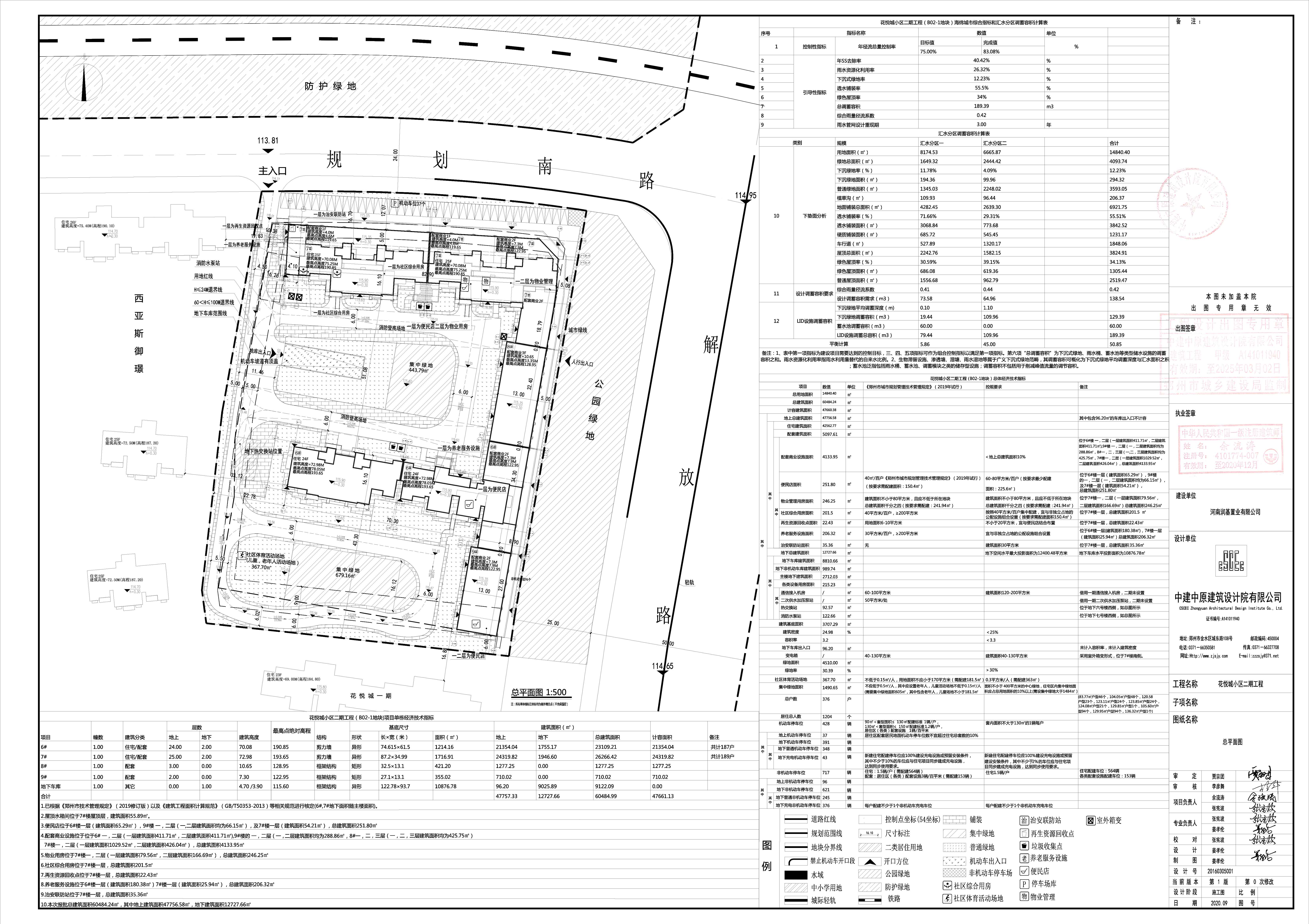
河南润基置业有限公司建筑方案征求意见 河南润基置业有限公司建设的花悦城小区二期工程项目,现正在我局进行建筑方案审查,根据有关法律、法规和《河南省城市规划公示制度》的要求,现予以公示: 附图:总平面图、鸟瞰图、日照分析图、平、立面图 该项目公示期为2020年10月13日—2020年10月26日,如有意见或建议,请于公示期内反馈。 信访意见电话:0371---62680880
主办单位:新郑市人民政府办公室
地址:新郑市人民路186号
邮编:451100
网站标识:4101840001
豫ICP备05015077号-1
豫公网安备 41018402000166号