• 005299347/2020-00533
  • 新郑市自然资源和规划局
  • 城市规划
  • 2020-11-06
  • 2020-11-06
郑州和和置业有限公司建筑方案征求意见
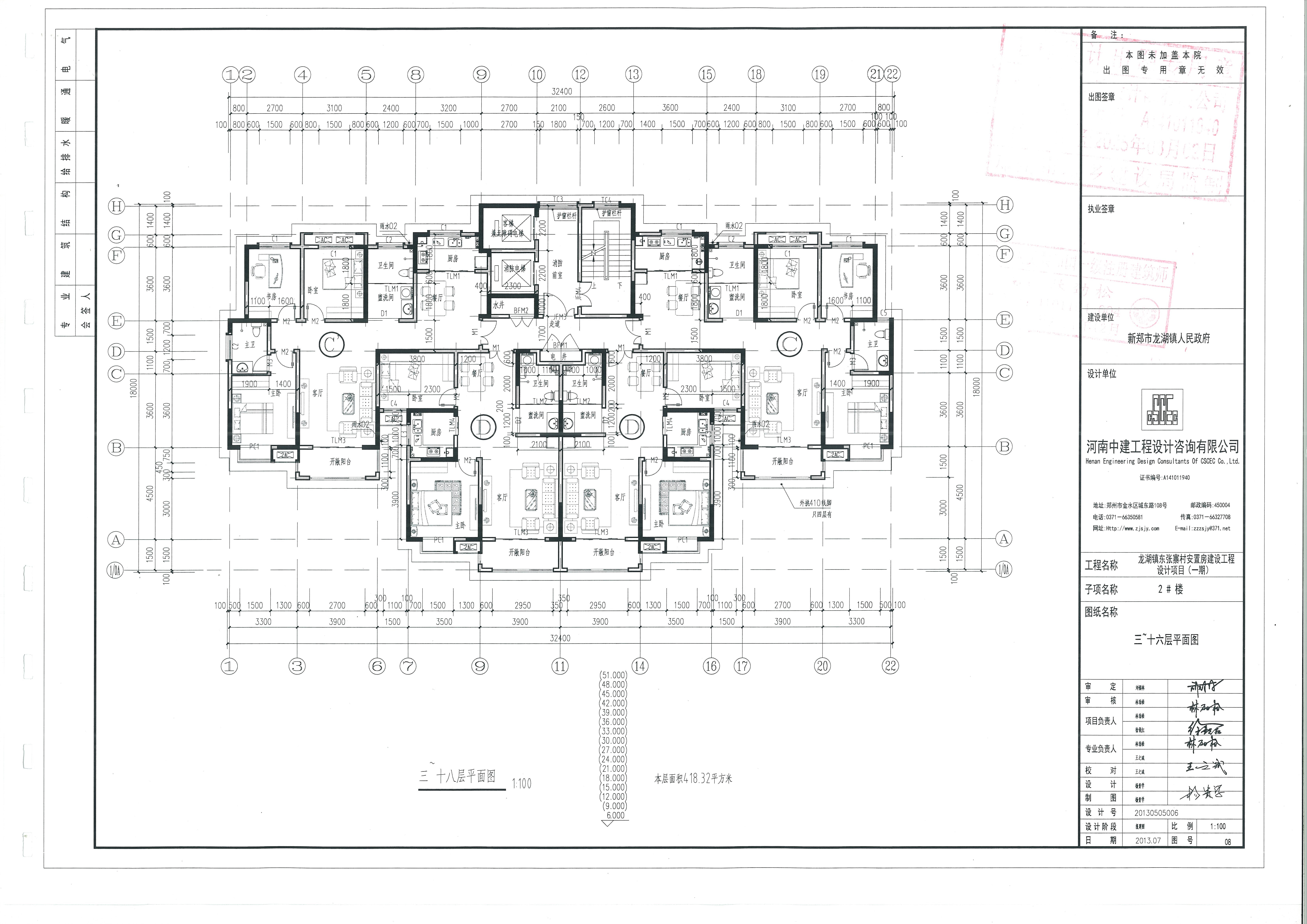
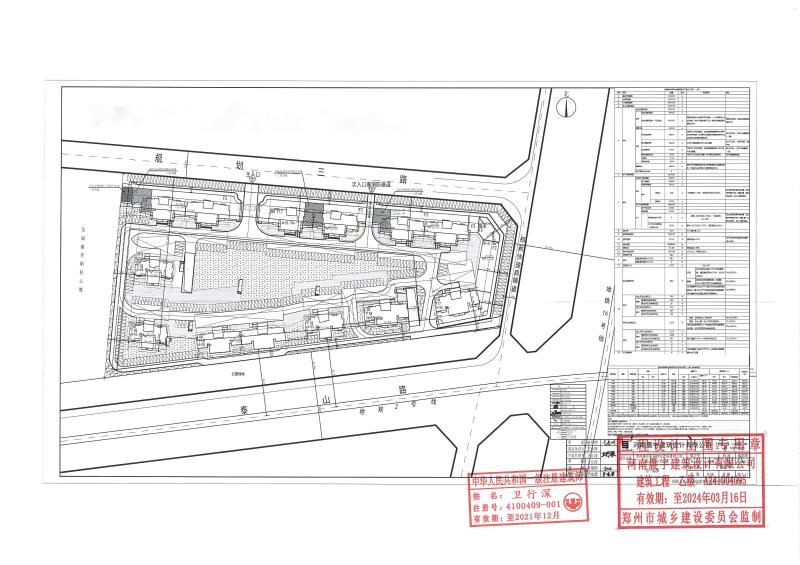
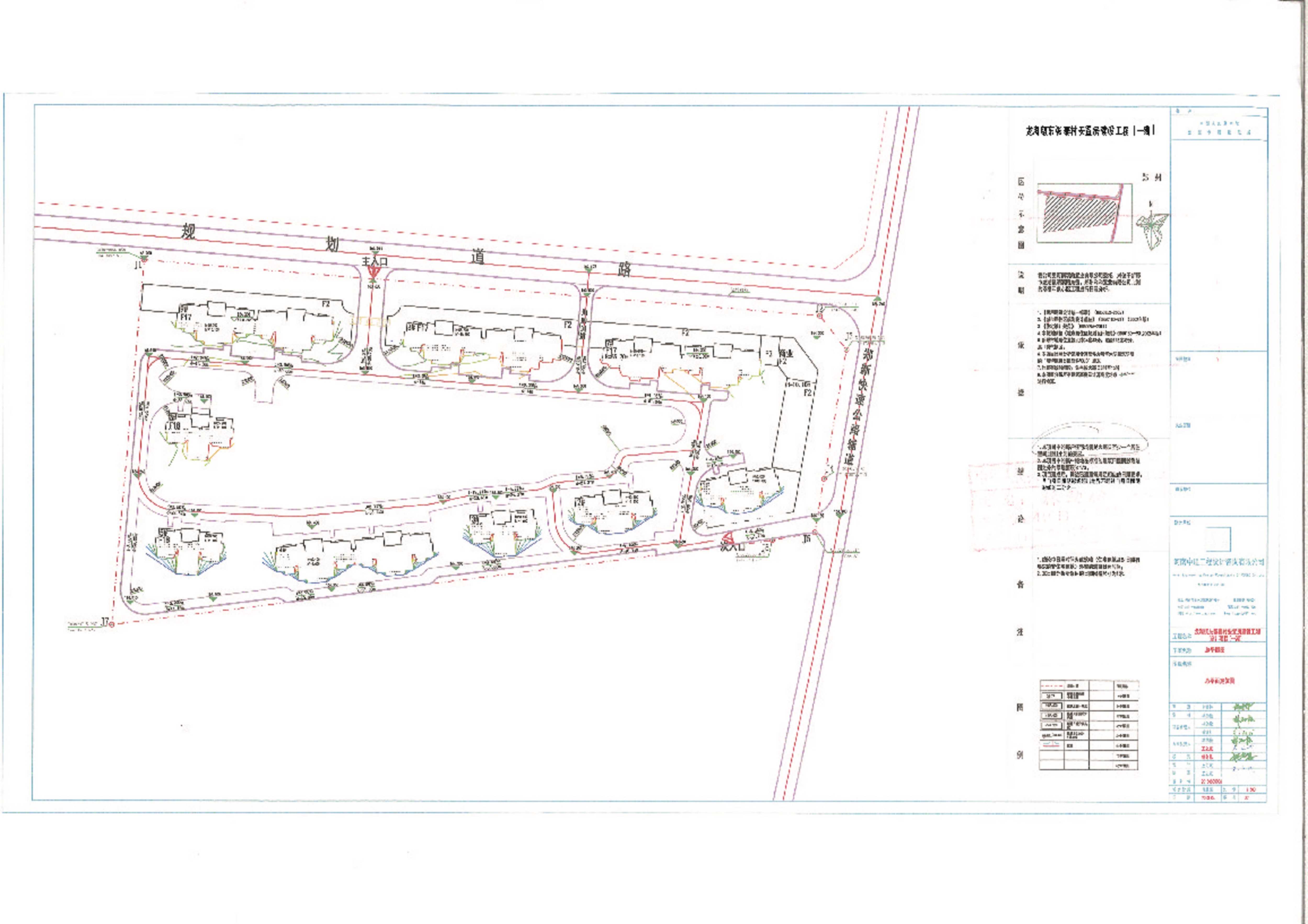
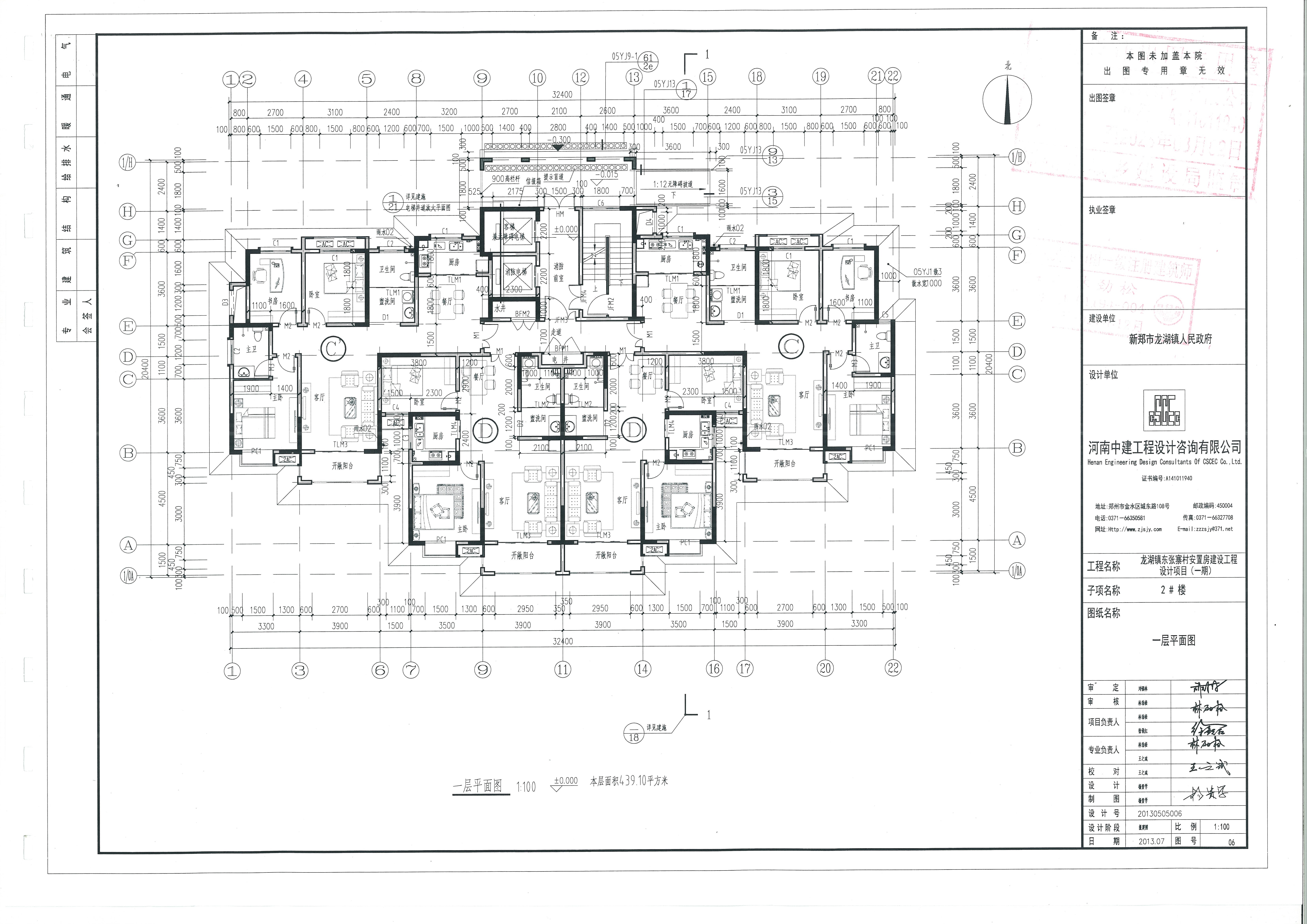
郑州和和置业有限公司开发建设的东苑社区棚户区改造项目,现正在我局进行建筑方案技术审查,依据《城乡规划法》、《行政许可法》等有关法律法规,现予以公示,查询详细内容,请出示身份证,到我局办理相关手续后查询。附图:总平面图、鸟瞰图、日照、平、立面图。该项目公示期为2020年11月6日—2020年11月19日,如有意见或建议,请于公示期内反馈。信访意见电话:0371---62680880

 

                                    

                                        

                                        

                                         


主办单位:新郑市人民政府办公室 地址:新郑市人民路186号 邮编:451100