• 005299347/2021-00070
  • 新郑市自然资源和规划局
  • 城市规划
  • 2021-02-20
  • 2021-02-20
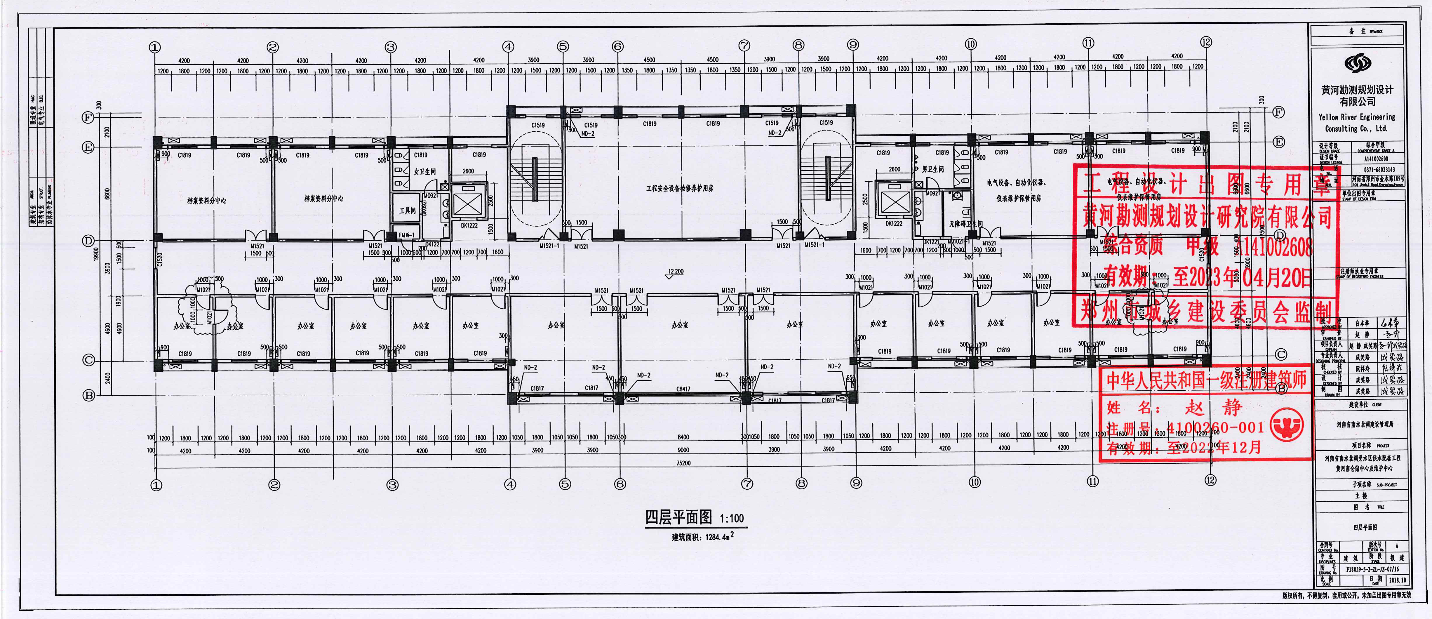
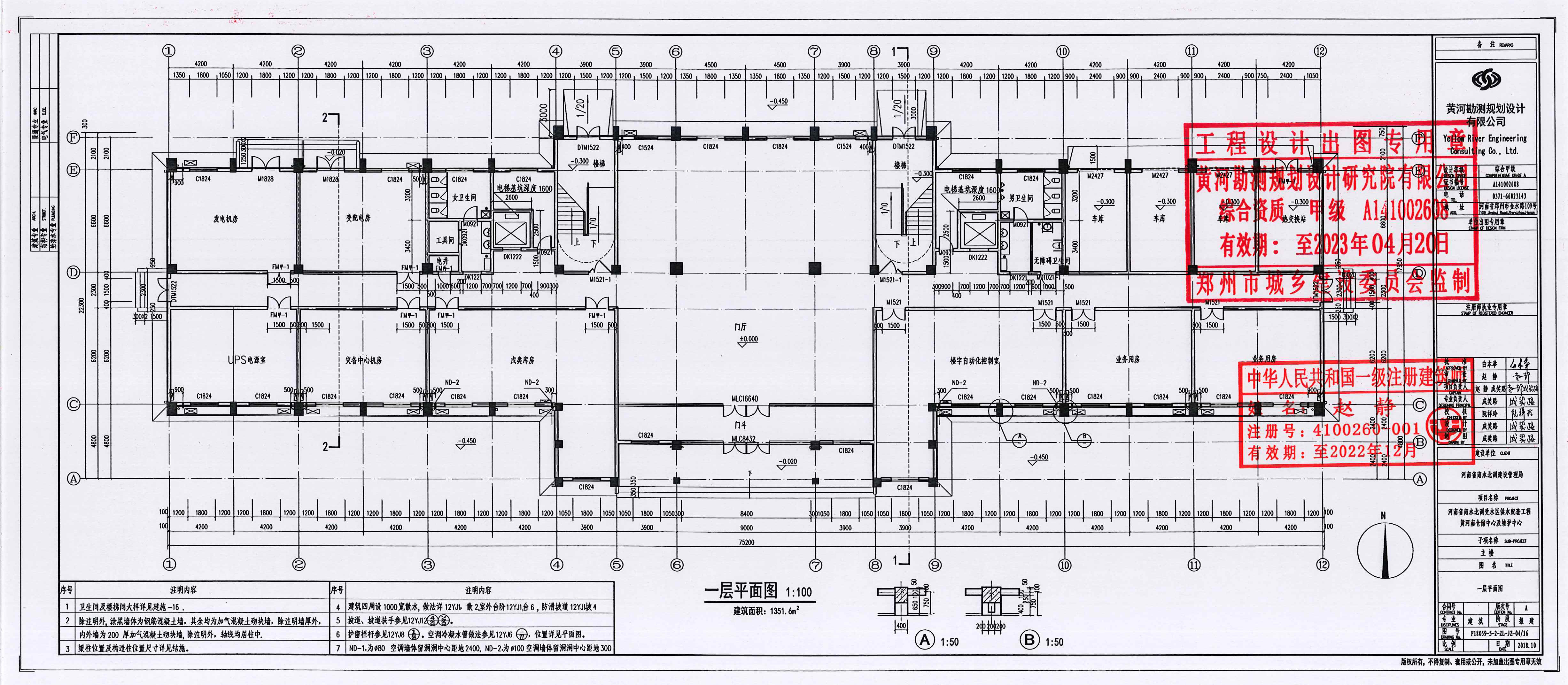
河南省南水北调建设管理局建筑方案征求意见
河南省南水北调建设管理局建设的河南省南水北调受水区供水配套工程黄河南仓储中心及维护中心工程项目,现正在我局进行建筑方案技术审查,依据《城乡规划法》、《行政许可法》等有关法律法规,现予以公示,查询详细内容,请出示身份证明,到我局办理相关手续后查询。 附图:总平面图、鸟瞰图、平、立面图 该项目公示期为2021年2月20日—2021年3月4日,如有意见或建议,请于公示期内向我局反馈。 信访意见电话:0371---62680880 咨询电话: 0371---69950010



主办单位:新郑市人民政府办公室 地址:新郑市人民路186号 邮编:451100