• 005299347/2021-00134
  • 新郑市自然资源和规划局
  • 规划
  • 2021-03-25
  • 2021-03-25
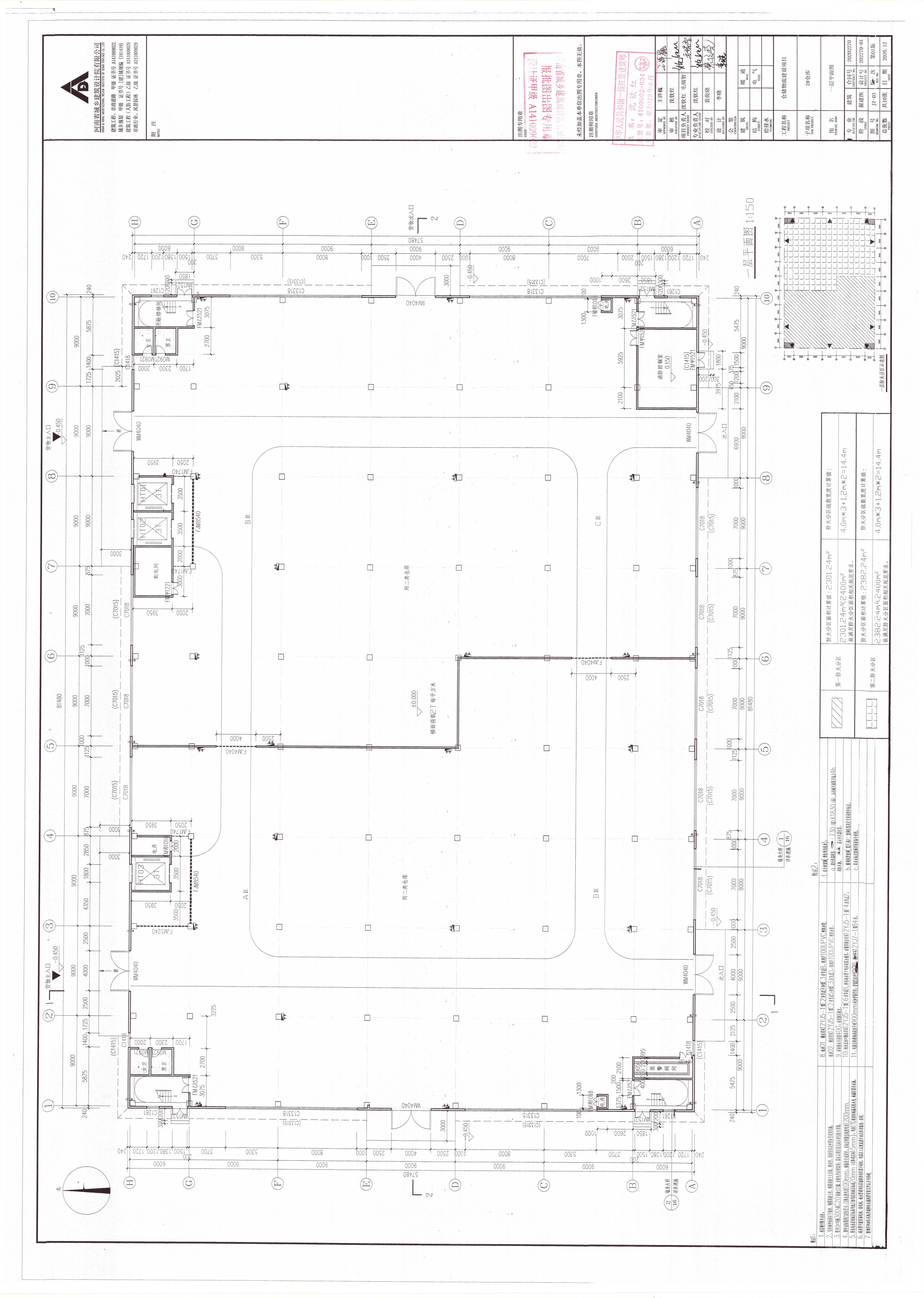
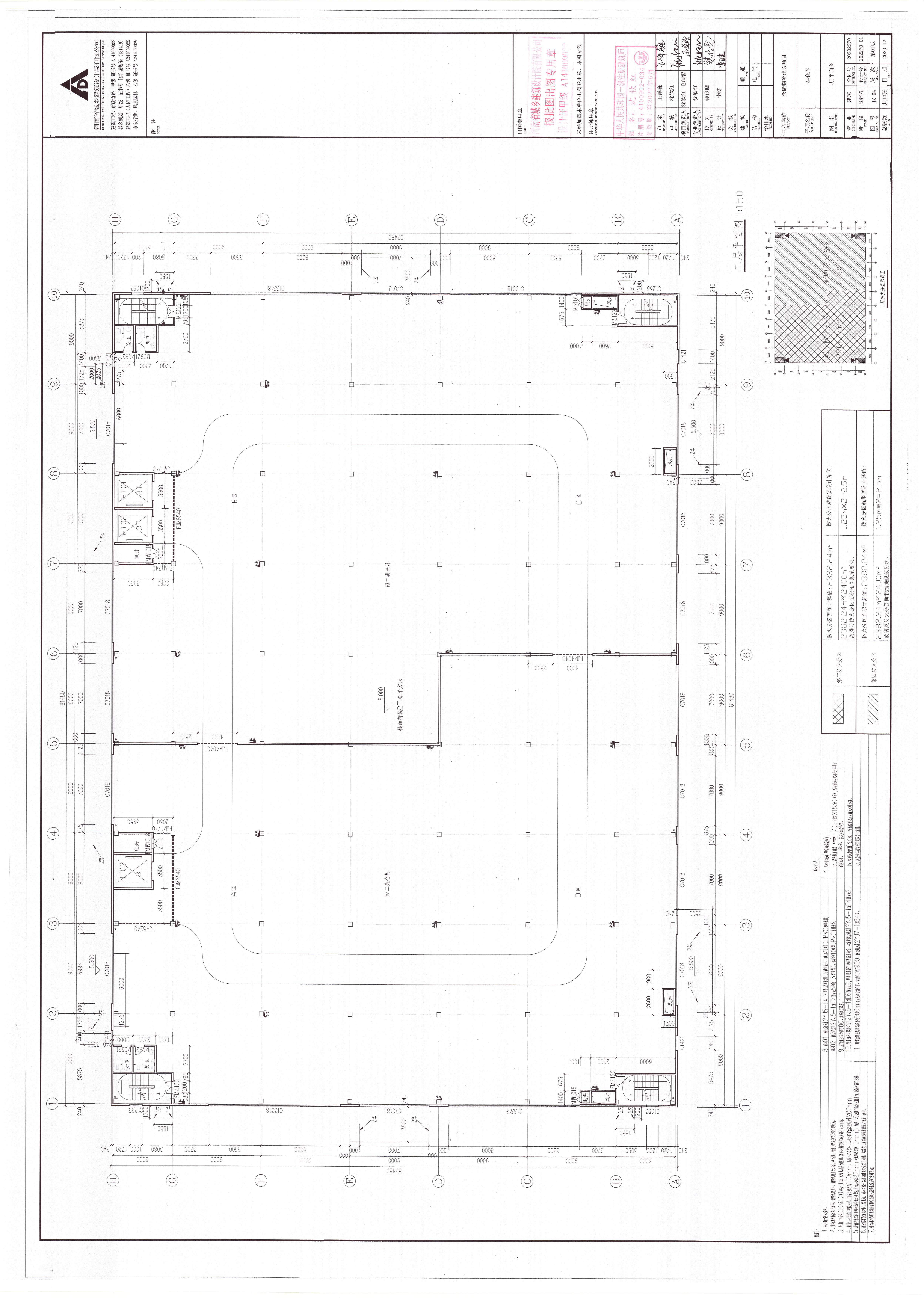
河南骏创物流有限公司建筑方案征求意见
河南骏创物流有限公司建设的仓储物流建设项目,现正在我局进行建筑方案技术审查,依据《城乡规划法》、《行政许可法》等有关法律法规,现予以公示,查询详细内容,请出示身份证明,到我局办理相关手续后查询。 附图:总平面图、鸟瞰图、平、立面图 该项目公示期为2021年3月25日—2021年4月8日,如有意见或建议,请于公示期内向我局反馈。 信访意见电话:0371---62680880 咨询电话: 0371---69950010

                                          

       

 

 

主办单位:新郑市人民政府办公室 地址:新郑市人民路186号 邮编:451100