由新郑正商兴城置业有限公司开发建设的正商公主湖环湖春天五期项目,现正在我局办理规划方案变更,根据有关法律、法规和《河南省城市规划公示制度》的要求,现予以公示。
依据《中华人民共和国城乡规划法》和《中华人民共和国行政许可法》相关规定,行政许可申请人、利害关系人享有陈述权、申辩权和要求听证的权利。如有意见和建议,请你们在本公示期间内,到我局进行陈述、申辩,或提出听证申请,逾期未进行陈述、申辩或未提出听证申请的,视为放弃上述权利。
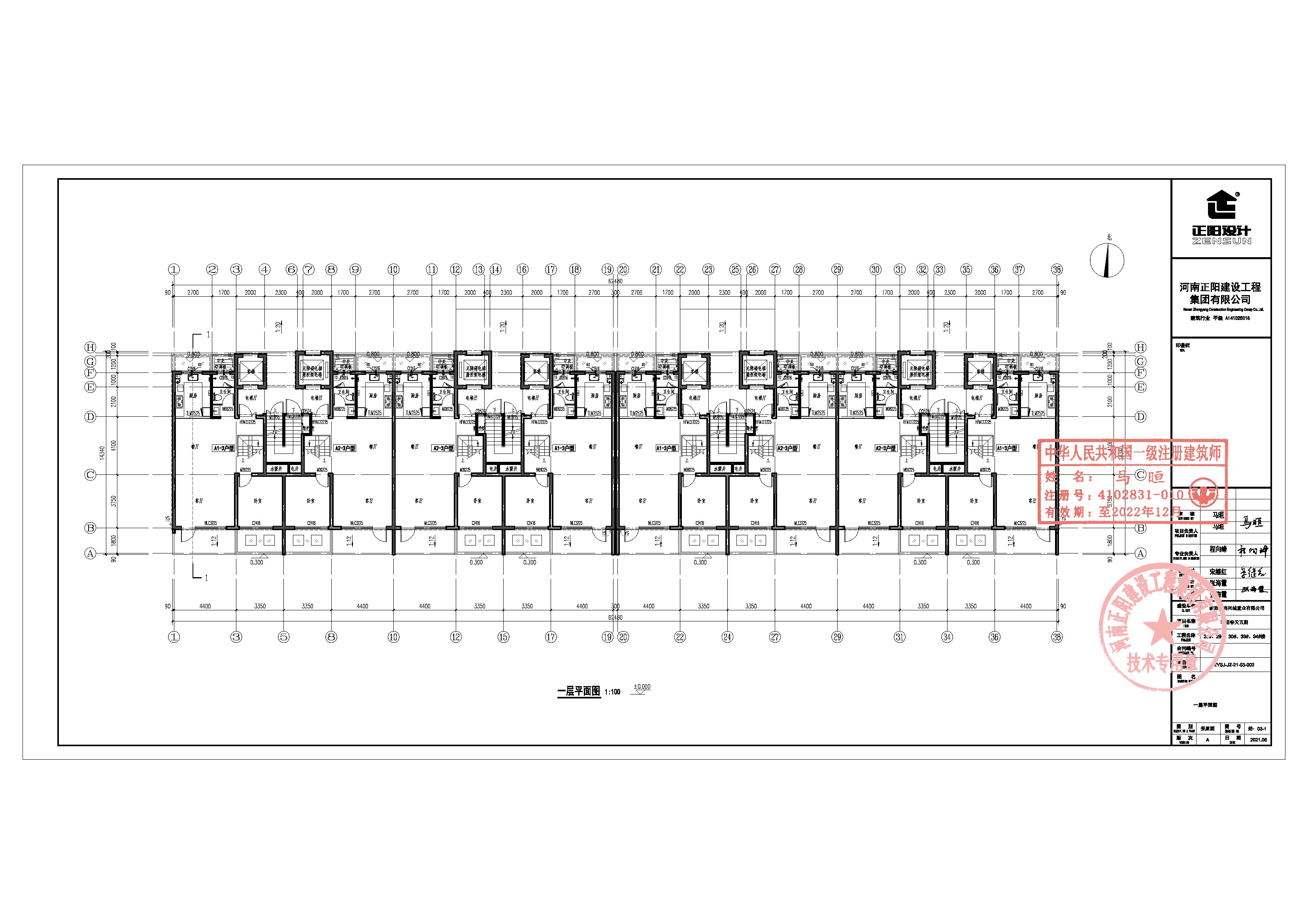
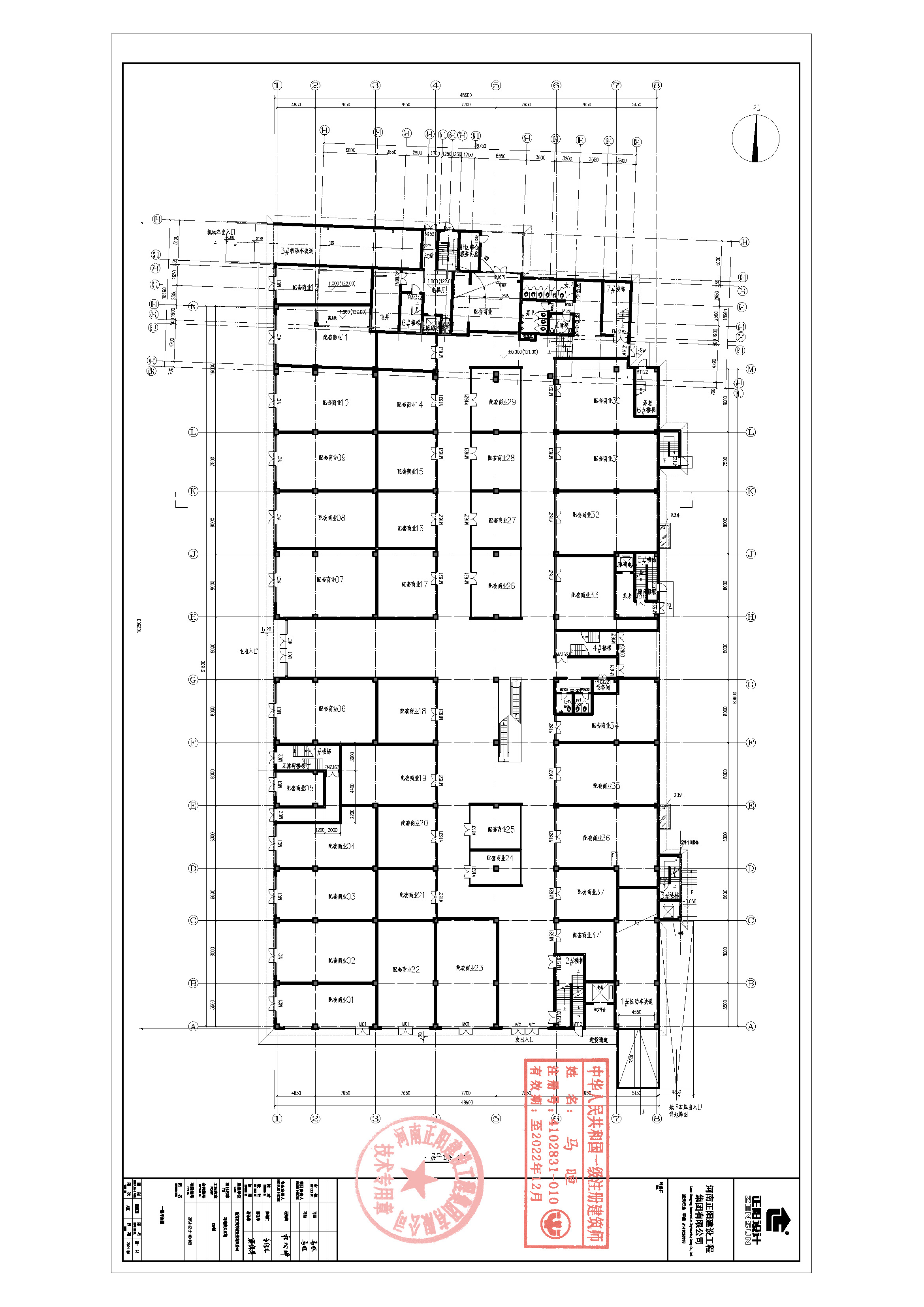
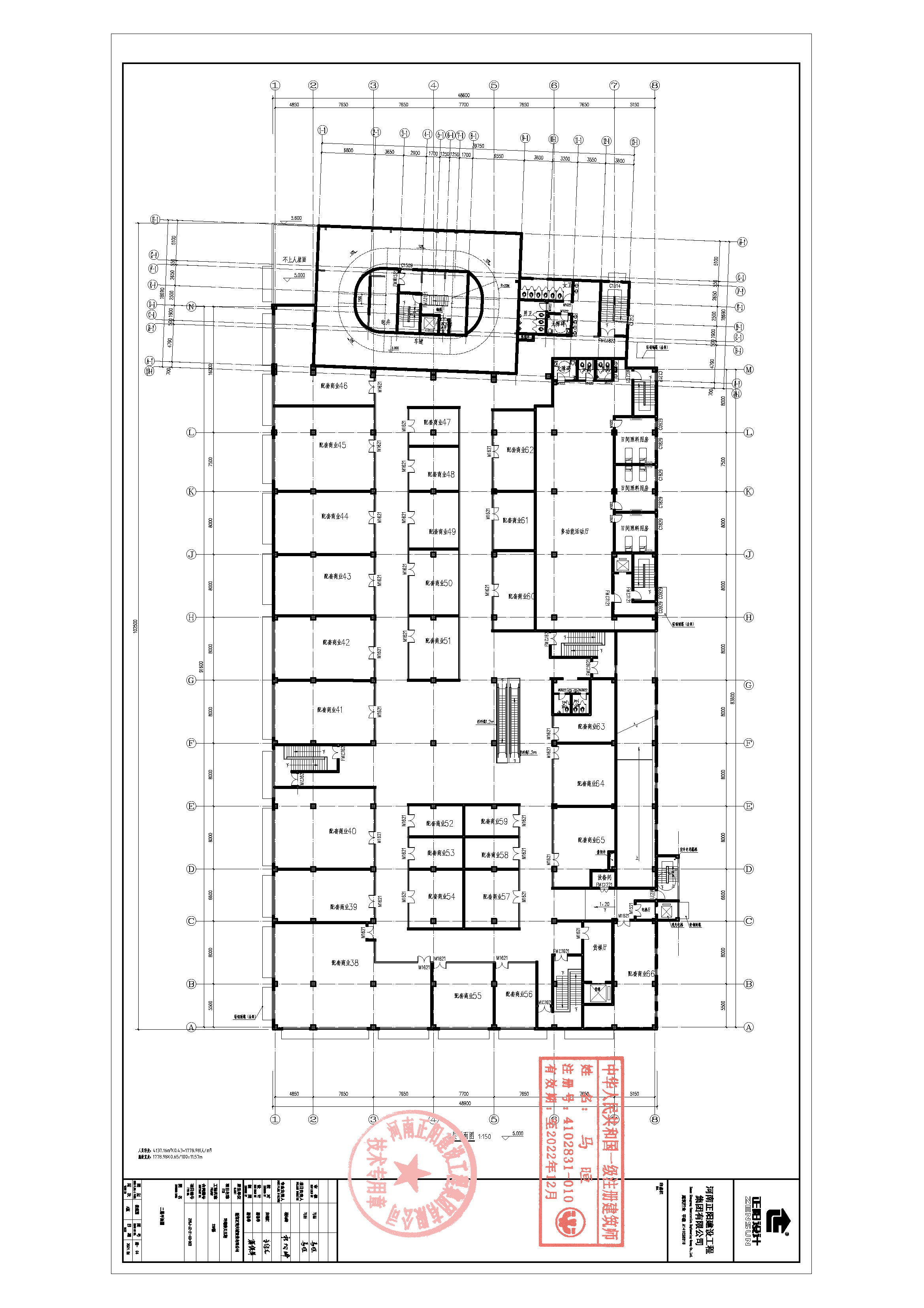
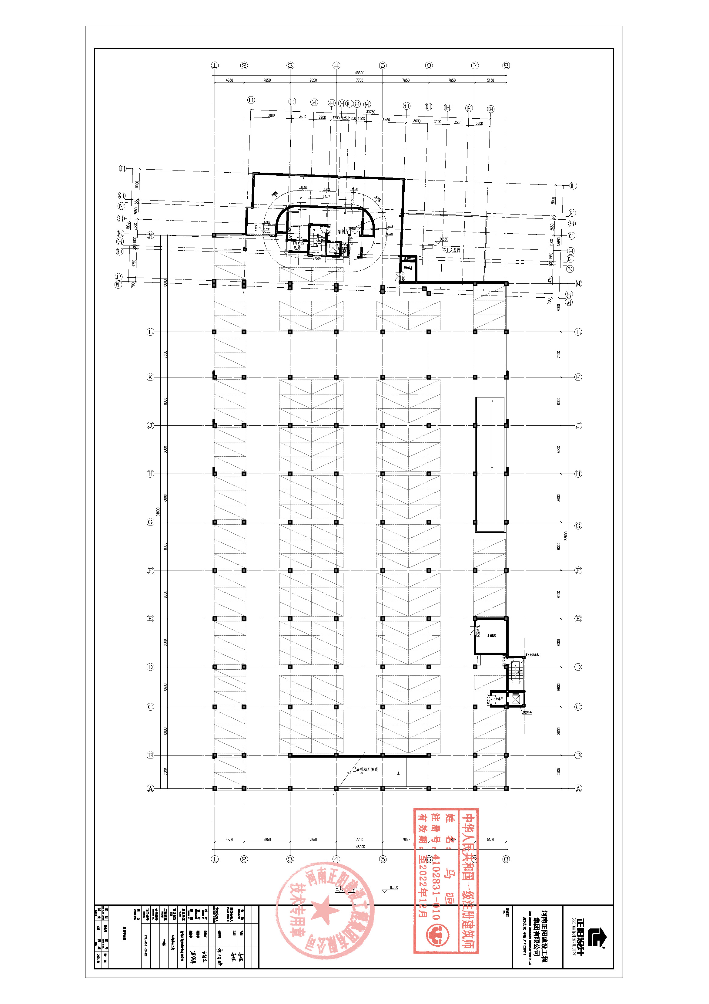
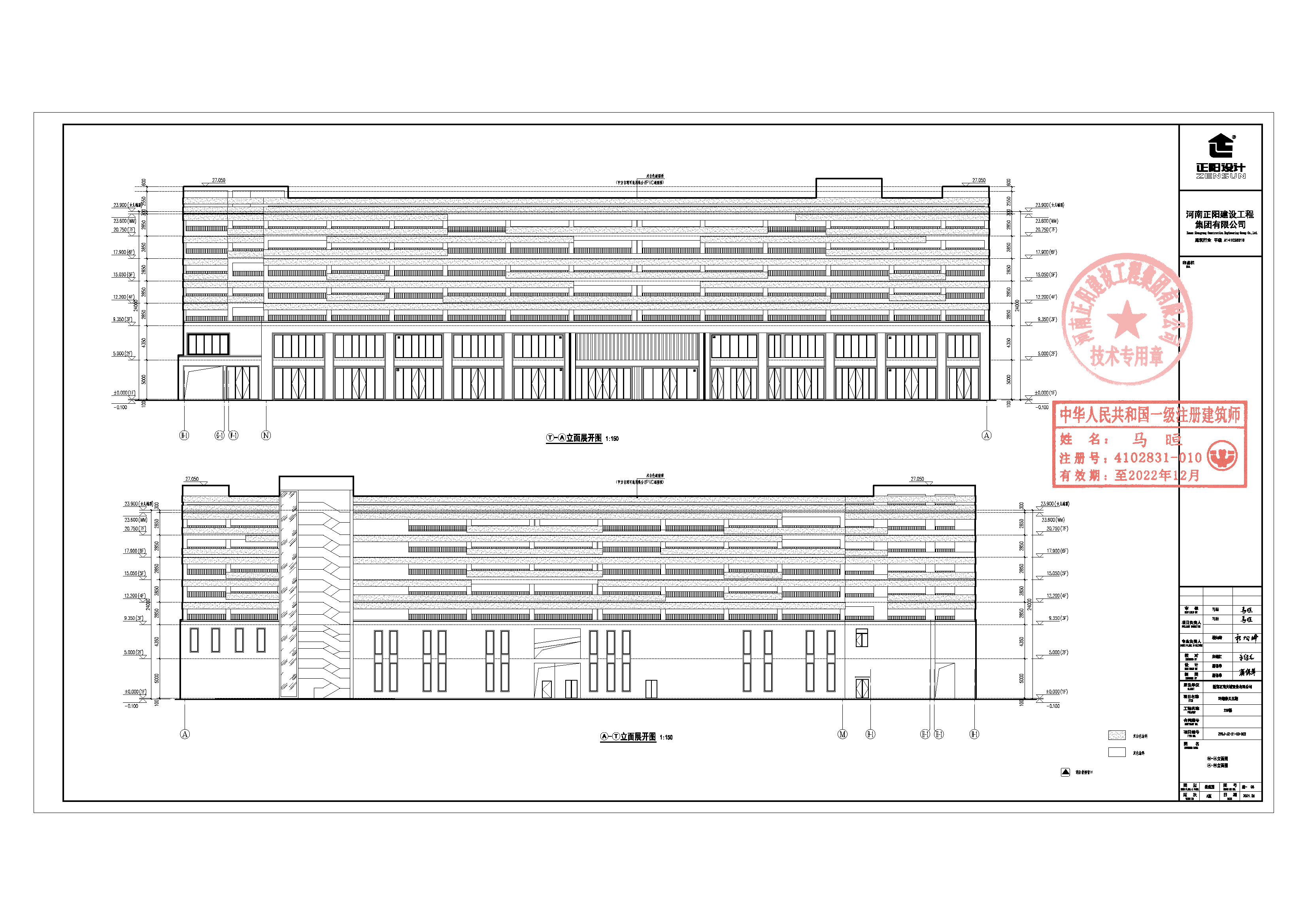
附图:变更申请、变更前总平面图、变更后总平面图、日照分析图、变更前单体图、变更后单体图、鸟瞰图
该项目公示期为2021年07月29日—2021年08月11日。
信访意见电话:0371----62551969 咨询电话:0371---69950010。

变更前总平面图

变更后总平面图


变更前单体图



变更后单体图










