繁體
登录
005299347/2021-00802
新郑市自然资源和规划局
城市规划
2021-12-14
2021-12-14
郑州金恒房地产开发有限公司建筑方案征求意见
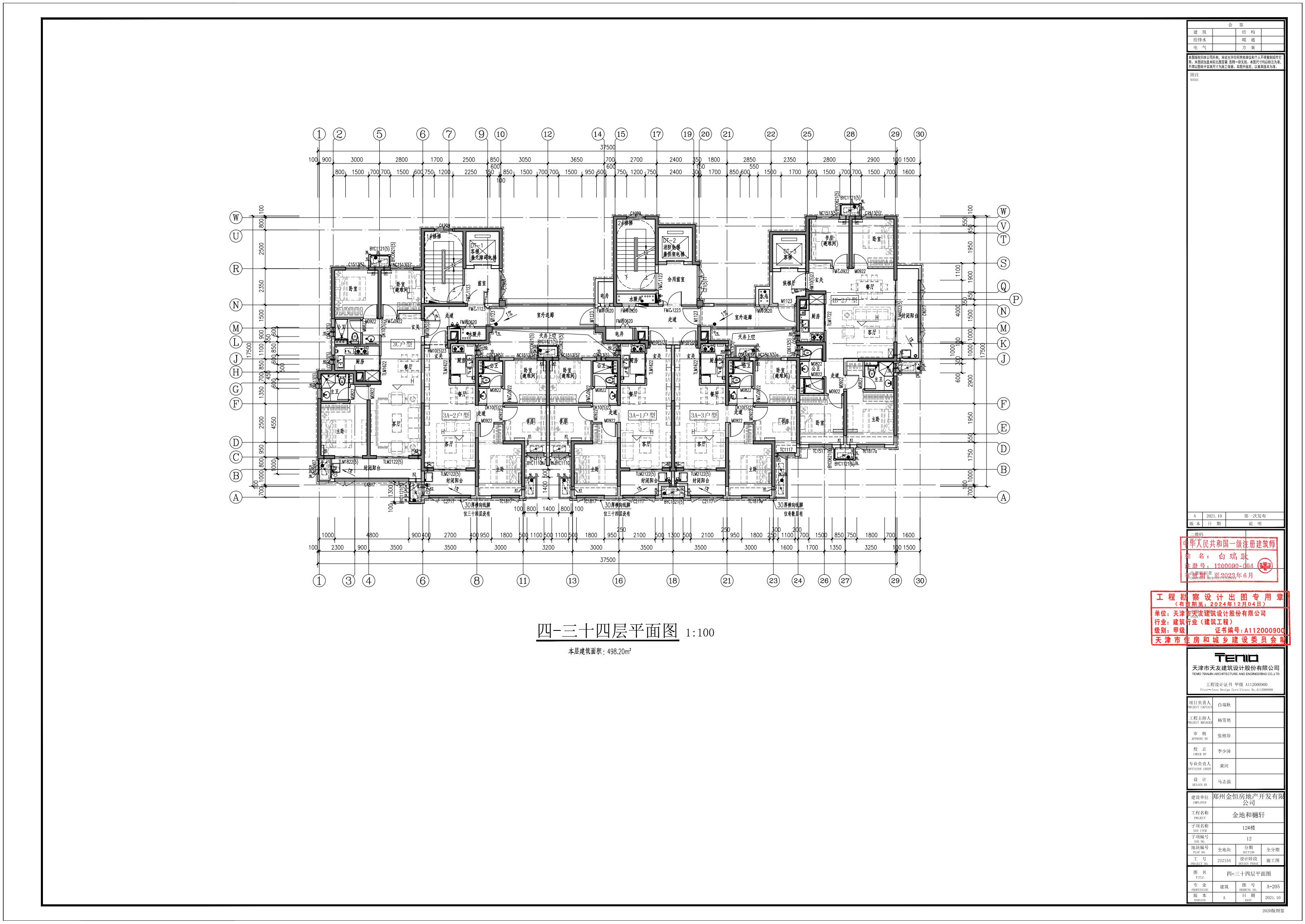
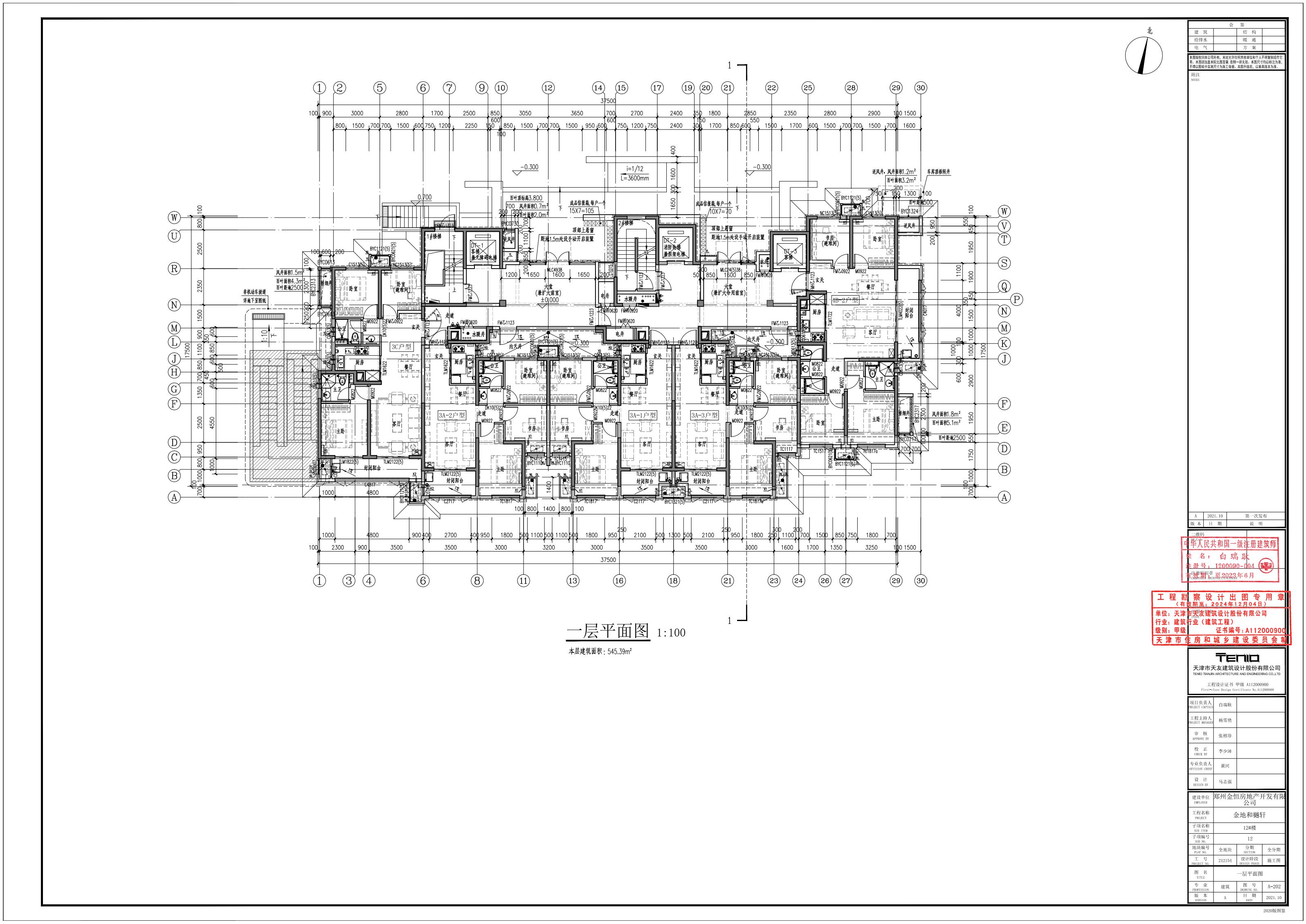
由郑州金恒房地产开发有限公司建设的金地和樾轩项目,现正在我局进行建筑方案技术审查,依据《城乡规划法》、《行政许可法》等有关法律法规,现予以公示,查询详细内容,请出示身份证明,到我局办理相关手续后查询。 附图:总平面图、日照分析图、鸟瞰图、平、立面图 该项目公示期为2021年12月14日—2021年12月27日,如有意见或建议,请于公示期内向我局反馈。 信访意见电话:0371---62551969 咨询电话: 0371---69950010
主办单位:新郑市人民政府办公室
地址:新郑市人民路186号
邮编:451100
网站标识:4101840001
豫ICP备05015077号-1
豫公网安备 41018402000166号