繁體
登录
005299347/2022-00010
新郑市自然资源和规划局
城市规划
2022-01-11
2022-01-11
郑州科建装配式建筑有限公司建筑方案征求意见
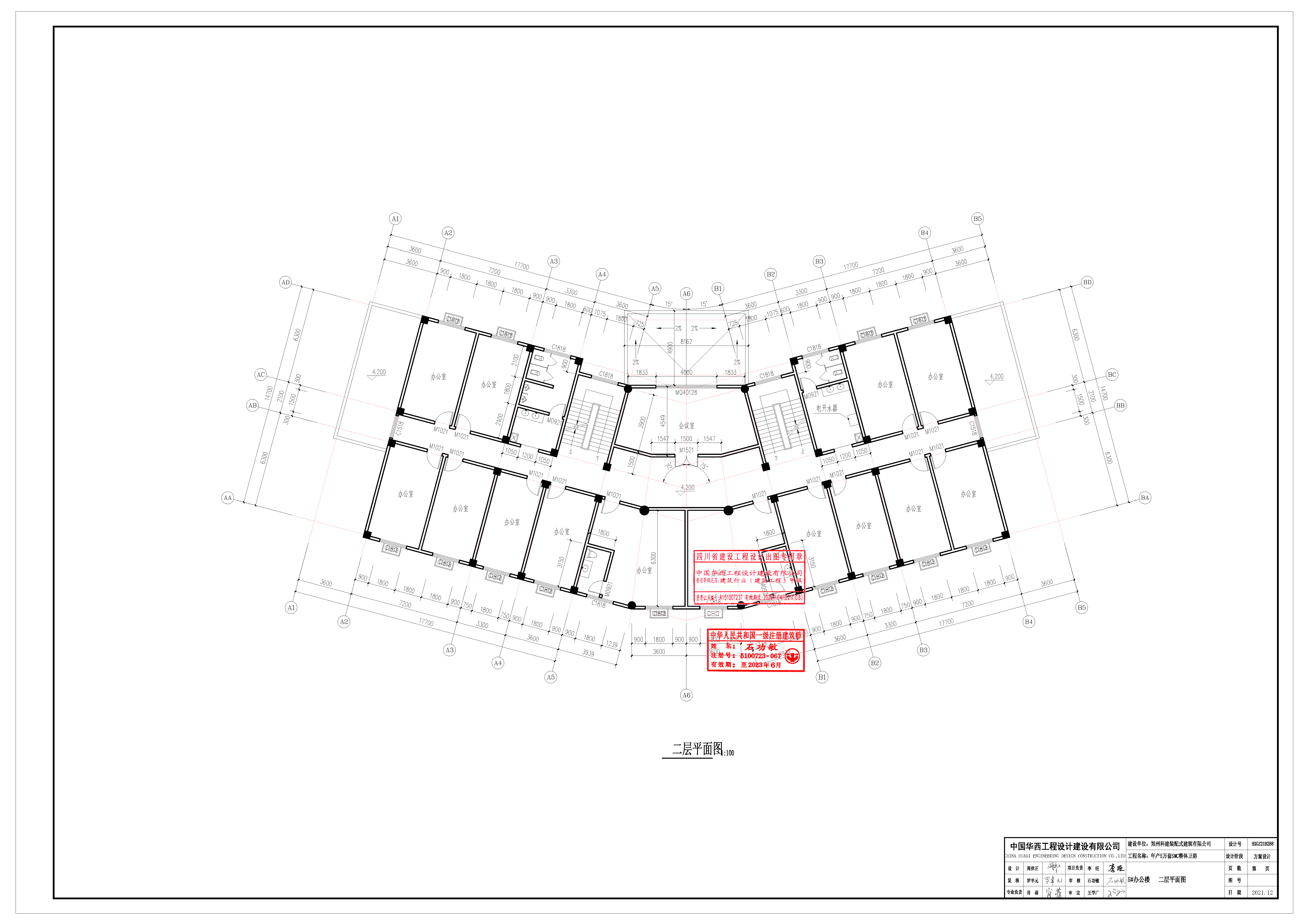
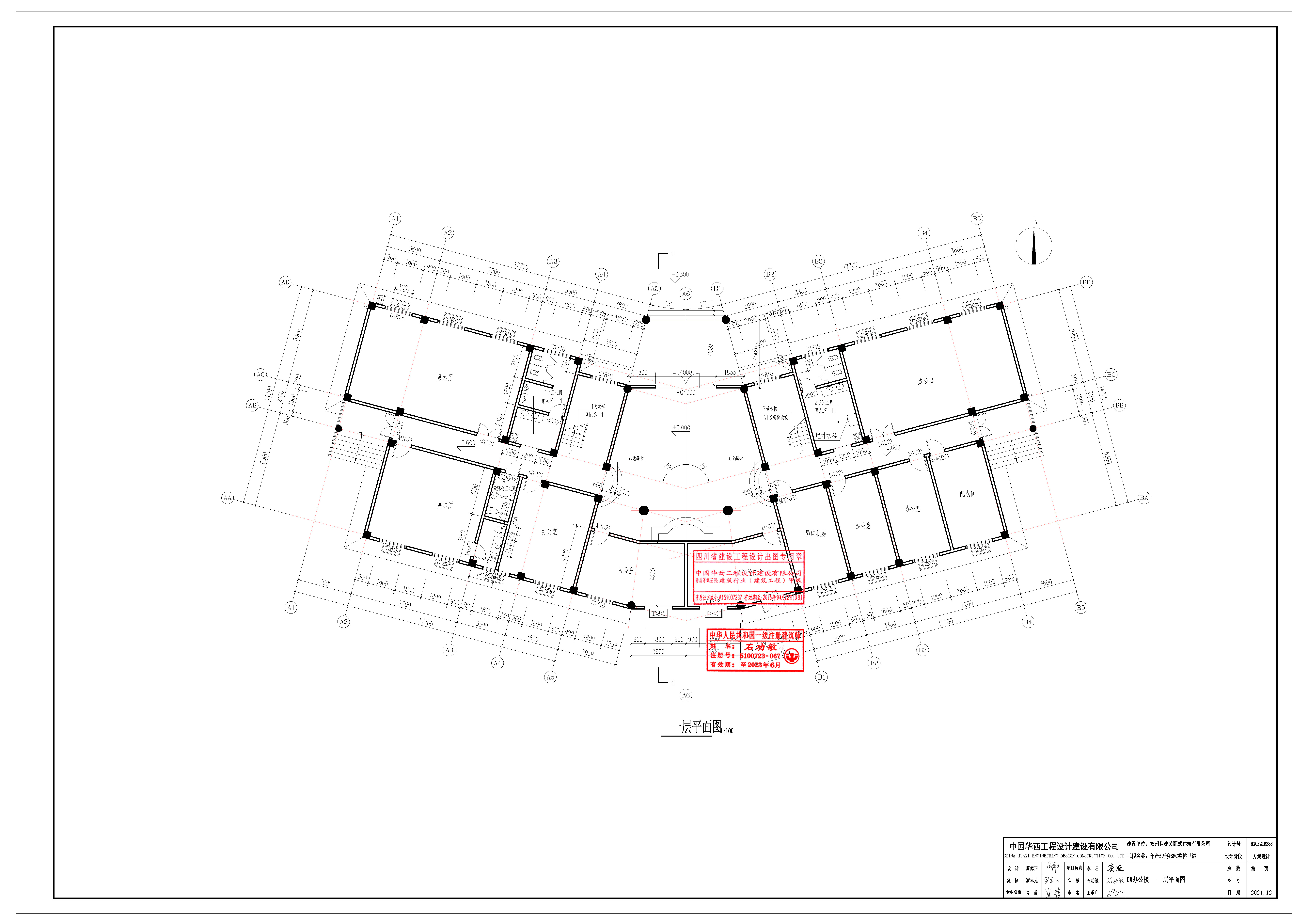
由郑州科建装配式建筑有限公司建设的年产5万套SMC整体卫浴项目,现正在我局进行建筑方案技术审查,依据《城乡规划法》、《行政许可法》等有关法律法规,现予以公示,查询详细内容,请出示身份证明,到我局办理相关手续后查询。 附图:总平面图、日照分析图、鸟瞰图、平、立面图 该项目公示期为2022年1月11日—2022年1月24日,如有意见或建议,请于公示期内向我局反馈。 信访意见电话:0371---62551969 咨询电话: 0371---69950010
主办单位:新郑市人民政府办公室
地址:新郑市人民路186号
邮编:451100
网站标识:4101840001
豫ICP备05015077号-1
豫公网安备 41018402000166号